北京装修论坛 - 北京装修社区_高老庄工长装修

 找回密码
立即注册
热搜: 工长 设计 曝光
楼主: 文殊

精彩装修图片《我家上杂志啦--我的美式田园小屋》

[复制链接]

440

主题

7778

帖子

1万

积分

硕士毕业

积分
17687

社区居民原创达人社区劳模最爱沙发

 楼主| 发表于 2012-5-9 14:43:38 | 显示全部楼层
我的宝贝女儿房间,虽然现在乖乖才2岁,但是我也不想给她弄得太卡通了,温馨点反而更好,不要太有年纪限制了
92654514_67825024_middle.jpg
回复

使用道具 举报

440

主题

7778

帖子

1万

积分

硕士毕业

积分
17687

社区居民原创达人社区劳模最爱沙发

 楼主| 发表于 2012-5-9 14:43:58 | 显示全部楼层
92655173_67825024_middle.jpg
回复

使用道具 举报

440

主题

7778

帖子

1万

积分

硕士毕业

积分
17687

社区居民原创达人社区劳模最爱沙发

 楼主| 发表于 2012-5-9 14:44:29 | 显示全部楼层
92657024_67825024_middle.jpg
回复

使用道具 举报

440

主题

7778

帖子

1万

积分

硕士毕业

积分
17687

社区居民原创达人社区劳模最爱沙发

 楼主| 发表于 2012-5-9 14:45:34 | 显示全部楼层
飘窗上的马赛克我很喜欢
92749127_67825024_middle.jpg
回复

使用道具 举报

440

主题

7778

帖子

1万

积分

硕士毕业

积分
17687

社区居民原创达人社区劳模最爱沙发

 楼主| 发表于 2012-5-9 14:46:43 | 显示全部楼层
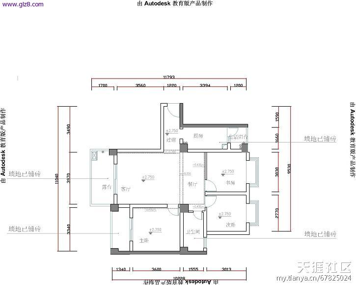
传户型图
92750500_67825024_middle.jpg

改动以后的
92750766_67825024_middle.jpg
回复

使用道具 举报

440

主题

7778

帖子

1万

积分

硕士毕业

积分
17687

社区居民原创达人社区劳模最爱沙发

 楼主| 发表于 2012-5-9 15:31:24 | 显示全部楼层
93088610_67825024_middle.jpg
回复

使用道具 举报

440

主题

7778

帖子

1万

积分

硕士毕业

积分
17687

社区居民原创达人社区劳模最爱沙发

 楼主| 发表于 2012-5-9 15:32:35 | 显示全部楼层
我的超级大鞋柜
93272324_67825024_middle.jpg
回复

使用道具 举报

440

主题

7778

帖子

1万

积分

硕士毕业

积分
17687

社区居民原创达人社区劳模最爱沙发

 楼主| 发表于 2012-5-9 15:33:21 | 显示全部楼层
暖暖的卧室
93272428_67825024_middle.jpg
回复

使用道具 举报

4

主题

16

帖子

60

积分

学前班

积分
60

社区居民

发表于 2013-9-6 10:21:19 | 显示全部楼层
楼主是哪里的啊~~,做的很漂亮!!
不过含家具家电15万~~真心便宜啊~请问家具是在什么地方买的啊
回复

使用道具 举报

9

主题

21

帖子

80

积分

学前班

积分
80

社区居民

发表于 2013-9-26 22:59:48 | 显示全部楼层
楼主跟我的想法碰一起了额想飘窗做马赛克,请问是自己贴的还是工人贴的?
回复

使用道具 举报

您需要登录后才可以回帖 登录 | 立即注册

本版积分规则

装修百科|手机版|小黑屋|北京高老庄建筑装饰工程有限公司 ( 京ICP备19035109号 )

GMT+8, 2026-3-31 11:58 , Processed in 0.664965 second(s), 33 queries .

快速回复 返回顶部 返回列表