北京装修论坛 - 北京装修社区_高老庄工长装修

 找回密码
立即注册
热搜: 工长 设计 曝光
查看: 6559|回复: 10

56平二手房装修

[复制链接]

1

主题

6

帖子

24

积分

学前班

积分
24

社区居民

发表于 2014-11-25 07:29:34 | 显示全部楼层 |阅读模式
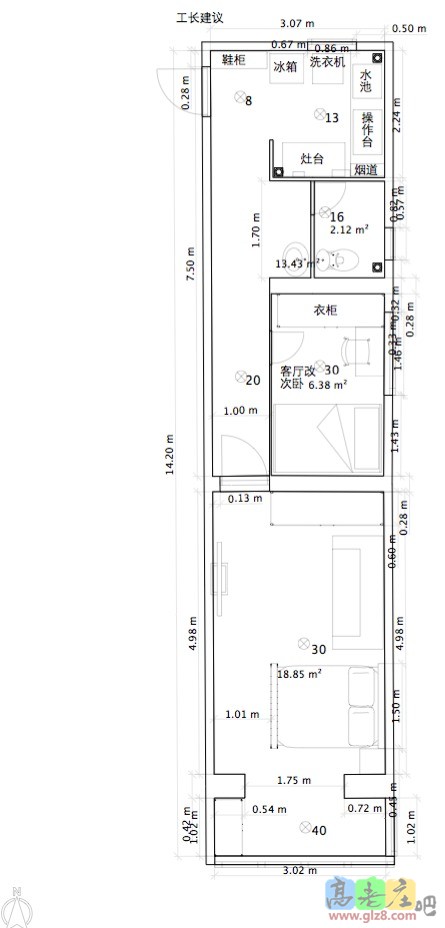
经历千辛万苦终于过户完成。昨天高老庄孔经历帮我预约吧了两位工长,最后还是王凤停工长去的现场并给了一些建议,今天做报价准备签合同了,请见户型图完全自己绘制可能有误差:
刚刚把三张图贴上来了,第一张是原户型图,第二张是自己设想图,第三张是根据王凤停工长建议修改的,
能给些什么建议吗,户型比较奇葩,没办法
wkb-1.jpg wkb-2.jpg wkb-3.jpg
回复

使用道具 举报

24

主题

1万

帖子

2万

积分

硕士毕业

积分
20710

社区居民最爱沙发忠实会员社区劳模社区明星

发表于 2014-11-25 09:32:49 | 显示全部楼层
楼主现在的布局是如何设计的?
回复

使用道具 举报

0

主题

21

帖子

62

积分

禁止发言

积分
62

社区居民

QQ
发表于 2014-11-25 10:31:17 | 显示全部楼层
祝楼主装修愉快 有需要帮助的可以咨询。
回复

使用道具 举报

1

主题

32

帖子

76

积分

学前班

积分
76

社区居民

发表于 2014-11-25 13:39:07 | 显示全部楼层
↖(^ω^)↗
回复

使用道具 举报

0

主题

32

帖子

74

积分

学前班

积分
74

社区居民

发表于 2014-11-25 14:26:49 | 显示全部楼层
这个布局确实好奇怪哦。
回复

使用道具 举报

1

主题

6

帖子

24

积分

学前班

积分
24

社区居民

 楼主| 发表于 2014-11-25 22:38:08 | 显示全部楼层

回 1楼(王建) 的帖子

王建:楼主现在的布局是如何设计的?  (2014-11-25 09:32) 
没有找设计师,自己揣摩加工长建议,图片已经上传。给些宝贵意见吧。
回复

使用道具 举报

1

主题

6

帖子

24

积分

学前班

积分
24

社区居民

 楼主| 发表于 2014-11-25 22:38:36 | 显示全部楼层

回 4楼(woshibajie) 的帖子

woshibajie:这个布局确实好奇怪哦。 (2014-11-25 14:26) 
没有好的想法,多多指教
回复

使用道具 举报

1

主题

6

帖子

24

积分

学前班

积分
24

社区居民

 楼主| 发表于 2014-11-25 22:38:57 | 显示全部楼层

回 2楼(jqyj668) 的帖子

jqyj668:祝楼主装修愉快 有需要帮助的可以咨询。 (2014-11-25 10:31) 
多谢,多多指教
回复

使用道具 举报

24

主题

1万

帖子

2万

积分

硕士毕业

积分
20710

社区居民最爱沙发忠实会员社区劳模社区明星

发表于 2014-11-26 09:02:32 | 显示全部楼层

回 5楼(wkb123000) 的帖子

过道中的卫生间门、次卧门可以做推拉门,要不前面人打开门,后面的人就过不去了,还影响客厅阳台的光线照射到门厅、厨房区域。。
回复

使用道具 举报

1

主题

6

帖子

24

积分

学前班

积分
24

社区居民

 楼主| 发表于 2014-11-26 13:58:57 | 显示全部楼层

回 8楼(王建) 的帖子

王建:过道中的卫生间门、次卧门可以做推拉门,要不前面人打开门,后面的人就过不去了,还影响客厅阳台的光线照射到门厅、厨房区域。。
(2014-11-26 09:02)
卫生间和次卧的门是往里开的,我划错了。

那客厅我想做个隔断做为次卧,隔断用什么材料呢?如果太厚1。8M的床就放不下了,用轻刚龙骨通道就比较暗,如果用玻璃(银行玻璃墙)比较省空间也有透光性,但是王凤停工长说不玻璃墙太商业化不适合家用。

你能给些建议吗?
回复

使用道具 举报

您需要登录后才可以回帖 登录 | 立即注册

本版积分规则

装修百科|手机版|小黑屋|北京高老庄建筑装饰工程有限公司 ( 京ICP备19035109号 )

GMT+8, 2026-4-1 03:02 , Processed in 0.245776 second(s), 29 queries .

快速回复 返回顶部 返回列表