
|
4765| 12
|
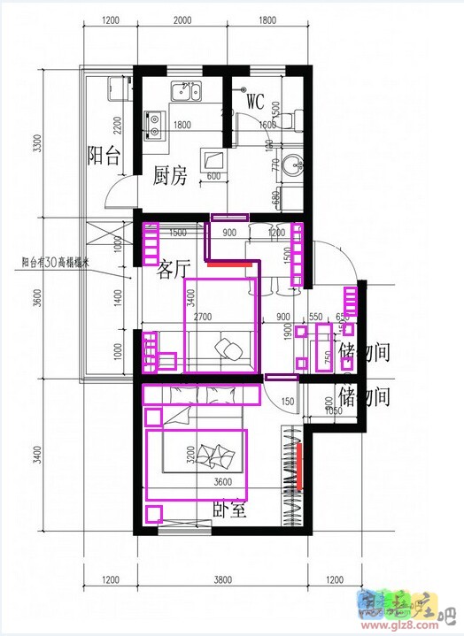
[装修讨论] 大一居改两居---请高人指点 |
| ||
| ||
| ||
| ||
| ||
回 4楼(njtuqzh) 的帖子
| ||
| ||
回 6楼(njtuqzh) 的帖子
| ||
| ||
| ||
|
[size=5][b][url=http://bbs.glz8.com/read.php?tid-21583.html]如果一篇文章可以教会你装修…六万字呕心力作,用灵魂装修的典范,以文学创作的笔触写装修,欢迎观摩品鉴[/url][/b][/size]
|
||
装修百科|手机版|小黑屋|北京高老庄建筑装饰工程有限公司 ( 京ICP备19035109号 )
GMT+8, 2026-4-1 03:12 , Processed in 0.911078 second(s), 32 queries .