北京装修论坛 - 北京装修社区_高老庄工长装修

 找回密码
立即注册
热搜: 工长 设计 曝光
查看: 3977|回复: 6

[装修讨论] 这个客厅怎么摆啊~~~

[复制链接]

14

主题

56

帖子

168

积分

小学毕业

积分
168

社区居民

发表于 2014-12-6 14:52:37 | 显示全部楼层 |阅读模式
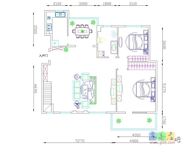
客厅东西向够宽 还有楼梯  所以不太好设计啊  

方案一:
1111.jpg
按开发商预留线是这样设计的 这也有他的道理 左右都是窗户,人坐这视野很不错。缺点是背后没有靠,好像风水是不好
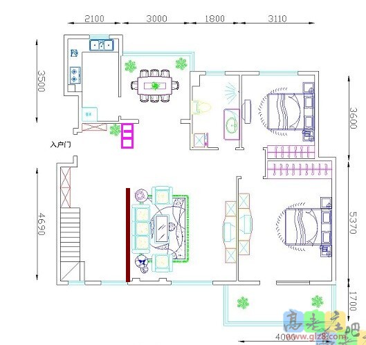
有人建议按下面的改:
2222.jpg


这样是靠实墙了,但沙发离大门远了 有7米多吧  进门能看见沙发上的人 好像也是不太好的?   人离厕所近了 我也觉的有点点不好


所以看看大家什么意见  
回复

使用道具 举报

7

主题

437

帖子

2565

积分

大专毕业

积分
2565

社区居民最爱沙发

发表于 2014-12-6 15:12:03 | 显示全部楼层
加个衣帽间
回复

使用道具 举报

481

主题

1万

帖子

5万

积分

博士毕业

积分
52600

社区居民优秀斑竹宣传大使最爱沙发社区劳模社区明星忠实会员

发表于 2014-12-6 20:22:09 | 显示全部楼层
正如一楼所说,7M多的客厅,隔出一个衣帽间或是书房比较好。要不太大了。衣帽间可以靠左侧隔出来,沙发靠衣帽间摆放。这样客厅的隐私性好些。
回复

使用道具 举报

24

主题

1万

帖子

2万

积分

硕士毕业

积分
20710

社区居民最爱沙发忠实会员社区劳模社区明星

发表于 2014-12-6 20:37:26 | 显示全部楼层
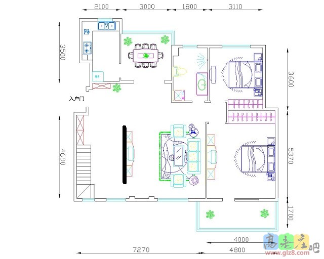
客厅沙发加道轻体墙,门厅加道玄关。。

QQ图片20141206203404.jpg
回复

使用道具 举报

9

主题

271

帖子

581

积分

初中毕业

积分
581

社区居民社区劳模

发表于 2014-12-7 01:03:08 | 显示全部楼层
总体宽度是7米,就算沙发靠墙,到电视也没有7米的。也就4米多吧。不过我还是觉得沙发在中间比较好。后面可以放边桌,柜子什么的。不用非得起个墙,大不了边桌上放个地球仪……也算有靠了,哈哈哈~
回复

使用道具 举报

22

主题

728

帖子

3912

积分

大专毕业

积分
3912

社区居民最爱沙发

发表于 2014-12-7 02:16:44 | 显示全部楼层
这么大的客厅,一定要好好设计,风水也很重要。
回复

使用道具 举报

14

主题

56

帖子

168

积分

小学毕业

积分
168

社区居民

 楼主| 发表于 2014-12-7 17:15:03 | 显示全部楼层
看来大家还是倾向于沙发在中间  好吧 我计划在沙发后面弄一排一米高的柜子做靠山 怎么样
回复

使用道具 举报

您需要登录后才可以回帖 登录 | 立即注册

本版积分规则

装修百科|手机版|小黑屋|北京高老庄建筑装饰工程有限公司 ( 京ICP备19035109号 )

GMT+8, 2026-4-1 00:29 , Processed in 0.608809 second(s), 29 queries .

快速回复 返回顶部 返回列表