北京装修论坛 - 北京装修社区_高老庄工长装修

 找回密码
立即注册
热搜: 工长 设计 曝光
查看: 6047|回复: 9

[装修讨论] 请大家帮忙看看橱柜的设计

[复制链接]

9

主题

43

帖子

114

积分

小学毕业

积分
114

社区居民忠实会员

发表于 2013-8-29 09:47:29 | 显示全部楼层 |阅读模式
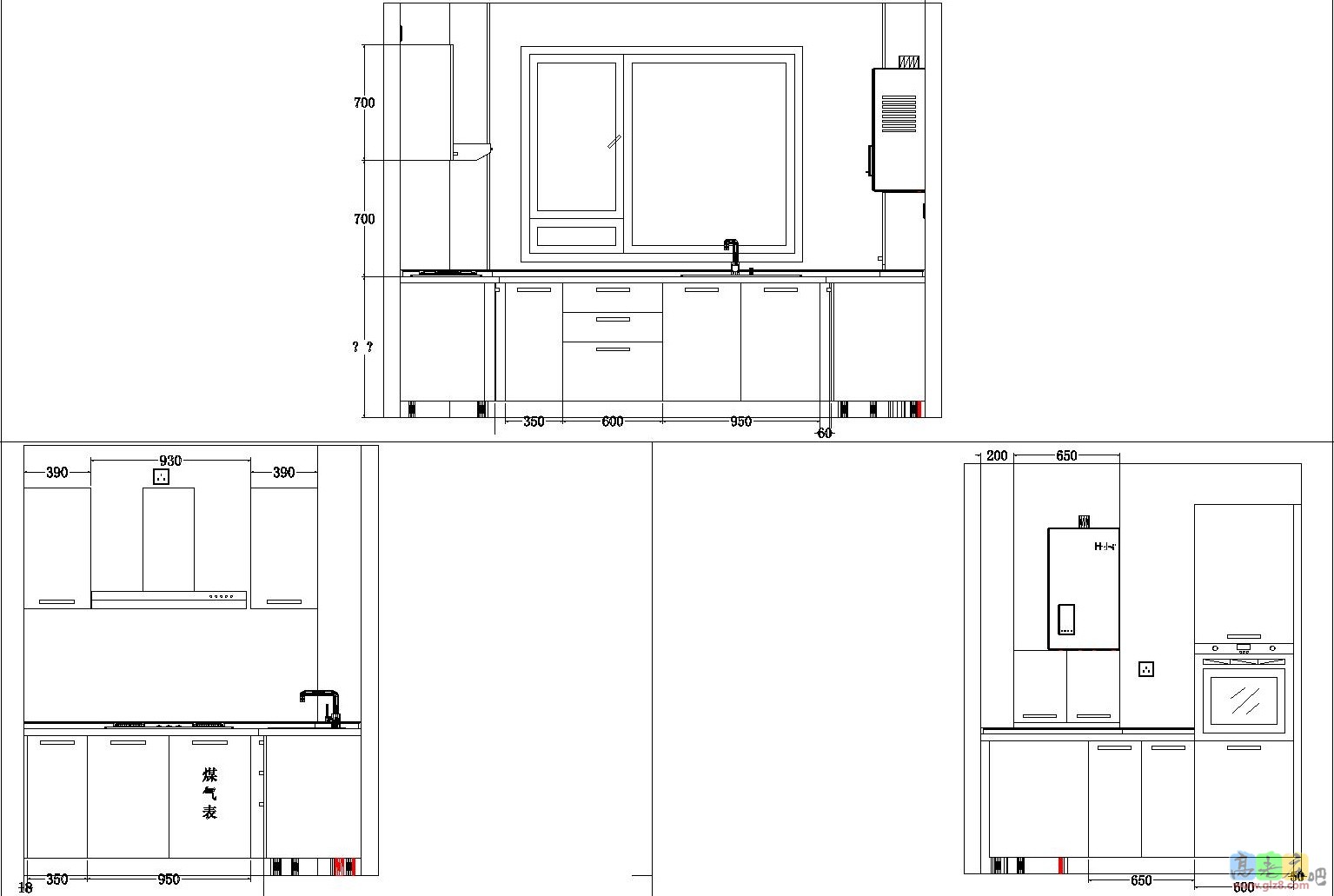
请老庄大人、暴雪大人还有各位XDJM帮我看看橱柜的设计有什么地方需要改的吗?厨房外的墙垛子是原来就带的,没有拆,谢谢大家了(第一次发带图的帖子,不知道能不能成功)

厨房1.jpg
厨房2.jpg
厨房4.jpg
厨房3.jpg
厨房5.jpg
回复

使用道具 举报

481

主题

1万

帖子

5万

积分

博士毕业

积分
52600

社区居民优秀斑竹宣传大使最爱沙发社区劳模社区明星忠实会员

发表于 2013-8-29 10:06:37 | 显示全部楼层
设计的挺好的,不知道橱柜内部的设计如何,多设计些抽屉装个拉篮比较实用。
回复

使用道具 举报

9

主题

43

帖子

114

积分

小学毕业

积分
114

社区居民忠实会员

 楼主| 发表于 2013-8-29 10:11:50 | 显示全部楼层

回 1楼(暴雪) 的帖子

暴雪:设计的挺好的,不知道橱柜内部的设计如何,多设计些抽屉装个拉篮比较实用。 (2013-08-29 10:06) 
嗯,是想多弄点抽屉的,可惜柜子后面都是水管、燃气管和地暖管,只能做成柜子了
回复

使用道具 举报

6

主题

50

帖子

146

积分

小学毕业

积分
146

社区居民

QQ
发表于 2013-8-29 10:21:21 | 显示全部楼层
1、烟道位置在什么地方?如果烟道和抽油烟机距离远,那效果就会减弱很多。
2、是有壁挂炉吧,排烟怎么走?是不能进烟道,最好墙排的。
回复

使用道具 举报

9

主题

43

帖子

114

积分

小学毕业

积分
114

社区居民忠实会员

 楼主| 发表于 2013-8-29 10:38:09 | 显示全部楼层

回 3楼(zhangjx_glz) 的帖子

zhangjx_glz:1、烟道位置在什么地方?如果烟道和抽油烟机距离远,那效果就会减弱很多。
2、是有壁挂炉吧,排烟怎么走?是不能进烟道,最好墙排的。 (2013-08-29 10:21) 
1、烟道的位置在窗户那面墙的左上角,离着应该也还好吧

2、嗯,是壁挂炉,排烟在壁挂炉的上面,直接有管子排出去了,为了壁挂炉使用上方便也安全,我就选择不把它包起来了,我家在一层,好像是墙排
回复

使用道具 举报

9

主题

43

帖子

114

积分

小学毕业

积分
114

社区居民忠实会员

 楼主| 发表于 2013-8-29 10:41:52 | 显示全部楼层
现在纠结的就是这个小吧台,我初步设想是450宽,底下是一个小柜子支撑,设计师说,底下的柜子不能太窄,否则没法支撑住台面(台面石英石),他给我的意见是270宽的柜子支撑,我担心剩下的那部分台面,坐在椅子上腿好不好放。。。
回复

使用道具 举报

481

主题

1万

帖子

5万

积分

博士毕业

积分
52600

社区居民优秀斑竹宣传大使最爱沙发社区劳模社区明星忠实会员

发表于 2013-8-30 10:42:09 | 显示全部楼层

回 5楼(悠羽yany) 的帖子

悠羽yany:现在纠结的就是这个小吧台,我初步设想是450宽,底下是一个小柜子支撑,设计师说,底下的柜子不能太窄,否则没法支撑住台面(台面石英石),他给我的意见是270宽的柜子支撑,我担心剩下的那部分台面,坐在椅子上腿好不好放。。。 (2013-08-29 10:41) 
柜子比较实用一些,可以再在柜子上做一个脚踏。
回复

使用道具 举报

9

主题

43

帖子

114

积分

小学毕业

积分
114

社区居民忠实会员

 楼主| 发表于 2013-8-30 10:53:49 | 显示全部楼层

回 6楼(暴雪) 的帖子

暴雪:柜子比较实用一些,可以再在柜子上做一个脚踏。 (2013-08-30 10:42) 
嗯,谢谢暴雪,但是就是这个柜子的宽窄,宽了没地方放腿,窄了怕柜体承受不住石英石会倒(因为台面的长度,不能完全和墙体固定,只能固定在柜子上),设计师是这样说的。。这个问题想得我晚上都睡不着
回复

使用道具 举报

1

主题

26

帖子

63

积分

学前班

积分
63

社区居民

发表于 2013-9-11 14:35:29 | 显示全部楼层
请老庄帮忙看看设计合理吗?
回复

使用道具 举报

1314

主题

1万

帖子

4万

积分

管理员

Rank: 9Rank: 9Rank: 9

积分
43987

社区居民社区劳模最爱沙发社区明星忠实会员

发表于 2013-9-11 14:59:35 | 显示全部楼层

回 8楼(白云) 的帖子

白云:请老庄帮忙看看设计合理吗? (2013-09-11 14:35) 
挺好的。
回复

使用道具 举报

您需要登录后才可以回帖 登录 | 立即注册

本版积分规则

装修百科|手机版|小黑屋|北京高老庄建筑装饰工程有限公司 ( 京ICP备19035109号 )

GMT+8, 2026-4-10 08:47 , Processed in 1.057992 second(s), 30 queries .

快速回复 返回顶部 返回列表