北京装修论坛 - 北京装修社区_高老庄工长装修

 找回密码
立即注册
热搜: 工长 设计 曝光
查看: 15604|回复: 45

自己设计,自己动手(部分),建造现代温馨大HOUSE

[复制链接]

9

主题

68

帖子

200

积分

小学毕业

积分
200

社区居民

发表于 2013-9-11 11:14:01 | 显示全部楼层 |阅读模式
昨天刚拿到钥匙,真是不容易啊!3月份开始看房,4月底交了定金,然后等信儿交首付(交首付也要等开发商通知的,说是排队),准备贷款用的材料,提交材料,等公积金贷款审批(不幸的是刚好赶上了审批改革,结果我们的材料走了两次审批程序),等啊等,一直等了半年,终于在昨天拿钥匙了,我们家是整个小区倒数第三、四户拿钥匙的了。
收完房,我们就动手测量了,昨天下班后又去补测了下,争取今天把户型图画出来(带有准确尺寸的)。
在这里写下我家的装修日记,记录这段艰难并美好的装修过程。
                                                                                                         2013-9-11

我们的计划是,不找装修公司,不找工长,自己设计布局
1,找专业地暖公司铺地暖(实际情况是地暖公司特忙,把我们的活转给了建材城一家金德水管店,包工包料55元/平,回填30元/平)
2,从建材城中水管店负责我们家的水电改造(据我们多渠道实际的了解,水管店都有自己经常合作的水电工人,店里只收用料的钱,工人收工钱)。我们家铺地暖和水电改造没在一家做,原因是,我们水电改造时多长了个心眼,多问了几家水管店,比较后选择了现在这家店。还得知,这家店铺地暖价格比我们的便宜,金德水管包工包料50元/平,后悔当初铺地暖那会儿没直接到水管店来问问打听打听

家庭成员介绍:2013-10-10
媳妇:也就是我,经常有想法,想法多了,经常会不切实际(这是老公给我的评价),这次装修,是我们的第一次装修,经常有想法的我,自觉得担起了总设计师的职务,自从交了首付,我就开始又是画图,又是看装修的帖子,忙得不亦乐乎!

老公:思想保守,没有创意(嘘~不要被我老公发现)。我的设计经常被老公否定,再改设计,一般改一两回,才能最后达成一致。
儿子:1岁半,可爱,懂事,每当跟老公吵架时一看到儿子就什么气都没有了,‘儿子多可爱啊’,然后我俩就都不吵了
公公: 这次装修,公公得为我们出不少力,我们都上班时帮我们盯着,还有拆原有的暖气管也是公公和大爷帮着给拆的,省了这部分费用了
婆婆:帮我们带孩子,以后也算是我们新房的常住人口

装修进行了一大半了,记录一下花费,供有需要的朋友参考:
铺地暖含回填:金德水管,8800元,铺管面积100平
          改水电:水管全部用的金德热水管,材料费3101元(还剩余一些配件没退),人工费3200元
             贴砖:客厅、餐厅、厨房、过道的地面,俩卫生间和厨房墙面,用的马克波罗的砖,共15796元,
                        所有瓦工活人工费7300元
回复

使用道具 举报

9

主题

68

帖子

200

积分

小学毕业

积分
200

社区居民

 楼主| 发表于 2013-9-11 14:36:58 | 显示全部楼层
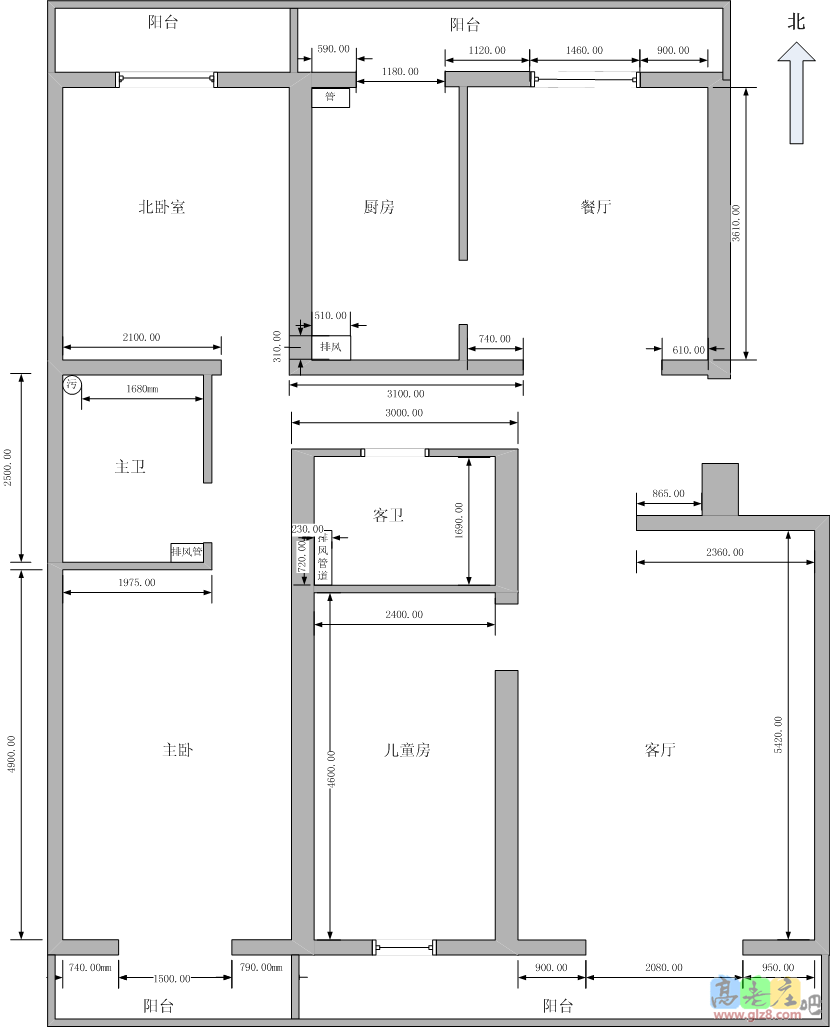
新出炉的户型图,建面156.98,南北通透,打算把厨房和餐厅中间的墙打掉,做开放式厨房,餐厅加门。
户型图(原始).png
回复

使用道具 举报

9

主题

68

帖子

200

积分

小学毕业

积分
200

社区居民

 楼主| 发表于 2013-9-12 11:21:33 | 显示全部楼层
着急!!!现在还能订地康地暖的团购价格吗?
回复

使用道具 举报

9

主题

68

帖子

200

积分

小学毕业

积分
200

社区居民

 楼主| 发表于 2013-9-12 13:16:22 | 显示全部楼层
这楼做个标记
回复

使用道具 举报

9

主题

68

帖子

200

积分

小学毕业

积分
200

社区居民

 楼主| 发表于 2013-9-12 15:19:49 | 显示全部楼层
因为装修,夫妻吵架的,请举手!
回复

使用道具 举报

9

主题

68

帖子

200

积分

小学毕业

积分
200

社区居民

 楼主| 发表于 2013-9-16 15:53:37 | 显示全部楼层
百度了下黄历,2013年9月15日是个好日子,得,放鞭炮,开工!公公敲的第一锤!

老公点鞭炮

老公点鞭炮

公公开砸

公公开砸
回复

使用道具 举报

9

主题

68

帖子

200

积分

小学毕业

积分
200

社区居民

 楼主| 发表于 2013-9-16 16:00:02 | 显示全部楼层

回 6楼(北京旁边的密云) 的帖子

北京旁边的密云:百度了下黄历,2013年9月15日是个好日子,得,放鞭炮,开工!公公敲的第一锤! (2013-09-16 15:53)
那个长鞭随便摆了个造型,一头朝着东南,东南是我老家山东的方向,另一头朝向东北,即婆家顺义的方向
回复

使用道具 举报

1314

主题

1万

帖子

4万

积分

管理员

Rank: 9Rank: 9Rank: 9

积分
43987

社区居民社区劳模最爱沙发社区明星忠实会员

发表于 2013-9-16 19:35:55 | 显示全部楼层

回 5楼(北京旁边的密云) 的帖子

北京旁边的密云:因为装修,夫妻吵架的,请举手! (2013-09-12 15:19) 
回复

使用道具 举报

1

主题

9

帖子

30

积分

学前班

积分
30

社区居民

发表于 2013-9-16 23:03:35 | 显示全部楼层
很吵一架,就因为意见不一致
回复

使用道具 举报

9

主题

68

帖子

200

积分

小学毕业

积分
200

社区居民

 楼主| 发表于 2013-9-20 21:16:05 | 显示全部楼层
19号,厨房跟餐厅打通完成!客卫的墙没拆!

厨房和餐厅的墙敲掉后

厨房和餐厅的墙敲掉后
回复

使用道具 举报

您需要登录后才可以回帖 登录 | 立即注册

本版积分规则

装修百科|手机版|小黑屋|北京高老庄建筑装饰工程有限公司 ( 京ICP备19035109号 )

GMT+8, 2026-4-8 17:49 , Processed in 0.142228 second(s), 27 queries .

快速回复 返回顶部 返回列表