北京装修论坛 - 北京装修社区_高老庄工长装修

 找回密码
立即注册
热搜: 工长 设计 曝光
查看: 4535|回复: 1

[装修讨论] 求老庄帮忙看看这个平面图摆放合理么

[复制链接]

1

主题

1

帖子

14

积分

学前班

积分
14

社区居民

QQ
发表于 2013-9-14 12:38:30 | 显示全部楼层 |阅读模式
678764e2taaaeb79fc2e2&690.jpg
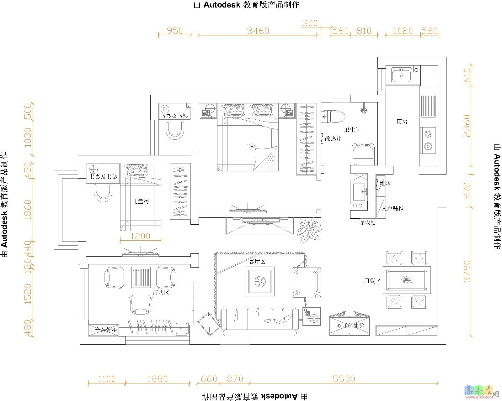
求老庄给看看。
第一:老公想把灶台放最里面,说放门口,灶台上正煮东西如果有小孩进入厨房害怕火苗伤人。还有希望水池在门口方便洗东西。省的洗个苹果还得走到厨房最里面。厨房面积比较小。换到门口合理么?
第二:我感觉穿衣镜应该放在卧室。放卫生间是不是有点多余。因为在卧室换好衣服一般都会直接在卧室显摆一下。。卫生间潮湿。
第三:卫生间马桶是不是必须按照开发商预留的孔放置,还是可以换换地方?
回复

使用道具 举报

1314

主题

1万

帖子

4万

积分

管理员

Rank: 9Rank: 9Rank: 9

积分
43987

社区居民社区劳模最爱沙发社区明星忠实会员

发表于 2013-9-14 13:21:52 | 显示全部楼层
1、合理,里面离烟道也近,小孩进入火苗伤不了人。但是,来回开门造成炒菜的时候火苗不稳。
我觉得水槽改位置没什么必要,现在的位置很好,要变得,得移动下水管花费高,麻烦。
烟灶移动到烟道下面。

2、对的。

3、不可以换马桶位置。
回复

使用道具 举报

您需要登录后才可以回帖 登录 | 立即注册

本版积分规则

装修百科|手机版|小黑屋|北京高老庄建筑装饰工程有限公司 ( 京ICP备19035109号 )

GMT+8, 2026-4-10 05:46 , Processed in 1.323675 second(s), 29 queries .

快速回复 返回顶部 返回列表