北京装修论坛 - 北京装修社区_高老庄工长装修

 找回密码
立即注册
热搜: 工长 设计 曝光
查看: 16303|回复: 44

自己动手,丰衣足食,享受装修乐趣。

[复制链接]

24

主题

109

帖子

276

积分

小学毕业

积分
276

社区居民

发表于 2013-9-26 20:06:05 | 显示全部楼层 |阅读模式
       经过这一个月的摸爬滚打,以及高老庄的耳濡目染,我的装修计划准备开始实行了。起初,由于自己的偷懒和不作为,天真的以为把装修交给装修公司就可以高枕无忧。于是乎,在2个星期前,去了趟lw,实话实说,lw的接待以及家装营销确实做的还不错,可能我这种小白容易被忽悠吧。到了那里就被一个美女店面经理和一设计师给套牢了,选择了lw的五星家装。经过这两个星期的扯皮,和设计师的不断沟通,以及在jrzj对主材的选购,并且lw都已经派了施工队去我们家进行了预交底。就在这时,这两个星期在高老庄的学习,逐渐让我的脑子里对装修建立了不少概念,包括基础施工和主材的购买,同时也看透了lw的那些无良的坑人手段,于是果断和lw说了88。
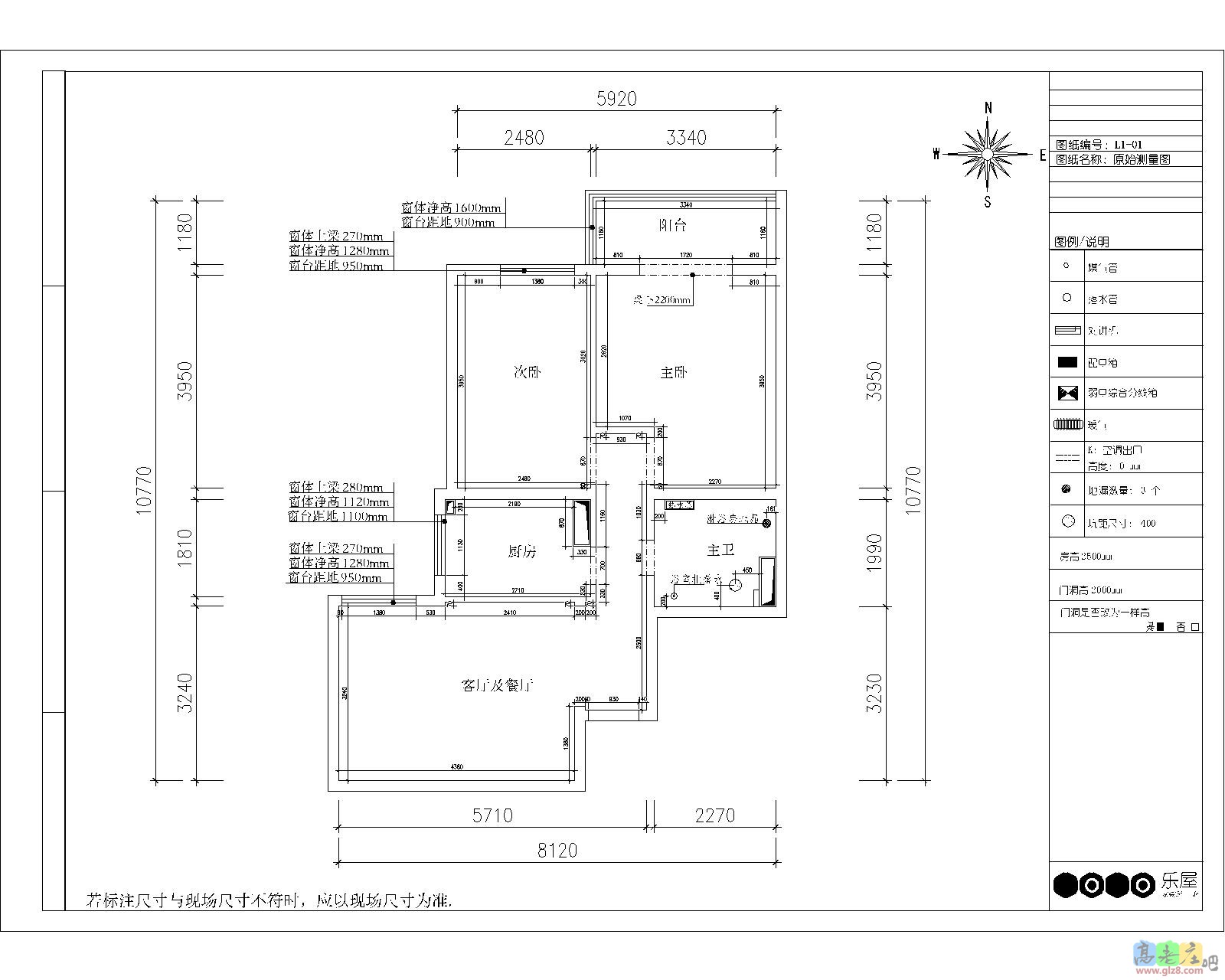
       不过,lw的施工队已经在我家开始施工了,还好当时设计师出的主意说拆改,让我和装修队自己谈,由于当时lw的介入,76平的房子还是被装修队给黑了一把,2800的拆改费。哎,亡羊补牢为时未晚吧。目前,家里已基本拆完,同时通过和lw设计师前期的沟通,也对家里的摆放有了一个大概的设计。先摆放一张家里的户型图吧。

户型图

户型图

          目前,我打算自己找个工长,根据之前的一些设计,进行装修。已经定于9月28日,约了4位工长还有德斯曼的橱柜设计师上门测量,同时还约了地康的设计师在10月1日去家里谈一下,之前lw在预交底时候,已经大概把我们家的电路布局说了一遍,我心里也算有个数,再加上一些新的想法,到时再和地康的师傅谈一下。再决定水电让谁做,虽然老庄一再强调水电交给专业的公司去做,不过还是先对比一下吧。
          这里三个疑问,想先咨询一下老庄。
           1. 是我用不用提前约一下散热器厂家,我家的暖气肯定是要换的,并且一些摆放位置也要有所调整,牵涉到改管道,我是不是要提前约一下散热器厂家让他们先上门看一下,确定下方案?
           2. 我们家原来的3个壁挂空调位置都还不错,不打算换位置,空调孔应该不用重新打了吧,直接先堵上就行吧。
           3. 还有就是,我准备利用十一,泡到建材市场,同时利用团购的机会把主材都顶了,目前飞云防盗门已经量过了,港典门窗后天去量房,目前这个阶段我还有什么遗漏没做的工作吗?
          ps.我和之前lw那个设计师聊的还挺好,她答应把我们当初设计的最终的设计图,以及水路改造图,电路改造图给我。准备按照这个施工。还有准备在十一期间把工长也选定。
回复

使用道具 举报

24

主题

109

帖子

276

积分

小学毕业

积分
276

社区居民

 楼主| 发表于 2013-9-26 20:35:34 | 显示全部楼层
已经联系了米兰春天,但是貌似和他们沟通起来,特别被动,有一种求着他们的感觉。最后答复是十一应该能安排时间去你家看看,他们家是不免费测量吗?
回复

使用道具 举报

24

主题

109

帖子

276

积分

小学毕业

积分
276

社区居民

 楼主| 发表于 2013-9-26 20:36:15 | 显示全部楼层
各位,还有别的散热器公司吗?有用过凯捷的吗?
回复

使用道具 举报

3

主题

34

帖子

94

积分

学前班

积分
94

社区居民

发表于 2013-9-26 22:45:05 | 显示全部楼层
散热器厂家很多,太阳花了,圣劳伦斯了,新飞。。。。。。。。
回复

使用道具 举报

1314

主题

1万

帖子

4万

积分

管理员

Rank: 9Rank: 9Rank: 9

积分
43987

社区居民社区劳模最爱沙发社区明星忠实会员

发表于 2013-9-27 00:45:23 | 显示全部楼层
1,没错,要先约散热器厂家。和水电改造应该是前后脚。

2,是的。

3,要先做橱柜设计,其次才是水电改造。

4,米兰春天免费测量的。
回复

使用道具 举报

24

主题

109

帖子

276

积分

小学毕业

积分
276

社区居民

 楼主| 发表于 2013-9-27 09:13:21 | 显示全部楼层
继续问老庄,那散热器改管道和水电改在施工时候是同时进行吗?两拨人一起干活?会有什么衔接的问题吗?
回复

使用道具 举报

1314

主题

1万

帖子

4万

积分

管理员

Rank: 9Rank: 9Rank: 9

积分
43987

社区居民社区劳模最爱沙发社区明星忠实会员

发表于 2013-9-27 10:32:47 | 显示全部楼层

回 5楼(vaguepig) 的帖子

vaguepig:继续问老庄,那散热器改管道和水电改在施工时候是同时进行吗?两拨人一起干活?会有什么衔接的问题吗? (2013-09-27 09:13) 
可以同时进行,没什么衔接的问题。
回复

使用道具 举报

24

主题

109

帖子

276

积分

小学毕业

积分
276

社区居民

 楼主| 发表于 2013-9-27 19:57:30 | 显示全部楼层
问题有点多,实在抱歉,继续问老庄。由于家里靠着马路,噪音比较大,明天港典上门测量。初步计划是订购65的断桥铝,他原来的套餐是5+21+5的玻璃,我想如果改成3层玻璃,是5+?+5+?+5的意思吗?这样隔热肯定更好了,但是对于降噪有没有明显的改进呢。如果没有降噪功能,2层的隔热已经完全够用了。
回复

使用道具 举报

24

主题

109

帖子

276

积分

小学毕业

积分
276

社区居民

 楼主| 发表于 2013-9-27 21:20:28 | 显示全部楼层
三层中空玻璃密封空间内的空气,由于胶条内的干燥剂作用,成为导声系数很低的干燥气体,从而构成一道隔音屏障。使用三片厚度不同的原片玻璃制成的中空玻璃,由于声波在不同的介质中传播时的折射率不同,致使声波通过三层中空玻璃时,在两种介质的临界面产生折射,从而将大部分声音反射回去,并且避免了声音的共振,其隔音效果更为显著。  
自问自答了,又有疑问了,如果用3层玻璃,是不是选择70的更好。窗户上不怕花钱,因为多花那么点钱,噪音如果能下来,能大大提升生活品质,这个性价比还是很高的。
回复

使用道具 举报

1314

主题

1万

帖子

4万

积分

管理员

Rank: 9Rank: 9Rank: 9

积分
43987

社区居民社区劳模最爱沙发社区明星忠实会员

发表于 2013-9-29 23:41:54 | 显示全部楼层

回 8楼(vaguepig) 的帖子

vaguepig:三层中空玻璃密封空间内的空气,由于胶条内的干燥剂作用,成为导声系数很低的干燥气体,从而构成一道隔音屏障。使用三片厚度不同的原片玻璃制成的中空玻璃,由于声波在不同的介质中传播时的折射率不同,致使声波通过三层中空玻璃时,在两种介质的临界面产生折射,从而将大部分声音 .. (2013-09-27 21:20) 
当然70的更好。
回复

使用道具 举报

您需要登录后才可以回帖 登录 | 立即注册

本版积分规则

装修百科|手机版|小黑屋|北京高老庄建筑装饰工程有限公司 ( 京ICP备19035109号 )

GMT+8, 2026-4-9 01:45 , Processed in 0.213900 second(s), 29 queries .

快速回复 返回顶部 返回列表