北京装修论坛 - 北京装修社区_高老庄工长装修

 找回密码
立即注册
热搜: 工长 设计 曝光
查看: 9592|回复: 23

帝都二手三居的装修历程(从找设计师开始,希望收笔的时候能够心想事成)

[复制链接]

2

主题

15

帖子

44

积分

学前班

积分
44

社区居民忠实会员

发表于 2013-10-13 22:00:04 | 显示全部楼层 |阅读模式
千头万绪不知道从何开始,呼吸着帝都污浊的空气开着两年才跑了10000多公里的车,历经几个月才选中了自己心仪的房子。
期间恰逢国五条出台和房价上涨后售房者的百般刁难,从侥幸到提心吊胆,最后到无力吐槽。。一番挣扎下还是在父母的鼎力支持下买了一套属于自己的三居,个中滋味难以言表,只是更坚定了我们奋斗的意志。


设计篇
废话不多说了,进入正题由于比较看重设计,所以整个十一期间都在寻觅好的设计师,从博洛尼到东易日盛几家比较好的装饰公司也都有进行走访,但是最终还是决定找一个独立的设计师来做设计。
个人感觉设计这东西,是仁者见仁智者见智,设计师的品味和层次很重要,由于我同家里的领导都比较喜欢中式略带古朴禅意的装修,初期通过APP的软件选了一些喜欢的图片,拿着家里的户型图像面试一样挑选过几个设计师。
我认为挑选设计师最简单的方法是,考虑好你的预算(一般设计费在100-300/平米间浮动),在网上浏览设计师的作品,对应找到喜欢的设计师开始面试。
我们最终敲定了一个200元/平米的设计师,设计费最终在25000元左右。
接下来的工作就是,量房、填写调查问卷、发送喜欢风格的照片
然后设计师出平面图,一同修改平面图,看设计师补充的设计风格图片,双方达成一致
以上的工作大概在7天内完成。
回复

使用道具 举报

2

主题

15

帖子

44

积分

学前班

积分
44

社区居民忠实会员

 楼主| 发表于 2013-10-13 22:00:33 | 显示全部楼层
拆除篇

此处先占楼,等拆除完成后再写。
回复

使用道具 举报

2

主题

15

帖子

44

积分

学前班

积分
44

社区居民忠实会员

 楼主| 发表于 2013-10-13 22:09:58 | 显示全部楼层
老庄同志及各位吧友,有人了解行情么?帮忙看看报价是否合理?
其中第9项,由于小区供暖是串联的,改地暖太麻烦,目前取消刨地这一科目,因此这项费用不存在了
另外综合费用,第2项管理费,貌似没有这么高物业只收取500元,及3000元押金。
看了老庄的帖子,建议在拆除处自己找人做,本人老爸动手能力特别强,之前几次装修也参与了很多,目前有几个合作过的工人也可以拆除,但是考虑到不想让老爸这么辛苦,如果价格合理考虑可以直接按照设计师队伍的报价来做。

555555,老庄居然都不回复我,拆除最终找了以前装修施工的师傅处理,4000大元搞定一切。
在此处的心得比较简单,由于拆除几乎没有太多的技术含量,找包工队干这事不太合适,建议找小区周围垃圾回收处理的人员聊一聊,兴许有意外的收获
拆除报价1.JPG
拆除报价2.JPG
引用坛子经验一般装修公司对拆瓷砖、拆墙之类的活儿是按平米报价的,如果家里拆改大,这可是不小的开支,这个时候可以另外找装修小工干,告诉他所有的工作量,让他給你报个总价,你会发现往往比装修公司的价格低好多,当然,这种操作是有风险的,要防止找来的是个蛮干分子,一下把你家砸得千疮百孔,所以,最好找熟悉的工人
回复

使用道具 举报

6

主题

99

帖子

658

积分

高中毕业

积分
658

社区居民

发表于 2013-10-13 22:12:37 | 显示全部楼层
这拆除费用有点吓人啊。
回复

使用道具 举报

2

主题

15

帖子

44

积分

学前班

积分
44

社区居民忠实会员

 楼主| 发表于 2013-10-13 22:54:17 | 显示全部楼层
就是说啊,我也觉得报价有点高,物流的费用太高了。

我不太明白税金和管理费这块,我觉得应该没有这些费用。
另外一个刨地的9600是不存在的?

各位是不是感觉整体报价都偏高?
回复

使用道具 举报

2

主题

15

帖子

44

积分

学前班

积分
44

社区居民忠实会员

 楼主| 发表于 2013-10-19 21:43:26 | 显示全部楼层
拆除之后的图片,很悲催的发现这层是设备层,有很多暖气管道,不知道会不会影响新风和中央空调的安装,建议大家以后再买二手房的时候搞清楚购买的楼层是不是设备层
拆除 (1).JPG
拆除 (2).JPG
回复

使用道具 举报

2

主题

15

帖子

44

积分

学前班

积分
44

社区居民忠实会员

 楼主| 发表于 2013-10-19 21:45:06 | 显示全部楼层
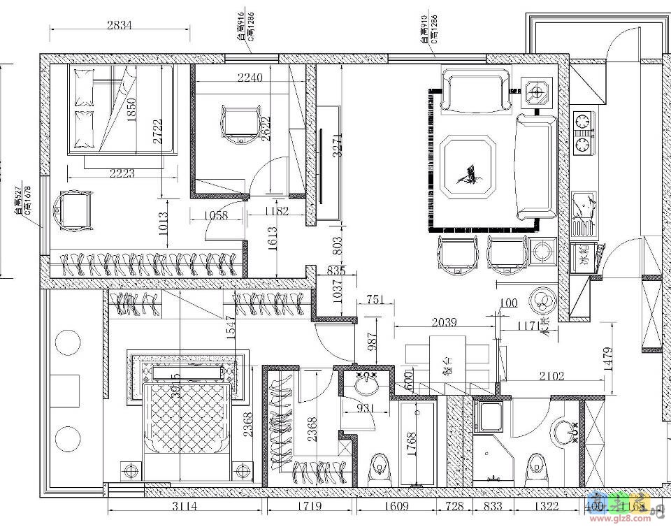
发张初步的设计图上来,由于领导衣服太多,梦想就是有个步入式衣帽间,因此安排了茫茫多的衣柜。
从而将主卧和主卫的空间减少了。
各位吧友可有好的建议?

装修风格是新中式,但不希望太过于老气,希望有些禅意。
在浮躁的帝都能够在回家之后获得身心的宁静。
设计图.JPG
房子还算周正,但是客厅的长度有点太大了,原本进门正对卫生间,由于风水不好改到朝向客厅。

最大的改变是强行在主卧和主卫间加了一个步入式的衣帽间
回复

使用道具 举报

1314

主题

1万

帖子

4万

积分

管理员

Rank: 9Rank: 9Rank: 9

积分
43987

社区居民社区劳模最爱沙发社区明星忠实会员

发表于 2013-10-19 21:50:46 | 显示全部楼层

回 6楼(nirvana) 的帖子

nirvana:发张初步的设计图上来,由于领导衣服太多,梦想就是有个步入式衣帽间,因此安排了茫茫多的衣柜。
从而将主卧和主卫的空间减少了。
各位吧友可有好的建议?

装修风格是新中式,但不希望太过于老气,希望有些禅意。
....... (2013-10-19 21:45) 
户型设计的不错,紧凑而高效,确实是专业设计师的作品。

新开装修日记,加粗加亮。

另外欢迎参加装修日记大赛,只要跟贴报名即可,什么也不要改变。如果购买的是高老庄团购的商品,商家就会提供现金回馈。呵呵,老庄在变着法子,让大家省点钱。嘿嘿。

[装修日记]2013年度『新中源』记录艰辛装修历程,留下幸福美好回忆,装修日记大赛说明和报名贴,请跟帖报名!!

http://bbs.glz.cn/read.php?tid-9821.html
回复

使用道具 举报

2

主题

15

帖子

44

积分

学前班

积分
44

社区居民忠实会员

 楼主| 发表于 2013-10-19 21:51:55 | 显示全部楼层
窗户篇

从吧内学到了很多知识,恰逢两个好基友也在装修,推荐了一家门窗厂家,今天去实地考察了一下,做工还不错,测量的师傅很专业。

老庄啊,和平门窗怎么样?
回复

使用道具 举报

1314

主题

1万

帖子

4万

积分

管理员

Rank: 9Rank: 9Rank: 9

积分
43987

社区居民社区劳模最爱沙发社区明星忠实会员

发表于 2013-10-19 21:56:17 | 显示全部楼层

回 8楼(nirvana) 的帖子

nirvana:窗户篇

从吧内学到了很多知识,恰逢两个好基友也在装修,推荐了一家门窗厂家,今天去实地考察了一下,做工还不错,测量的师傅很专业。

老庄啊,和平门窗怎么样? (2013-10-19 21:51) 
不太了解。
回复

使用道具 举报

您需要登录后才可以回帖 登录 | 立即注册

本版积分规则

装修百科|手机版|小黑屋|北京高老庄建筑装饰工程有限公司 ( 京ICP备19035109号 )

GMT+8, 2026-4-9 00:26 , Processed in 0.734644 second(s), 30 queries .

快速回复 返回顶部 返回列表