
|
|
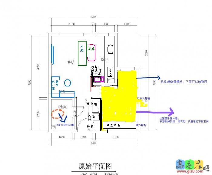
[装修讨论] 装修咋这么头疼呢?量房设计就快烦死了,大家帮我参谋下啊 |
回 19楼(醉蟋蟀) 的帖子
| ||
| ||
回 21楼(wxq21hl) 的帖子
| ||
回 22楼(独上西楼) 的帖子
| ||
回 23楼(wxq21hl) 的帖子
| ||
回 19楼(醉蟋蟀) 的帖子
| ||
| ||
| ||
装修百科|手机版|小黑屋|北京高老庄建筑装饰工程有限公司 ( 京ICP备19035109号 )
GMT+8, 2026-4-9 16:33 , Processed in 0.359128 second(s), 27 queries .