北京装修论坛 - 北京装修社区_高老庄工长装修

 找回密码
立即注册
热搜: 工长 设计 曝光
查看: 4412|回复: 4

厨房和卫生间改造,大家帮忙看看是否有必要

[复制链接]

9

主题

43

帖子

126

积分

小学毕业

积分
126

社区居民

发表于 2013-10-25 11:26:08 | 显示全部楼层 |阅读模式


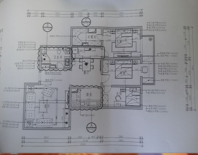
房子是塔楼,卧室阳台朝东,厨房的窗户向南,但对面有另外的户型遮挡。
设计师建议不做阳台门,增加卧室空间,阳台加保温层。
餐厅是采光最差的地方,依靠两个卧室的门和厨房的门打开采光。
设计师建议把厨房的墙拆掉一部分,变成双推拉门,增加采光。
厨房和卫生间改造,大家帮忙看看是否有必要
回复

使用道具 举报

9

主题

43

帖子

126

积分

小学毕业

积分
126

社区居民

 楼主| 发表于 2013-10-25 11:28:15 | 显示全部楼层
入门口有一个储藏间,设计师建议做一个鞋柜。里面同卫生间打通,做淋浴间!
回复

使用道具 举报

481

主题

1万

帖子

5万

积分

博士毕业

积分
52600

社区居民优秀斑竹宣传大使最爱沙发社区劳模社区明星忠实会员

发表于 2013-10-25 11:57:33 | 显示全部楼层

回 1楼(bubugaogao) 的帖子

bubugaogao:入门口有一个储藏间,设计师建议做一个鞋柜。里面同卫生间打通,做淋浴间! (2013-10-25 11:28) 
如果家里的杂物比较少,有可放的地方,这样设计也比较不错。增大了卫生间的空间,也避免了在右侧做鞋柜。

厨房的话也可以这样设计,用玻璃门,这样餐厅采光好些。
回复

使用道具 举报

9

主题

43

帖子

126

积分

小学毕业

积分
126

社区居民

 楼主| 发表于 2013-10-25 12:58:14 | 显示全部楼层
主卧没有放衣柜的地方,所以把主卫改成衣帽间了,这将是家里主要的储藏空间了。
回复

使用道具 举报

1

主题

12

帖子

76

积分

学前班

积分
76

社区居民

发表于 2013-10-26 13:03:49 | 显示全部楼层
设计师建议把厨房的墙拆掉一部分,变成双推拉门,增加采光还是不错的
回复

使用道具 举报

您需要登录后才可以回帖 登录 | 立即注册

本版积分规则

装修百科|手机版|小黑屋|北京高老庄建筑装饰工程有限公司 ( 京ICP备19035109号 )

GMT+8, 2026-4-9 15:01 , Processed in 0.171753 second(s), 24 queries .

快速回复 返回顶部 返回列表