北京装修论坛 - 北京装修社区_高老庄工长装修

 找回密码
立即注册
热搜: 工长 设计 曝光
查看: 6439|回复: 17

[装修讨论] 户型图和装修问题请教

[复制链接]

25

主题

311

帖子

714

积分

高中毕业

积分
714

社区居民社区劳模

发表于 2013-11-9 14:20:32 | 显示全部楼层 |阅读模式
为孩子上学买的二手房,因为小,并在老庄吧潜心学习了一段时间,参加团购会、走访建材城,决定自己设计房子,以简约作为主基调。请版主、设计师和坛子里的XDJM帮我看看。
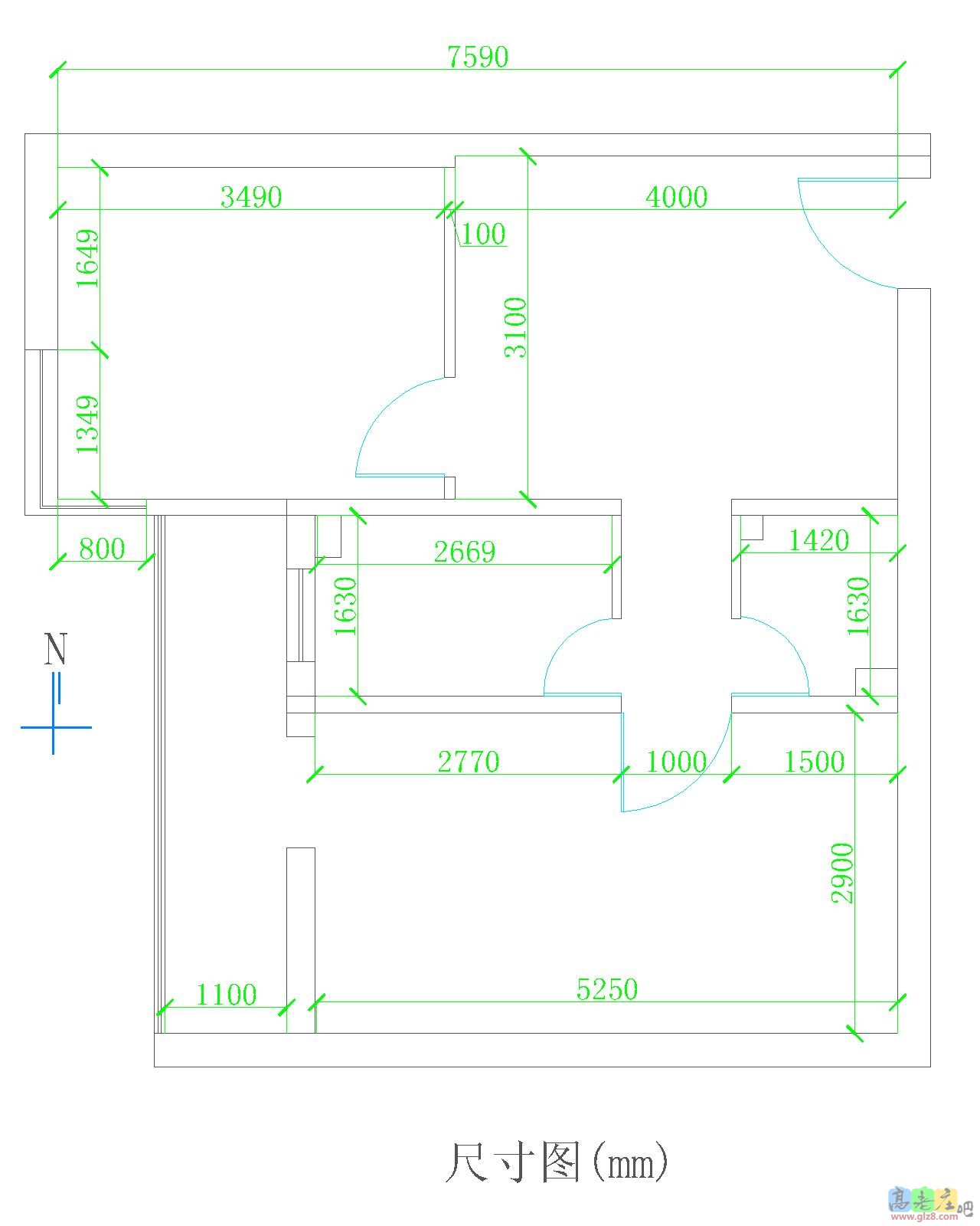
自己测量的房子,尺寸稍有误差。家里主要是三口人,家中老人偶尔会来。
house-0.jpg

钢混结构、高层全西向的小两居,房内使用面积不足50平米,好在门廊外有窗户,可以开门上纱窗通风,所以换个门上有窗的防盗门是必须的。
1.       进门是暗厅,小卧墙被原房主打成博古架隔断,往西推了一点,客厅稍长,问题是原隔断墙地方比客厅窄10cm,直接忽略或有无好办法?客厅宽度3.1米。
2.       小卧西墙有暖气管,导致床不能靠墙,本想把暖气片移到儿童书桌下,但觉得没意义,就想还是保留吧,空白的墙距有什么好的处理办法没?
3.       卫生间非常小,开门都无法洗手了,我想改推拉门,即便如此,马桶到洗手池距离还是紧张。原房主放了个小浴盆在喷头下,我如果拆掉改浴帘,仅靠地面排水坡,水会不会溢出,地方小不好做淋浴房或挡水石。宽度1.63米。
4.       厨房是很矛盾的事情,首先厨卫门相对,LG坚持一点要改,不能对上,因为窄,特想做单面橱柜,导致我在厨房布置上后改的方案很别扭(后文叙);其次,房间的冰箱和洗衣机不好安排,原房主竟把冰箱放阳台,买了东西从客厅绕过主卧去阳台放,晕!特别想把厨房通阳台的窗户打通,可是请教做结构的朋友,他说钢混结构的房子,如果墙不是砌体或砖,为混凝土结构,那就是剪力墙,不能拆,结果看了是混凝土结构的,还有钢筋呢。
5.       主卧,整体狭长,宽仅2.9米,门以东有1.5米,放完衣柜又不能直接放床,那样床正对着门也不好,可是还要兼有书房功能;另外,通向阳台原窗户门已被拆除,原房主在阳台加了一组暖气,但窗下这一截矮墙也是混凝土结构的,似乎也不能拆除。
回复

使用道具 举报

25

主题

311

帖子

714

积分

高中毕业

积分
714

社区居民社区劳模

 楼主| 发表于 2013-11-9 14:22:07 | 显示全部楼层
做了两个方案,各有利弊。
共同点:
1.       大门外开,入口放隔断,可以是折叠隔断,或者直接网购屏风,阻隔视线,通风时移开;
2.       进门左手放折叠餐桌,满足三人即可,上有吊柜,代替厨边柜;
3.       客厅与小卧之间用玻璃推拉隔断,建材市场上做窗户的就可以,铝镁合金双层玻璃,隔音性尚好;
4.       卫生间改推拉门,阳台两侧做储物柜,洗衣机放阳台等。

不同:
方案一:
1.       小卧放儿童衣柜、书柜,便于孩子独立管理自己物品,不便之处是衣柜开门向外,需推拉隔断;衣柜、书柜也遮挡了亮度。
2.       厨房根据燃气和下水口位置安排水池与灶具,把冰箱放在北墙,只需把厨房门改推拉门(貌似要上悬浮推拉,否则会被油烟腻死),由于房间较窄,请教万家灯火的一木缘,台面可以在宽窄之间变动。
3.       主卧的布置显得凌乱,但衣柜整体较大,可以放下我想要的1.8米床。
house-1.jpg
回复

使用道具 举报

25

主题

311

帖子

714

积分

高中毕业

积分
714

社区居民社区劳模

 楼主| 发表于 2013-11-9 14:23:37 | 显示全部楼层
方案二:
1.       减少小卧东西,增加客厅亮度;在客厅电视柜旁增加小书柜,但是孩子的衣柜没合适的地方放置。
2.       厨房拆墙,改全玻璃推拉门,从北侧推拉,冰箱放南墙,不足是冰箱与灶台间距离太小,进入时狭窄怎办?
3.       主卧被分成两个功能空间,学习、睡眠互不干扰(LG的主意,我觉得不错的),偶尔晚了也可以放个折叠小床,正对门的柜体做个整体的装饰,不足是衣柜长度缩水,恐不够用;床就只能放1.5米宽的了。如果门板宽度0.9米,我入口是不是要留出1.1米距离,那衣柜书柜只能1.8米了?
地方小,觉得很多东西不够用,希望版主和设计师给出出主意,减少遗憾。拜谢啊! house-2a.jpg house-2b.jpg
回复

使用道具 举报

25

主题

311

帖子

714

积分

高中毕业

积分
714

社区居民社区劳模

 楼主| 发表于 2013-11-9 14:25:34 | 显示全部楼层
方案二,主卧室,书桌与书柜间距很小,进入时不舒服,书桌太狭窄,看书时也不舒服,咋办?
回复

使用道具 举报

25

主题

311

帖子

714

积分

高中毕业

积分
714

社区居民社区劳模

 楼主| 发表于 2013-11-9 14:26:28 | 显示全部楼层
预览时很清楚的图片,怎么正式版面这么不清楚啊?
回复

使用道具 举报

25

主题

311

帖子

714

积分

高中毕业

积分
714

社区居民社区劳模

 楼主| 发表于 2013-11-12 21:22:33 | 显示全部楼层
请求版主给予指点,也欢迎其他有经验的朋友解说一二啊。
回复

使用道具 举报

1314

主题

1万

帖子

4万

积分

管理员

Rank: 9Rank: 9Rank: 9

积分
43987

社区居民社区劳模最爱沙发社区明星忠实会员

发表于 2013-11-13 00:07:53 | 显示全部楼层
我的评估是方案一更好。

1,小孩的东西都放在他自己的屋里更好,卧室应该更大些。

2,卫生间不做挡水,只要有比较大的坡度,应该没有问题。

3,灶具和冰箱,应该设计的远一些。

4,主卧衣柜在中间,太浪费空间,小房子,还是中间留出空档更舒服,利用率更高。
回复

使用道具 举报

25

主题

311

帖子

714

积分

高中毕业

积分
714

社区居民社区劳模

 楼主| 发表于 2013-11-13 08:49:37 | 显示全部楼层

回 6楼(老庄) 的帖子

老庄:我的评估是方案一更好。

1,小孩的东西都放在他自己的屋里更好,卧室应该更大些。

2,卫生间不做挡水,只要有比较大的坡度,应该没有问题。
....... (2013-11-13 00:07) 
谢谢老庄,这么晚还回复,论坛受关注程度太高,老庄的工作量太大,辛苦了!谁叫大家觉得网站值得信赖呢。
另外,厨房窗台下和主卧与阳台的短墙能打掉吗?特别是厨房,如果能打,阳台的空间就能纳入进来了,厨房可以增加使用面积。
回复

使用道具 举报

1314

主题

1万

帖子

4万

积分

管理员

Rank: 9Rank: 9Rank: 9

积分
43987

社区居民社区劳模最爱沙发社区明星忠实会员

发表于 2013-11-13 09:41:09 | 显示全部楼层

回 7楼(kitty) 的帖子

kitty:谢谢老庄,这么晚还回复,论坛受关注程度太高,老庄的工作量太大,辛苦了!谁叫大家觉得网站值得信赖呢。
另外,厨房窗台下和主卧与阳台的短墙能打掉吗?特别是厨房,如果能打,阳台的空间就能纳入进来了,厨房可以增加使用面积。 (2013-11-13 08:49) 
这个你自己不是已经说了吗,剪力墙不能打。

要打也打不动的。
回复

使用道具 举报

25

主题

311

帖子

714

积分

高中毕业

积分
714

社区居民社区劳模

 楼主| 发表于 2013-11-13 12:32:44 | 显示全部楼层
谢谢老庄这么快回复,潜水学习觉得还轻松点,突然要很快装修了心里觉得很紧张,看了大家都会有这样那样的问题,我也不知会遇到什么呢,还好,有咱们的论坛!我一定第一时间把问题发上来请教。

另外,还想请教:
1.如果装兰舍的新风系统,上次团购会厂家建议主机放厨房的负压系统,可是一个坛里的tz了解后说负压效果不好,最好是有进风和出风的,坛子里厂家有客服没?给点专业解说。
2.咱们团购的家具厂家能不能用实木(松木之类)做柜体,柜门配玻璃材质,我想这样环保性是不是好一点?
回复

使用道具 举报

您需要登录后才可以回帖 登录 | 立即注册

本版积分规则

装修百科|手机版|小黑屋|北京高老庄建筑装饰工程有限公司 ( 京ICP备19035109号 )

GMT+8, 2026-4-9 03:12 , Processed in 0.540218 second(s), 30 queries .

快速回复 返回顶部 返回列表