北京装修论坛 - 北京装修社区_高老庄工长装修

 找回密码
立即注册
热搜: 工长 设计 曝光
查看: 3447|回复: 12

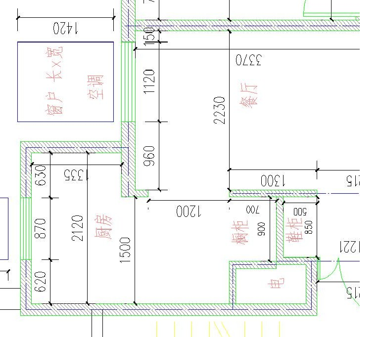
[装修讨论] 请问1.2米的厨房门怎么装好啊,两边承重墙不能动

[复制链接]

2

主题

14

帖子

91

积分

学前班

积分
91

社区居民

发表于 2013-11-18 12:14:50 | 显示全部楼层 |阅读模式

请大家出出主意,谢谢
回复

使用道具 举报

8

主题

1144

帖子

3364

积分

大专毕业

积分
3364

社区居民忠实会员

发表于 2013-11-18 12:58:31 | 显示全部楼层
有那种折叠的门哦,就是中间有个缝,可能密封性差一点吧。
回复

使用道具 举报

19

主题

192

帖子

438

积分

初中毕业

积分
438

社区居民

发表于 2013-11-18 13:10:54 | 显示全部楼层
做成铝镁合金或者木制的折叠门,不怎么占空间,效果也很好,价格也不贵
回复

使用道具 举报

2

主题

14

帖子

91

积分

学前班

积分
91

社区居民

 楼主| 发表于 2013-11-18 17:51:24 | 显示全部楼层
谢谢,有时间去考察一下,有什么推荐的品牌吗?另外折叠门是不是容易坏?
回复

使用道具 举报

12

主题

198

帖子

445

积分

初中毕业

积分
445

社区居民

发表于 2013-11-18 20:55:20 | 显示全部楼层
对开门喜欢么?铝镁合金或实木复合都能作
回复

使用道具 举报

2

主题

14

帖子

91

积分

学前班

积分
91

社区居民

 楼主| 发表于 2013-11-19 09:09:56 | 显示全部楼层
对开门两边开都碍事啊
回复

使用道具 举报

2

主题

14

帖子

91

积分

学前班

积分
91

社区居民

 楼主| 发表于 2013-11-19 09:22:31 | 显示全部楼层
最重要的,门不能碍事,不能挡道或妨碍拿取冰箱东西;
其次,容易开关;
最后,采光好,最好不要砌墙,能采用大面积玻璃材质更好

我知道符合以上要求的门可能不存在
但是请庄主和各位庄友们解惑,折叠门,子母门,推拉门,单开门,对开门哪种更合适呢
回复

使用道具 举报

19

主题

192

帖子

438

积分

初中毕业

积分
438

社区居民

发表于 2013-11-19 09:48:12 | 显示全部楼层
就镁铝合金或木质的折叠门最合适,推荐镁铝合金,有米可以做成断桥铝的,更有金属质感。

我家的情况跟你一样,咨询了很多做门的,也就折叠门合适。
回复

使用道具 举报

2

主题

14

帖子

91

积分

学前班

积分
91

社区居民

 楼主| 发表于 2013-11-19 10:06:37 | 显示全部楼层
谢谢,是做成四扇的那种吗?轨道是在上面还是上下都有的?请问哪一家做的?
回复

使用道具 举报

19

主题

192

帖子

438

积分

初中毕业

积分
438

社区居民

发表于 2013-11-19 11:03:53 | 显示全部楼层
1.2米的做三扇好像就够了,主要是看你想折叠后留多少空间;轨道你自己定,最好上下都有,那样结实。具体你咨询卖家吧。

我是找的建材城的门脸问的,没什么牌子,这东西红星美凯龙和小建材城我感觉都差不多,也许都是一家做的,价格却能差一倍,看好板材厚度,挑好样式就成了。不放心有米就去红星美凯龙或居然,想省钱就去建材城,做断桥铝找港典。。。。。。。
回复

使用道具 举报

您需要登录后才可以回帖 登录 | 立即注册

本版积分规则

装修百科|手机版|小黑屋|北京高老庄建筑装饰工程有限公司 ( 京ICP备19035109号 )

GMT+8, 2026-4-9 07:38 , Processed in 0.280866 second(s), 25 queries .

快速回复 返回顶部 返回列表