
|
|
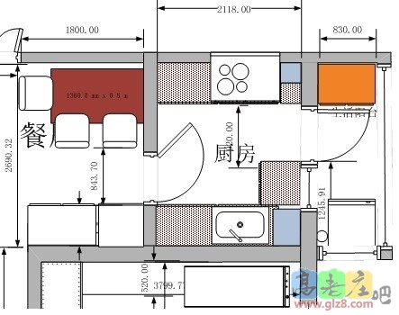
[装修讨论] 新房设计求指导 |
| ||
| ||
|
独立设计师
|
||
回 13楼(陆枫) 的帖子
| ||
回 12楼(yi花yi世界) 的帖子
| ||
| ||
| ||
|
独立设计师,打造属于您的个性家居
|
||
| ||
|
独立设计师,打造属于您的个性家居
|
||
回 19楼(陈鑫杰) 的帖子
| ||
装修百科|手机版|小黑屋|北京高老庄建筑装饰工程有限公司 ( 京ICP备19035109号 )
GMT+8, 2026-4-9 03:06 , Processed in 0.180079 second(s), 28 queries .