
|
13453| 54
|
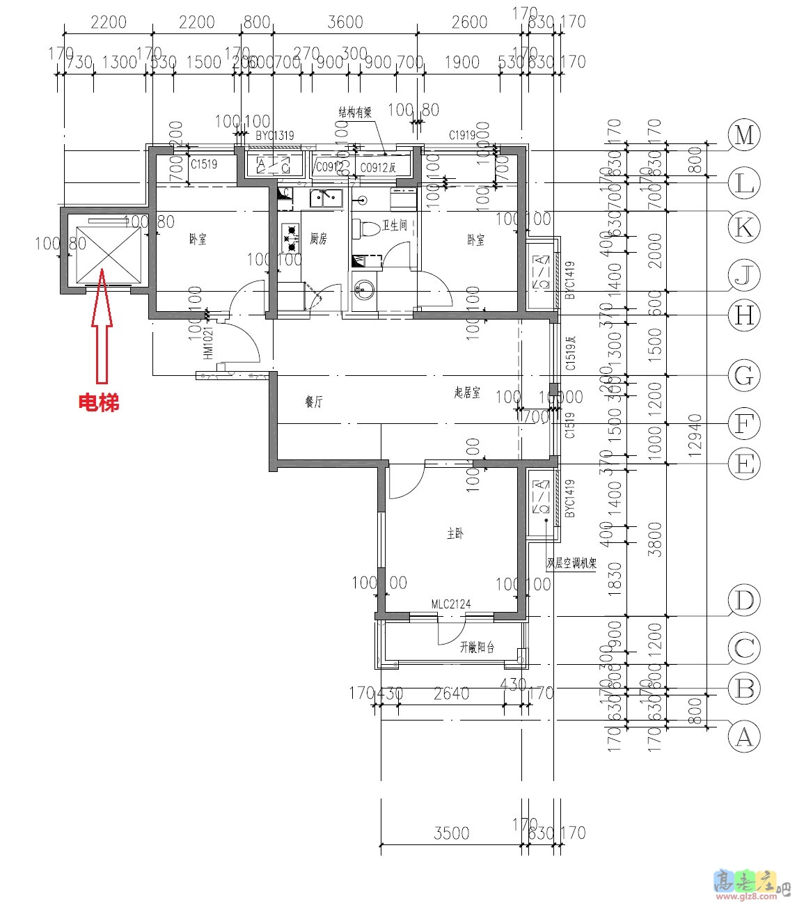
[装修讨论] 求设计意见 |
| ||
| ||
| ||
回 3楼(cc04061125) 的帖子
| ||
|
我是家装小白,但是我很勤奋
|
||
|
| |
|
我是家装小白,但是我很勤奋
|
|
| ||
|
独立设计师,打造属于您的个性家居
|
||
| ||
回 1楼(巨献) 的帖子
| ||
装修百科|手机版|小黑屋|北京高老庄建筑装饰工程有限公司 ( 京ICP备19035109号 )
GMT+8, 2026-4-9 00:28 , Processed in 0.149153 second(s), 30 queries .