
|
5242| 11
|
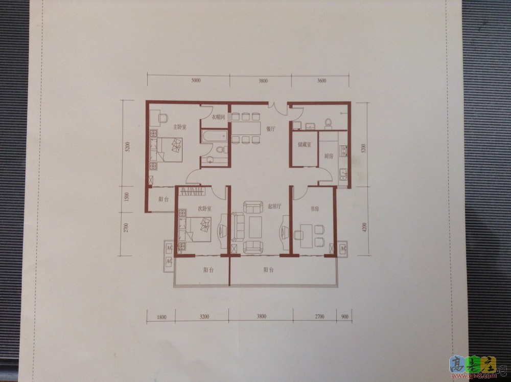
[装修讨论] 上户型图啦,请大家看看,给出出意见。 |
| ||
|
签名被屏蔽
|
||
回 2楼(燕少飞) 的帖子
| ||
| ||
|
独立设计师,打造属于您的个性家居
|
||
回 4楼(陈鑫杰) 的帖子
| ||
| ||
| ||
|
独立设计师
|
||
| ||
| ||
装修百科|手机版|小黑屋|北京高老庄建筑装饰工程有限公司 ( 京ICP备19035109号 )
GMT+8, 2026-4-9 01:46 , Processed in 0.218788 second(s), 29 queries .