北京装修论坛 - 北京装修社区_高老庄工长装修

 找回密码
立即注册
热搜: 工长 设计 曝光
楼主: jason

[装修讨论] 大家帮忙给设计一下

[复制链接]

0

主题

333

帖子

722

积分

设计师

积分
722

社区居民

QQ
发表于 2014-7-21 16:11:13 | 显示全部楼层

回 8楼(atmosphere528) 的帖子

atmosphere528:请问尙设计,怎么叫“是否可开门洞”? (2014-07-19 17:02) 
如果是承重墙,一般不敢轻拆开,手续麻烦且费用高昂。
独立设计师
回复

使用道具 举报

17

主题

237

帖子

552

积分

初中毕业

积分
552

社区居民

发表于 2014-7-23 11:22:12 | 显示全部楼层

回 10楼(陆枫) 的帖子

陆枫:如果是承重墙,一般不敢轻拆开,手续麻烦且费用高昂。 (2014-07-21 16:11)
谢谢陆设计,抱歉,提问时还把您姓氏打错了
元气
回复

使用道具 举报

1

主题

7

帖子

46

积分

学前班

积分
46

社区居民

 楼主| 发表于 2014-8-15 15:27:24 | 显示全部楼层
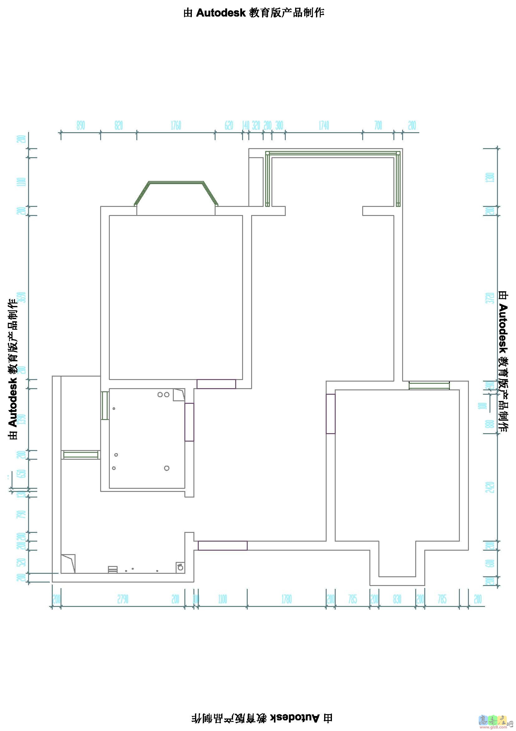
谢谢大家的关注和热心,我把测量图绘制出来了,大家可以参照尺寸给调整下,谢谢啦
回复

使用道具 举报

1

主题

7

帖子

46

积分

学前班

积分
46

社区居民

 楼主| 发表于 2014-8-15 15:45:41 | 显示全部楼层
测量图详细

测量图

测量图
回复

使用道具 举报

您需要登录后才可以回帖 登录 | 立即注册

本版积分规则

装修百科|手机版|小黑屋|北京高老庄建筑装饰工程有限公司 ( 京ICP备19035109号 )

GMT+8, 2026-4-2 12:42 , Processed in 0.630243 second(s), 26 queries .

快速回复 返回顶部 返回列表