北京装修论坛 - 北京装修社区_高老庄工长装修

 找回密码
立即注册
热搜: 工长 设计 曝光
查看: 13044|回复: 19

精彩装修图片《【家的味道】我的简美新家》

[复制链接]

440

主题

7778

帖子

1万

积分

硕士毕业

积分
17687

社区居民原创达人社区劳模最爱沙发

发表于 2012-4-8 13:50:58 | 显示全部楼层 |阅读模式
精彩装修图片转帖第243篇:《【家的味道】我的简美新家》
原日记来源:19楼
原作者:二千年之恋   

老庄推荐原因:楼主最满意的是红色与蓝灰色的墙面的搭配,还有大花的壁纸,拱形的哑口,两色的墙裙,实木家具。很有特点。

6_41_47c11382b98b6ee.jpg
回复

使用道具 举报

440

主题

7778

帖子

1万

积分

硕士毕业

积分
17687

社区居民原创达人社区劳模最爱沙发

 楼主| 发表于 2012-4-8 13:51:57 | 显示全部楼层
【房    型】:3房2厅2卫
【建筑面积】:130平米
【装修风格】:简美混搭
【设 计 师】:马工
【装饰公司】:游击队长黄**
【耗    时】:4个月
【硬装花费】:半包价6.5万
【主材和家具】:主材地砖和墙砖是杭陶(伊派)和(长谷)家具部分是HORBOR HOUSE 还有就是新时代家居的美坪米(这个可是大头哦)
灯具,洁具和五金件为网购,网购东西不错,关键是省钱才是王道。
   
     
   一年前今天偶然一次机会看到马工设计的和家园,我想设计师就是他了,经过了一年的设计,施工,搬家,终于让我们这个3口之家在年前搬进了新房子。大家都说有图有真相那么就直接上图吧
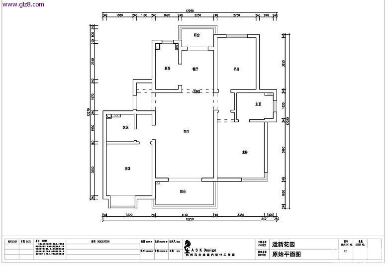
补上平面图供大家参考
1.平面设计除了书房的墙和卫生间的墙能动以外,其他墙都是混凝土墙了,而且根据我的要求一定要有储藏室。也只能尽力了。

middle_222355_daackumu_5e61fa02c119cb1f0b2d6e15a0ccdd86.jpg

middle_222357_daackumu_2469ff65231a93843b8caec050e84028.jpg
回复

使用道具 举报

440

主题

7778

帖子

1万

积分

硕士毕业

积分
17687

社区居民原创达人社区劳模最爱沙发

 楼主| 发表于 2012-4-8 14:41:59 | 显示全部楼层
玄关:最满意的就是那个红色与蓝灰色的墙面的搭配
middle_145313_daackumu_66cfe28a64b27cdcfc56a1a24eadf22c.jpg
回复

使用道具 举报

440

主题

7778

帖子

1万

积分

硕士毕业

积分
17687

社区居民原创达人社区劳模最爱沙发

 楼主| 发表于 2012-4-8 14:42:22 | 显示全部楼层
客厅:二个拱门一个通往玄关一个通往餐厅和厨房,中间就是储藏室了~
middle_145234_daackumu_1c99807e4eb932fd7d656c6c02ab4013.jpg
回复

使用道具 举报

440

主题

7778

帖子

1万

积分

硕士毕业

积分
17687

社区居民原创达人社区劳模最爱沙发

 楼主| 发表于 2012-4-8 14:44:00 | 显示全部楼层
客厅:马工一直建议不要做电视背景,我想想也对,整体协调了,有没有电视背景还真无所谓
middle_145217_daackumu_2d821dac95eb425f048bb0a7eae28a7e.jpg
回复

使用道具 举报

440

主题

7778

帖子

1万

积分

硕士毕业

积分
17687

社区居民原创达人社区劳模最爱沙发

 楼主| 发表于 2012-4-8 14:44:19 | 显示全部楼层
middle_145222_daackumu_0618a6b68bfc91806645e772d3c8f214.jpg
回复

使用道具 举报

440

主题

7778

帖子

1万

积分

硕士毕业

积分
17687

社区居民原创达人社区劳模最爱沙发

 楼主| 发表于 2012-4-8 16:35:39 | 显示全部楼层
middle_145225_daackumu_f396238753a469280a717412bc15f821.jpg
回复

使用道具 举报

440

主题

7778

帖子

1万

积分

硕士毕业

积分
17687

社区居民原创达人社区劳模最爱沙发

 楼主| 发表于 2012-4-8 16:36:04 | 显示全部楼层
儿卧:我们的家儿卧是整个设计最有特点的。
middle_145308_daackumu_baca9608609372af905d648235d05886.jpg
回复

使用道具 举报

440

主题

7778

帖子

1万

积分

硕士毕业

积分
17687

社区居民原创达人社区劳模最爱沙发

 楼主| 发表于 2012-4-8 16:47:29 | 显示全部楼层
middle_145304_daackumu_35c5337930ebffc44d48f32cb368f80c.jpg
回复

使用道具 举报

440

主题

7778

帖子

1万

积分

硕士毕业

积分
17687

社区居民原创达人社区劳模最爱沙发

 楼主| 发表于 2012-4-8 16:47:46 | 显示全部楼层
middle_145251_daackumu_a5d20489769c9ac61e411ce6893181aa.jpg
回复

使用道具 举报

您需要登录后才可以回帖 登录 | 立即注册

本版积分规则

装修百科|手机版|小黑屋|北京高老庄建筑装饰工程有限公司 ( 京ICP备19035109号 )

GMT+8, 2026-3-31 10:28 , Processed in 0.947088 second(s), 38 queries .

快速回复 返回顶部 返回列表