北京装修论坛 - 北京装修社区_高老庄工长装修

 找回密码
立即注册
热搜: 工长 设计 曝光
查看: 3467|回复: 0

设计方案,求老庄及各位亲指点迷津

[复制链接]

1

主题

1

帖子

14

积分

学前班

积分
14

社区居民

发表于 2014-3-5 09:23:27 | 显示全部楼层 |阅读模式

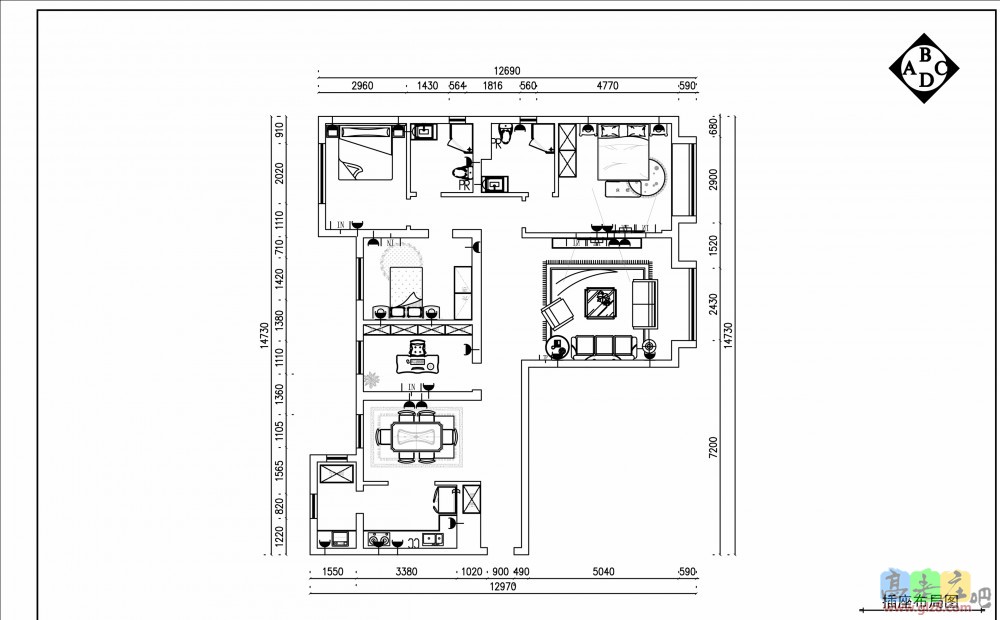
家具及插座布局

家具及插座布局

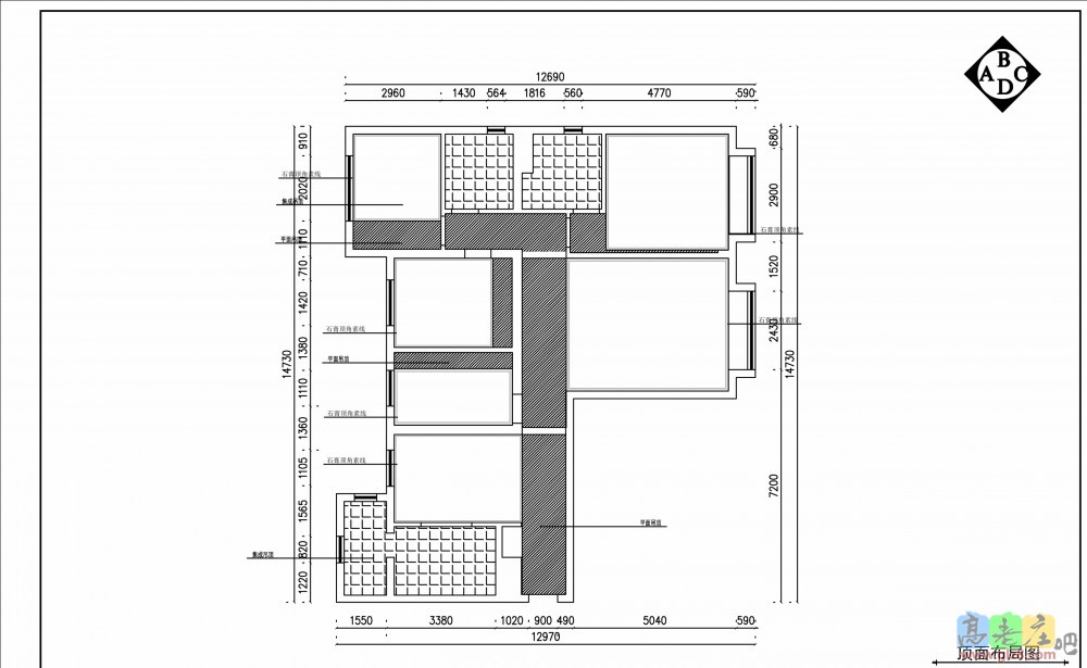
吊顶布局

吊顶布局

灯具及开关布局

灯具及开关布局



    新房准备装修,请了一位设计师,对其提出八字方针“必要、合理、周全、节约”,设计师反馈了初步设计方案,无奈本人才疏学浅、经验欠缺,故求老庄及各位亲指点迷津。
发现的几点问题:
1、客厅沙发与电视位置互换是否更好一些。(感觉换位后客人起身出门会更方便)
2、由于家中卧室面积较小,不知道哪个次卧作为儿童房更好一点(准备给孩子房间配置衣柜、床、书桌),更能满足儿童房家具的摆放。
3、家中将装中央空调,餐厅、客厅、书房、三个卧室各一个室内机,这要的吊顶位置是不是还算合理。
4、插座感觉好像少了点,是不是就够用了。
5、厨房炉灶的位置感觉有点怪,按照尺寸是不是无法设计成“切洗炒盛”的一条龙布局。
6、如果两个卫生间共用一个80L的电热水器能满足一家三代5口人的洗浴需要吗。7、射灯控制设计行吗。
回复

使用道具 举报

您需要登录后才可以回帖 登录 | 立即注册

本版积分规则

装修百科|手机版|小黑屋|北京高老庄建筑装饰工程有限公司 ( 京ICP备19035109号 )

GMT+8, 2026-4-8 03:06 , Processed in 0.298004 second(s), 29 queries .

快速回复 返回顶部 返回列表