北京装修论坛 - 北京装修社区_高老庄工长装修

 找回密码
立即注册
热搜: 工长 设计 曝光
楼主: 七仙女

精彩装修日记《##那段无比坚强无比彪悍有你们陪伴的日子##》

[复制链接]

23

主题

5116

帖子

1万

积分

硕士毕业

积分
10491

社区居民

 楼主| 发表于 2011-12-31 16:47:04 | 显示全部楼层
水电改造验收标准

一、电工施工规范及验收标准
1、电工在施工前应熟悉电路施工图纸或业主的要求,确保所有电器、开关、电话、电视、网络插座位置。
2、开关、暗盒定位按工程要求必须对称、纵横一致。
3、购买所有电线、电话线、电视线、网络线必须达到国家检测标准,杜绝产品不合格现象。
4、电路开槽布管、穿线、检查并测试。电线接头牢固无松动,用双层绝缘胶布緾紧,并在接头处留有检修口。
5、检查所有灯具开关是否灵活,插座面板有无松动,杜绝导电、漏电发生。
6、每组电路回路清楚可靠,符合用电要求,火线、零线、电线要分色或有明显标记。
7、请业主验收无问题签字后用水泥砂浆把所有线槽、暗盒封闭好,以确保瓦工正常施工。
二、水路施工规范及验收标准
1、确定所有洁具的冷热水位置,冷热水的出水口弯头距离纵横必须在一个水平线上,出水口弯头间距不得小于14.5厘米,以便于三角阀及水龙头的安装。
2、购买铝塑管或PP-R管及配件必须达到国家检测标准,杜绝劣质管件进入施工现场,避免隐患。
3、水路开槽布管及配件,接头必须牢固,做闭水试验,检查是是否有渗水现象,如有问题须立即解决。再做二次检测。
4、无问题请业主签字验收,用水泥砂浆封好所有水管,现场垃圾清理干净交付下个班组。
回复

使用道具 举报

23

主题

5116

帖子

1万

积分

硕士毕业

积分
10491

社区居民

 楼主| 发表于 2011-12-31 16:47:10 | 显示全部楼层
水电工程验收标准是什么?有没有简单易行的方法检验质量?


答案:  1、开槽
  打眼时不要把原电线管路或水暖管路破坏。电气管路敷设时要穿线管,不要把电线直接埋到地面或墙里,这样不仅不安全,并且一旦损坏就不能维修。水暖管道在敷好后一定要进行打压试验,合格后再做下一道工序,防止管道漏水造成损坏。
  2、厨房和卫生间等需要做防水的部位,做完防水后一定要做闭水试验,合格后再贴转。
  3、电线接头一定要涮锡,厨房和卫生间的接头建议要做防水处理,接头可以用高压自粘带和黑胶布进行包扎。
  4、重量超过3公斤的灯具,一定要固定在螺栓或预埋吊勾上,禁止使用木楔固定;安装高度小于2.4米的灯具金属外壳必须做保护接地,卫生间一定要选用防水插座。
  水电施工主要注意四个方面。
  1、设计要合理。水电路的走向要合理,安全、实用,有保护措施。
  2、材料要合格。水电材料要是正规品牌产品。
  3、施工要规范。所有电线必须穿管,接头处要用弯头,地线要按规定处理。
  4、验收要严谨。各水电施工工艺要到位,符合施工规范。
  电路施工一定要规范,例如直径16mm的线管最多穿3根线;强弱电线要距离50cm以上,避免信号干扰;暗装的线管要固定牢固,否则墙面易开裂。
  水电验收检查要细致
  水电工程的验收检查主要有施工过程中检查和交工检查。
  施工过程中检查。对于那些如果施工不合格,将会对整个过程产生严重影响的工序,做完后一定要进行检查。如厨房和卫生间的防水、地面暗埋的水电管路,若地砖施工完毕后发现防水不合格、电线管路不通、水暖管道不通或漏水,那只能重新返工。
  交工检查主要有6项内容。
  1、电线导管要畅通,用手来回抽导管内导线,应能抽动,以便以后能更换损坏的电线。
  2、用电笔或插座检测器检查插座线序,必须是左零右火上地线。
  3、用电笔检查开关线序,开关必须控制火线。
  4、检查漏电保护器的试验按钮或用插座检测器检查漏电保护器,动作要灵活。
  5、用绝缘电阻表检测各回路绝缘电阻值不小于0.5M欧姆。
  6、打开总阀门,手摸给排水管道接头处要严密、不漏水,排水要畅通。
  验收检查合格后要注意保存好水电路施工图纸,并且要求图纸与实际要相互一致,因为图纸是将来进行维修的依据,但是现在绝大多数业主都忽略这一点。
回复

使用道具 举报

23

主题

5116

帖子

1万

积分

硕士毕业

积分
10491

社区居民

 楼主| 发表于 2011-12-31 16:47:25 | 显示全部楼层
三、系统水压试验要求
1)试压前应关闭水表后闸阀,避免打压时损伤水表。
2)将试压管道末端封堵缓慢注水,同时将管道内气体排出。充满水后进行密封检查。
3)加压宜采用手动泵或电动泵缓慢升压,升压时间不得小于10分钟。
4)升至规定试验压力(一般水路8个压)后,停止加压,观察接头部位是否有渗水现象。
5)稳压后,半小时内的压力降不超过0.05MPa为合格。
6)试压结束,必须做好原始记录,并签字确认
7)水路改造施工后,要出具水路改造施工走向图。
回复

使用道具 举报

23

主题

5116

帖子

1万

积分

硕士毕业

积分
10491

社区居民

 楼主| 发表于 2011-12-31 16:47:44 | 显示全部楼层
嘿嘿,表pf,互相学习

走神儿想想今晚及明后天要做的事情

今晚
核对老郭买来的辅料,是否已符合标准
核对更改的水管及一固德、横槽墙面处理情况
验收今日做作工作

明日上午
9点  水电验收
门的厂家送样、考察,取决

下午
瓷砖补货  补砖的时候有时间的话,去考察一下umbanana推荐的那家门的店  与郭师傅推荐的比较
根据厨房贴砖情况确定是否约定橱柜设计师二次测量

查看了一下流程,下一步木工要进场了。估计下周就该砸墙、做拱形垭口了
具体安排了一下差不多了,希望周日能有时间好好休息一下,跟朋友聚聚……
回复

使用道具 举报

23

主题

5116

帖子

1万

积分

硕士毕业

积分
10491

社区居民

 楼主| 发表于 2011-12-31 16:48:10 | 显示全部楼层
noair143


水水,打压的时候不要光打冷水管,如果改了中水还有中水管,如果有热水还有热水管





恩,我就改了两处
暖气管和中水管

暖气管子也是一样的打压是吧?
回复

使用道具 举报

23

主题

5116

帖子

1万

积分

硕士毕业

积分
10491

社区居民

 楼主| 发表于 2011-12-31 16:48:34 | 显示全部楼层
noair143


我们家是自采暖,暖气用的锅炉本身的压力打的,用了2个压
好像别家有用打压机打的,打了8个,我不知道他们怎么弄的
而且我们kfs给的暖气不好,我给换成别的牌子的了,他们在刷完漆以后来装的,是那个时候打的压
幸好你家改的少,看你那些槽,真是胆颤心惊的
我家水改了80米,电115米,哭死了,花了无数米米



我爱毛豆豆

115米!
MM你家多大面积都做了些什么啊
这么多啊??
我以为一家也就十几米的走电呢




noair143


我家130
我感觉没改啥啊,就改了这么多,好几个屋都想弄双控都没弄,觉得心痛,
主要是每个房间都铺了网线,加了些插座啥的
厨房改的多些,加了客厅和主卧双控
把锅炉热水引到了卫生间,然后再加挂了电热水器,两套供水设备
也没有绕线,每走一根线我都仔细把关的
但后来一量就这么多
唉。。。。


你家那样歪歪扭扭的,水电图一定要拍照片,用DV拍,留底,不然后期打钉子真是害怕




楼主:

哦~~知道了!!我让他们明天验收的时候必须给我图,不给我图就不准干接下来的
我去都录下来!!

实在不行,把尺寸自己都记下来
回复

使用道具 举报

23

主题

5116

帖子

1万

积分

硕士毕业

积分
10491

社区居民

 楼主| 发表于 2011-12-31 16:48:39 | 显示全部楼层

乌央乌央


亲啦,你真是干劲十足.....................

装修过程中别老绷着跟弦哦,一定要学会放松放松,因为装修是个持久战呢。刚开始,大家都会抓狂的,不管是不是省心的装修队。但是只要出来成果了,你会发现非常非常有成就感,自个美得不行,过程中的痛苦通通会烟消云散。

坚持就是胜利!!!加油加油,和装修队斗争到底。如果实在不行,趁着还刚开始,也可以赶紧换掉
回复

使用道具 举报

23

主题

5116

帖子

1万

积分

硕士毕业

积分
10491

社区居民

 楼主| 发表于 2011-12-31 16:50:45 | 显示全部楼层
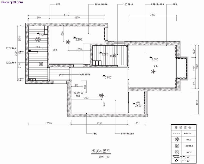
灯光图出来了

1.我不会在餐厅上面放3个大傻灯的,所以我晚上会再想想,现在一点儿想法都没有,大家有什么好的建议吗?两个小壁灯?我这放不放餐桌还没想好,关键是地方小,可能就放个小边桌~~
2.家里的天花板,有必要刷成浅浅黄色的顶面吗?大白?还是乳白?还是浅浅浅浅的黄色?

我家客厅肯定就是那种所谓的淡奶酪色了……


10092721.jpg
回复

使用道具 举报

23

主题

5116

帖子

1万

积分

硕士毕业

积分
10491

社区居民

 楼主| 发表于 2011-12-31 16:50:59 | 显示全部楼层
noair143


顶面还是刷白吧
回复

使用道具 举报

23

主题

5116

帖子

1万

积分

硕士毕业

积分
10491

社区居民

 楼主| 发表于 2011-12-31 16:51:03 | 显示全部楼层
我的观念里,好像墙顶就是白的~~~那啥,设计师的这个不管了
回复

使用道具 举报

您需要登录后才可以回帖 登录 | 立即注册

本版积分规则

装修百科|手机版|小黑屋|北京高老庄建筑装饰工程有限公司 ( 京ICP备19035109号 )

GMT+8, 2026-4-4 06:40 , Processed in 0.148076 second(s), 26 queries .

快速回复 返回顶部 返回列表