北京装修论坛 - 北京装修社区_高老庄工长装修

 找回密码
立即注册
热搜: 工长 设计 曝光
楼主: 七仙女

精彩装修日记《##那段无比坚强无比彪悍有你们陪伴的日子##》

[复制链接]

23

主题

5116

帖子

1万

积分

硕士毕业

积分
10491

社区居民

 楼主| 发表于 2011-12-31 17:32:14 | 显示全部楼层
乌央乌央

亲啦,你家厨房的砖和园骨碌家的很像啊,MS一个牌子。贴出来效果真好
回复

使用道具 举报

23

主题

5116

帖子

1万

积分

硕士毕业

积分
10491

社区居民

 楼主| 发表于 2011-12-31 17:32:37 | 显示全部楼层
joynan

表妹,你家的厨房砖可真美观
十一我没去定砖,真是悔恨啊!!!

骨碌.圆家的墙砖可是一百多一平的。水表妹该偷着乐了
回复

使用道具 举报

23

主题

5116

帖子

1万

积分

硕士毕业

积分
10491

社区居民

 楼主| 发表于 2011-12-31 17:32:49 | 显示全部楼层
sx_yunma

神速阿神速
回复

使用道具 举报

23

主题

5116

帖子

1万

积分

硕士毕业

积分
10491

社区居民

 楼主| 发表于 2011-12-31 17:33:01 | 显示全部楼层
小熊爱大熊33

水水,战友啊,我也在采购部干过,2年多,我们一起负责采购吧,哈哈
回复

使用道具 举报

23

主题

5116

帖子

1万

积分

硕士毕业

积分
10491

社区居民

 楼主| 发表于 2011-12-31 17:33:15 | 显示全部楼层
muse_zhang

加油,真是个能干的MM
回复

使用道具 举报

23

主题

5116

帖子

1万

积分

硕士毕业

积分
10491

社区居民

 楼主| 发表于 2011-12-31 17:33:20 | 显示全部楼层
谢谢跳姐,谢谢乌央,谢谢姜二表姐,谢谢湘湘爸,谢谢熊熊,谢谢姆斯张,哈哈~~


新的问题出现了,而且,我可能半下午要逃班直接杀过去了~
我怕那些师傅们干活干得太快了,直接都给我把墙立上了,我就没法改了

刚才我仔细研究了一下圆骨碌的厨房,但是怎么看都看不出来里面的砖墙和外面的粉刷墙是怎么衔接的
设计师给我设计的是,两个拱门全部都包全包的门套
现在我的想法是:两个门全部不用门套,卫生间的门参考圆骨碌的,只是在中间加一点门套,然后做对开百页门,过门石我觉得土,我也准备抄鹅卵石了[圆骨碌,嘿嘿,你说的天下文章一大抄,你也有被抄的时候哦]

之所以不用门套的原因:
1.做两个门套又是一笔钱
2.抛开钱的问题,本来我的客厅门就已经很多了,现在不做门套,弱化了一下这个地方门的概念,仅是一个垭口。
3.我的墙是黄的,踢脚是跟地面砖颜色一样的石头的,如果做一个白色的门套,挺突兀的


现在我的问题是:
1.砖墙和粉刷墙如何衔接?
2.百页门怎么固定在墙上?我看不懂圆骨碌家怎么弄得,就是那么半截的小木条粘在墙上的?


嘿嘿,仙女们,大侠们,我需要你们的帮助和认同阿
如果同意的话,帮我出出主意
如果认为我的想法不好的,也赶紧拍转啊
我家工人干活快,如果方案确定了,我今天下午就得跟他们说了!
回复

使用道具 举报

23

主题

5116

帖子

1万

积分

硕士毕业

积分
10491

社区居民

 楼主| 发表于 2011-12-31 17:33:37 | 显示全部楼层
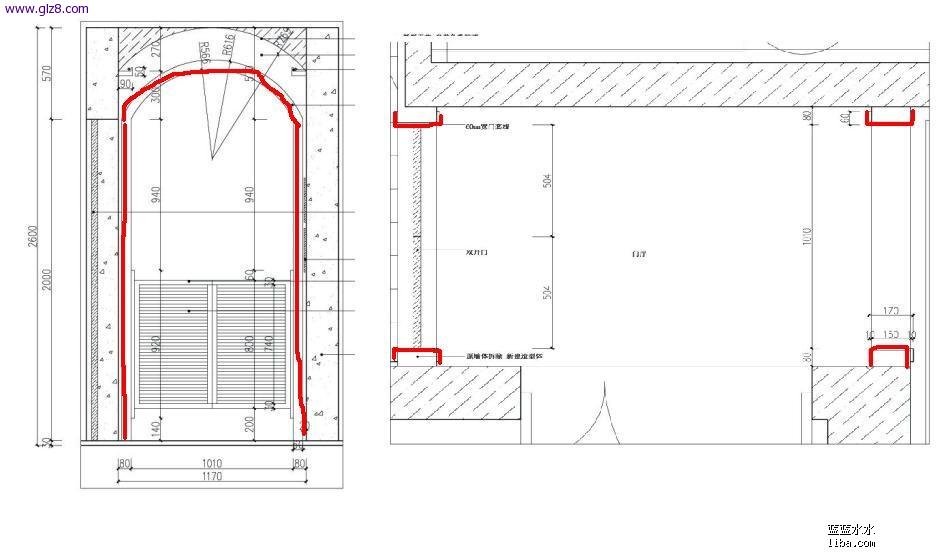
上个设计师的设计稿
图上我用红线标的地方就是门套
就是这两个地方都用门套

旁边还有个7公分左右的墙垛

如果实行我的方案的话,这个墙垛是不是需要拆了?

大家快给我意见哇~~叩谢啦

10169900.jpg
回复

使用道具 举报

23

主题

5116

帖子

1万

积分

硕士毕业

积分
10491

社区居民

 楼主| 发表于 2011-12-31 17:34:02 | 显示全部楼层
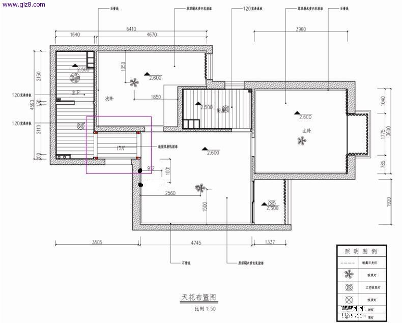
就是我用框框出来,然后点红点的地方~~~

10169956.jpg
回复

使用道具 举报

23

主题

5116

帖子

1万

积分

硕士毕业

积分
10491

社区居民

 楼主| 发表于 2011-12-31 17:34:16 | 显示全部楼层
跳跃思维


粘肯定不行,
可以用螺丝涨钉啥的,
你不用想工艺问题,
施工队貌似可以解决工艺问题吧。
回复

使用道具 举报

23

主题

5116

帖子

1万

积分

硕士毕业

积分
10491

社区居民

 楼主| 发表于 2011-12-31 17:34:21 | 显示全部楼层
我半下午准备逃班了~~
公司今天下午大部队出去拓展,我强烈要求值班了
我看能走得话,赶过去看看

具体的,可以问一下师傅们的意见,毕竟他们干得多
回复

使用道具 举报

您需要登录后才可以回帖 登录 | 立即注册

本版积分规则

装修百科|手机版|小黑屋|北京高老庄建筑装饰工程有限公司 ( 京ICP备19035109号 )

GMT+8, 2026-4-4 02:53 , Processed in 0.174481 second(s), 27 queries .

快速回复 返回顶部 返回列表