北京装修论坛 - 北京装修社区_高老庄工长装修

 找回密码
立即注册
热搜: 工长 设计 曝光
楼主: 七仙女

精彩装修日记《##那段无比坚强无比彪悍有你们陪伴的日子##》

[复制链接]

23

主题

5116

帖子

1万

积分

硕士毕业

积分
10491

社区居民

 楼主| 发表于 2011-12-31 13:25:13 | 显示全部楼层
冰蓝香草

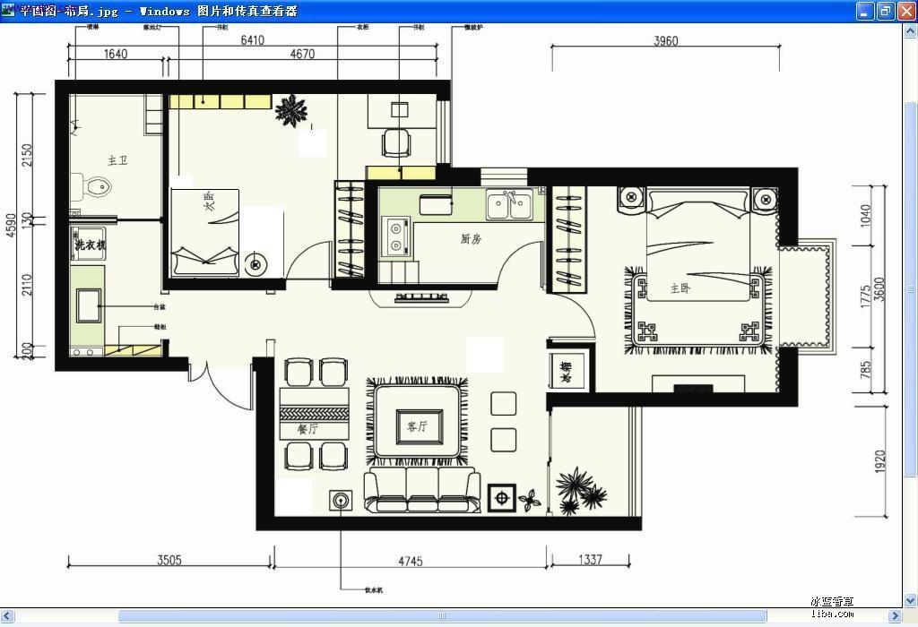
卧室门南边的墙角有点浪费,水水打算放点什么呢?冰箱的位置貌似拿东西不太方便
如果把卧室门南移一些,衣柜作宽一些
或者卧室门南边敲进去一块形成一个凹槽放冰箱,冰箱的位置放个这个(这个主意好像有点馊..)

9860430.jpg
回复

使用道具 举报

23

主题

5116

帖子

1万

积分

硕士毕业

积分
10491

社区居民

 楼主| 发表于 2011-12-31 13:25:50 | 显示全部楼层
亲爱的,我发现很多想法都是华而不实的~
落在实地,发现很多原来美丽的或者是虚幻的想法都是那么的不切实际……
这么说好像会打击倒一大片,呵呵

那个小墙边,最好什么都不放,其实客厅已经满当当的了
平面图看起来都是带有一定的欺骗性
那里如果按照开发商的想法,是预留装空调的,但是我想挪到整个客厅的右下角,不知道是否会更合理,但是走的空调管子就会在外面非常非常的恶心了
这是一个很实际的问题

我的冰箱别的地方都放不下了
其实我的冰箱里面最多的不是需要去做熟的食物,跟豆豆一样~我基本上是到冰箱里面翻酸奶、水果和龟苓膏的,这三样东西基本上就是我赖以生存的了
顶多还有点儿速冻食品,或者丢锅里一煮就行了的,放沙发旁边对我来说更方便

墙角放着个小柜子我也想过,但是……我没有地方放它了
习惯的东西永远那么多,家里永远少一块地方放他们
这就是装修中遗憾的一部分吧
回复

使用道具 举报

23

主题

5116

帖子

1万

积分

硕士毕业

积分
10491

社区居民

 楼主| 发表于 2011-12-31 13:26:19 | 显示全部楼层
冰蓝香草

冰箱是经常开启的东西,那个墙角地形太险峻了,怕是难免左磕右碰的  

这样虽然要改动墙体,但利用了门后闲置的位置,也好拿东西了

9862520.jpg
回复

使用道具 举报

23

主题

5116

帖子

1万

积分

硕士毕业

积分
10491

社区居民

 楼主| 发表于 2011-12-31 13:26:34 | 显示全部楼层
bananabanana


水水。。。。。。。。。。你这个设计师画的图。。。。。。。。。
很负责的说,比例严重不对。。。。。。。。
冰箱实在是太难放了,香草的方案是个办法,可是冰箱上面的空间怎么处理呢?

另外,次卧书桌的摆放,香草说得很对,我们也打算放到南边的墙上,让光线从左手照过来。。。。。那个。。。。就咱们那个次卧窗户,别想有南边的光线过来。。。。全被主卧和厨房挡住了。。。
回复

使用道具 举报

23

主题

5116

帖子

1万

积分

硕士毕业

积分
10491

社区居民

 楼主| 发表于 2011-12-31 13:26:39 | 显示全部楼层
如果忽略次卧的床呢?那个是我抠下来转了一下的
明天上他改好的
我现在上火的是,他不去实地看,光这么纸上谈兵有什么用啊

冰蓝的方案太诡异了……
原本方正的卧室弄了一个这个龛~不太好吧
嘿嘿


那个书桌……唉~愁啊
跟设计师商量商量
回复

使用道具 举报

23

主题

5116

帖子

1万

积分

硕士毕业

积分
10491

社区居民

 楼主| 发表于 2011-12-31 13:27:55 | 显示全部楼层
小黄熊

这种小喷头不知行不行?摩恩的,淘宝上才卖28



笨鱼笨

美女啊。。这个花洒。。。好好探讨一下呢,我在****上买了两个(败家啊,干吗不买一个啊!!!)
可是现在安装有问题,单连混水。。。。。不值当的。。。不连混水。。。。就只有凉水。。。
咋办咋办咋办呢????
你打算怎么装啊?




楼主:


又是一个打击……
我还没想好怎么办呢~
实在不行我只能早上冲凉了……

我是属于那种早上不把头发弄湿了重新整理
就觉得没法出门的那种……

咋办咋办咋办呢????

我觉得我装修完了以后,会变得强悍无比……




笨鱼笨


呵呵。。。买那种龙头和花洒一体的吧。。。那个小花洒,我也是装修开始才明白,装上,技术问题还有待解决。。
回复

使用道具 举报

23

主题

5116

帖子

1万

积分

硕士毕业

积分
10491

社区居民

 楼主| 发表于 2011-12-31 13:28:38 | 显示全部楼层
楼主:

如果忽略次卧的床呢?那个是我抠下来转了一下的
明天上他改好的
我现在上火的是,他不去实地看,光这么纸上谈兵有什么用啊

冰蓝的方案太诡异了……
原本方正的卧室弄了一个这个龛~不太好吧
嘿嘿


那个书桌……唉~愁啊
跟设计师商量商量




冰蓝香草

上海有好几家冰箱是这么放的,还满实用的
可以模仿云的设计,冰箱上面作成储物格

9865393.jpg
回复

使用道具 举报

23

主题

5116

帖子

1万

积分

硕士毕业

积分
10491

社区居民

 楼主| 发表于 2011-12-31 13:28:59 | 显示全部楼层
冰蓝香草

外面还可以加个村一点的帘子~挡住这个不够田园的“白色家电”

9865443.jpg
回复

使用道具 举报

23

主题

5116

帖子

1万

积分

硕士毕业

积分
10491

社区居民

 楼主| 发表于 2011-12-31 13:29:45 | 显示全部楼层
楼主:

又是一个打击……
我还没想好怎么办呢~
实在不行我只能早上冲凉了……

我是属于那种早上不把头发弄湿了重新整理
就觉得没法出门的那种……

咋办咋办咋办呢????




冰蓝香草

小喷壶..  
在屈臣氏买个小喷壶装上依云的水水,每天早晨喷一喷,也可以喷脸脸补湿  
回复

使用道具 举报

23

主题

5116

帖子

1万

积分

硕士毕业

积分
10491

社区居民

 楼主| 发表于 2011-12-31 13:29:53 | 显示全部楼层
楼主:

现在的想法……
小花洒我不弄了!!哼哼~~弄个玩意儿的费这老大劲儿
我弄个混水龙头干嘛使的~~!!

刚才洗澡的时候一琢磨
下面弄个盆儿直接洗头发,不是很好的吗~
汗死了

这问题不考虑了~!浪费脑细胞
就让我回归原始吧……我不折腾了……
哈哈哈哈哈哈哈哈




笨鱼笨

干吗不弄了啊。。。。我还期盼有个人能跟我一起攻克难关呢。。。。。。。。小花洒。。
回复

使用道具 举报

您需要登录后才可以回帖 登录 | 立即注册

本版积分规则

装修百科|手机版|小黑屋|北京高老庄建筑装饰工程有限公司 ( 京ICP备19035109号 )

GMT+8, 2026-4-3 23:01 , Processed in 0.150974 second(s), 29 queries .

快速回复 返回顶部 返回列表