北京装修论坛 - 北京装修社区_高老庄工长装修

 找回密码
立即注册
热搜: 工长 设计 曝光
楼主: 七仙女

精彩装修日记《##那段无比坚强无比彪悍有你们陪伴的日子##》

[复制链接]

23

主题

5116

帖子

1万

积分

硕士毕业

积分
10491

社区居民

 楼主| 发表于 2011-12-31 15:57:51 | 显示全部楼层
tianyy1


1.我的砖的铺装面积:卫生间墙地、客厅、阳台、厨房墙地  工期需要这么久吗?

贴砖的工期取决于两个因素,一个是面积,另一个就是有多少瓦工贴。如果你家面积不大,工期设得长,可能是因为人手不够。

2.家里的电线是否可以都用一个颜色的?工长说用一个颜色的省,他说一买就是一卷,100米,我家用就够了,头用胶布标注上。朋友说不行,线可以零买,都用一个颜色不保险。我该怎么弄?

绝对不可以只用同一个颜色。因为这次用贴标签,或许火线,地线,零线能装对,但以后你如果要换个插座或是灯什么的时候,就会晕了。

3.对于这种施工,有哪些辅料是需要我严格把关的?哪些可以放心让他们去买?
所有的铺料要定品牌,最好要求去超市购买,验收时要求出具小票。
关键的材料是一些涉及使用安全与环保的材料,如水管,电管,各种管件,电线,板材,各类胶。这些东西很容易有假货。

4.我需要关键盯施工中的哪几个点?

首先是验货,规定了材料,验货很重要。材料不好,做出来的东西不可能好。
再次,就是每道工序完成后,按验收标准验收,比如说,水电改造完成后,不验收实量,就不能封起来。水路必须按规定标准打压验收。验收标准在事先列明。
有先后的事情,不能一件没做完就做下一件。比如说,地砖勾缝必须是在吊顶完成之后的。


先写这些吧。



南海十三少

传说中的大楼就是这样起来的
回复

使用道具 举报

23

主题

5116

帖子

1万

积分

硕士毕业

积分
10491

社区居民

 楼主| 发表于 2011-12-31 15:58:06 | 显示全部楼层
muse_zhang


看你的进度表真是羡慕啊!
我们家装了两个多月了,怎么还遥遥无期阿!
小砖就更别提了!一共贴了一个半月!
回复

使用道具 举报

23

主题

5116

帖子

1万

积分

硕士毕业

积分
10491

社区居民

 楼主| 发表于 2011-12-31 15:58:12 | 显示全部楼层
仙女依依,我简直太崇拜你啦~~
施工队是叔叔的工装队伍,极有可能在一些地方不是那么规范
所以,我能做的只能是尽可能的控制了~~

太感谢依依姐姐啦!!
回复

使用道具 举报

23

主题

5116

帖子

1万

积分

硕士毕业

积分
10491

社区居民

 楼主| 发表于 2011-12-31 15:58:17 | 显示全部楼层
另,今天晚上没有去工地
快下班的时候电话郭师傅,答曰在北边儿呢
钥匙明天帮我配
晚上下班的时候我跟他在新房那边汇合
同时明天白天我去买电、晚上物业买水,把周三送砖[没意外的话]的余款留给他
不知道今天到底有没有砸墙……
汗~~我愣是忍住了没有问

再说再说吧,也不差这一天两天的啦~~
我正在收拾心情准备好良好的心态,迎接这暴风雨的到来啦~~恩恩!!
回复

使用道具 举报

23

主题

5116

帖子

1万

积分

硕士毕业

积分
10491

社区居民

 楼主| 发表于 2011-12-31 15:58:29 | 显示全部楼层
乌央乌央


依依太专业,比较而言我做得太粗糙,好在我们家装修队用的料经过我最后核查都还不错,除了现场管理什么做得很不规范外。其余都还能容忍。
回复

使用道具 举报

23

主题

5116

帖子

1万

积分

硕士毕业

积分
10491

社区居民

 楼主| 发表于 2011-12-31 15:58:45 | 显示全部楼层
流水账  兼  备忘

10月9日 星期二  工程进度表上开工的第二天

上午接到郭师傅的电话,告知今日设备和工人已进场
要求:催办玄关拱门的尺寸设计图,暖气尽快送货
核实:今日下班后在来广营碰头,他给我配好的钥匙、我将砖的余款留给他
已完成:电卡已预存600度电,去除原表中的50度,尚有550度
        刘工的玄关设计图已拿到,晚上交给郭师傅审核

需要做:
1.将水卡、电卡托给郭师傅,明天记得带上水电小门的钥匙,现有的水、电维持一天没有问题
2.砖尾款交给郭师傅,告知验货时确认踢脚是否已送到,若未送到需扣押货款。
3.要求百安居送货或者自提  暖气
4.复印砖的订单,为郭师傅验货做准备。周三晚上亲临工地再次验货。

与郭师傅保持良好的沟通,保证有问题及时了解及时解决。


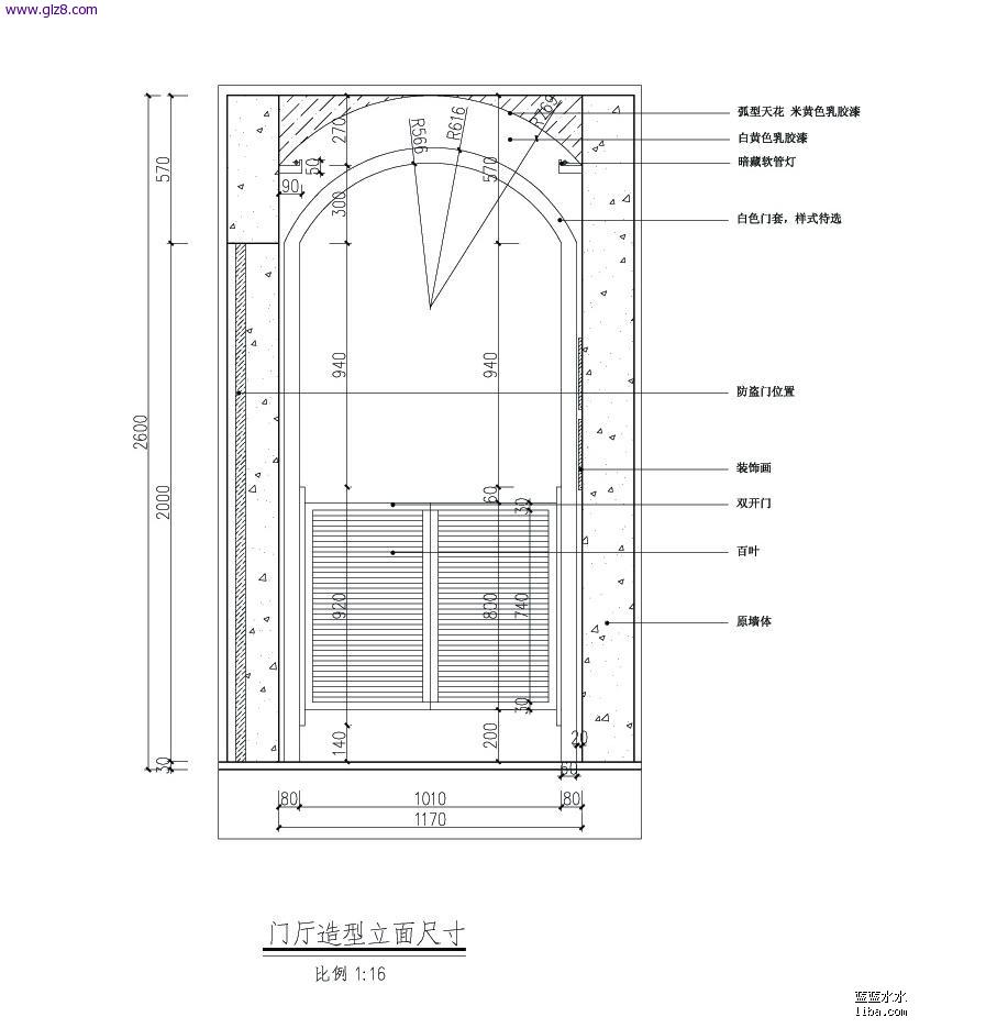
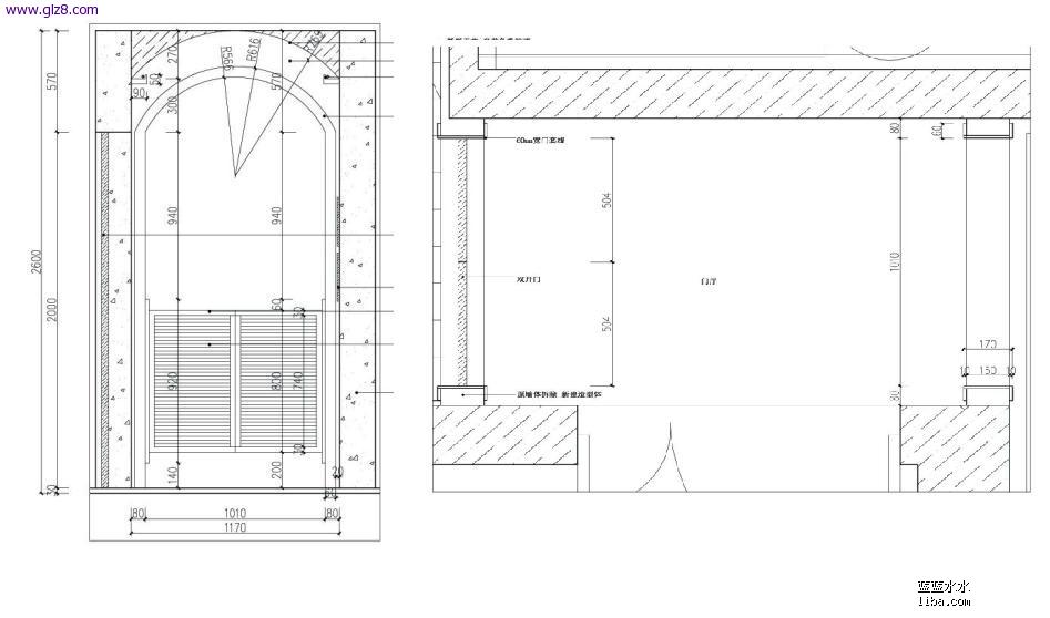
上设计师给的玄关设计图~
请大家帮我看看
被我合并了,看不明白的话我上大图


10034694.jpg
回复

使用道具 举报

23

主题

5116

帖子

1万

积分

硕士毕业

积分
10491

社区居民

 楼主| 发表于 2011-12-31 15:59:05 | 显示全部楼层
这个门好朴素啊~~我要不要搞个花哨点儿的
还是继续朴素淡雅到底呢?~
设计师给的这个方案是一个白色的白页双开门

基本上是这样想的
这个玄关就是进门的一个小小的过道,被设计成一个两边是拱形垭口,中间是拱形穹顶的小空间
我的客厅刷的漆是那种暖暖的黄色,用我的话说就是那种秋天下午太阳光照到墙上的颜色,当然那个是混合色,是配不住来的,我就找个类似查不多感觉的
透过这个拱垭口看到的是卫生间的墙、洗手池上的镜子及镜前灯
卫生间的墙砖是白色的半古不古的210的砖,镜子边用的是浅绿色的小腰线花砖

设计师给的方案是拱顶上方两侧设置隐形灯带
我的想法是中间放一个彩色的玻璃吊灯
哪个效果会比较好啊?

还有,按照上面的想法,这个门有没有什么更好的方案阿?


反正他这个设计图,我还是有点儿看不太懂的,让郭师傅看去吧~
他们折腾去吧


10048787.jpg
回复

使用道具 举报

23

主题

5116

帖子

1万

积分

硕士毕业

积分
10491

社区居民

 楼主| 发表于 2011-12-31 15:59:38 | 显示全部楼层
sx_yunma

没看明白




楼主:


主要是我把正面图的标注给挡住了
明天去公司,我上完整的
回复

使用道具 举报

23

主题

5116

帖子

1万

积分

硕士毕业

积分
10491

社区居民

 楼主| 发表于 2011-12-31 15:59:45 | 显示全部楼层
继续我的流水帐

  10月9日  约见工长 考拉乐沙发下订单  察看现场材料


    今天的msn上戏称“早看朝阳,夕赏晚霞,我是追逐太阳的娃娃”,把xixi同学恶心的不行。呵呵,本来就是嘛,早上往东走晚上往西走,随着太阳的方向行进,跟夸父似的。
    晚上下班,一路驱车向东向北,怕迷路,紧跟着去往北苑方向的班车。
    比较顺利的抵达来广营,与郭师傅约见的地方,心里嘀咕,这个鬼地方我再也不会晚上来了,太可怕了,感觉有些荒郊野外的。漂亮的球场、顺利地交流,一切交待妥当。一碗淡得啥味道没有的乌冬面下肚后,继续赶路。
    考拉乐的展厅也不是什么好地方,城市里的新农村!马帅哥在那,晃悠了一圈以后,把看好的沙发下单了,赠了那个摇椅~别的家具待定,都不着急。可以考虑考虑那个大圆球球的白床了,挺好看的~
      继续行进,还差点儿迷路,好在北京的路都是能转回去的。往大望路行进,查看已经进场的材料,发现很多不认识的东西,等下上照片大家帮着看看。

    忙碌、疲惫,每天晚上又不想把今天做了的事情留到明天去记录,一切在路上的时候脑袋里的一些话,被零星蹦出来的词语所替代。夜里的两广路已经跑到熟悉的不能再熟悉,躲在车里小小的空间,车门一锁,音乐打开,就好像给了自己一个小铁壳儿,一层并不结实的盔甲,恩恩,天塌下来我也自己顶着,我不怕。
    今儿忘记说什么了,一个邻居跟我说,妹妹眼光别太高。我说我眼光不高啊,我就要个能给我把天顶起来的男人。他 了,说这还不高啊?!我说不高啊,没他我这边也自己顶着呢吗……汗死了……嗯嗯,我要嫁不出去了。

    终于在趴下之前回到住着的小区,跟新房子那里还是有很大的区别的。风度静谧、树木繁多;而荣丰是一个人气旺到不行了的小区,人口密度不亚于大学的宿舍,抬头看看,密密麻麻的窗口,每次看到都会想到“万家灯火”这个词。中心的小花园有很亮的灯,健身区有秋千,我曾经在夏天睡不着的凌晨3点,荡着秋千看别人遛狗,我想这样的情况也只有荣丰了。几点回家都不怕,因为几乎任何时间都有人在院子中走动。这样的环境虽然嘈杂,但是给一个人住的自己极大的安全感,哈。

    话唠了~~又快12点了,几乎每天都是这个时间睡觉了。要好好休息,开工了呶,千万不能趴下哈~~
   
回复

使用道具 举报

23

主题

5116

帖子

1万

积分

硕士毕业

积分
10491

社区居民

 楼主| 发表于 2011-12-31 16:00:00 | 显示全部楼层
10055462.jpg
回复

使用道具 举报

您需要登录后才可以回帖 登录 | 立即注册

本版积分规则

装修百科|手机版|小黑屋|北京高老庄建筑装饰工程有限公司 ( 京ICP备19035109号 )

GMT+8, 2026-4-4 03:40 , Processed in 0.163277 second(s), 37 queries .

快速回复 返回顶部 返回列表