北京装修论坛 - 北京装修社区_高老庄工长装修

 找回密码
立即注册
热搜: 工长 设计 曝光
楼主: 安安

[装修讨论] ~~恋爱十年~~与安先森的地中海&田园&乡村&北欧混搭婚房

[复制链接]

6

主题

129

帖子

303

积分

初中毕业

积分
303

社区居民

QQ
 楼主| 发表于 2014-3-13 09:11:43 | 显示全部楼层
于曼橱柜.jpg 宇曼.jpg
回复

使用道具 举报

6

主题

173

帖子

408

积分

初中毕业

积分
408

社区居民忠实会员

发表于 2014-3-13 18:18:43 | 显示全部楼层

回 19楼(安安) 的帖子

安安:昨天QQ上联系了宇曼橱柜,了解一下具体情况,台湾好奇贴膜,柜体为吉林森工露水河E0级18厚板,盛富莱石英石台面压制版,悍高阻尼等,背板是露水河3厘双贴,橱柜基本情况是这样,价格是,定金200抵500,满3000送拉篮满5000送国产水盆水龙头(换进口的加200价差)1860一延米,台下盆 .. (2014-03-13 09:07) 
他们的315报价单里面不是有嘛。
回复

使用道具 举报

1

主题

18

帖子

60

积分

学前班

积分
60

社区居民

发表于 2014-3-14 14:01:13 | 显示全部楼层

回 19楼(安安) 的帖子

安安:昨天QQ上联系了宇曼橱柜,了解一下具体情况,台湾好奇贴膜,柜体为吉林森工露水河E0级18厚板,盛富莱石英石台面压制版,悍高阻尼等,背板是露水河3厘双贴,橱柜基本情况是这样,价格是,定金200抵500,满3000送拉篮满5000送国产水盆水龙头(换进口的加200价差)1860一延米,台下盆 .. (2014-03-13 09:07) 
宇曼这个是参加315团购的么?没印象啊!
回复

使用道具 举报

6

主题

129

帖子

303

积分

初中毕业

积分
303

社区居民

QQ
 楼主| 发表于 2014-3-14 16:46:22 | 显示全部楼层

回 22楼(莫汐娃娃) 的帖子

莫汐娃娃:宇曼这个是参加315团购的么?没印象啊! (2014-03-14 14:01) 
不参加,是我家工长推荐的,我就去了解一下
回复

使用道具 举报

6

主题

129

帖子

303

积分

初中毕业

积分
303

社区居民

QQ
 楼主| 发表于 2014-3-17 22:09:54 | 显示全部楼层
315  团购回来,订了新中源的瓷砖,和地康,带着燕工长一起,着急的先订完了,瓷砖纠结了很久,一木缘放弃了,选择了百安居的宇曼橱柜,今天进工人开始拆瓷砖,明天估计就能拆完了。地康明天来测量,报价,不晓得为什么要交20块钱,开始也没说测量要交钱,我家也是六环内。搞不明白,地康的意思是明天测量收费20,最后结账的时候在扣除20,真是不明白这个20块有毛意义,觉得不明不白,有点不爽!!!
回复

使用道具 举报

6

主题

129

帖子

303

积分

初中毕业

积分
303

社区居民

QQ
 楼主| 发表于 2014-3-17 22:14:50 | 显示全部楼层

工地,被拆的厨房

工地,被拆的厨房

客厅

客厅
回复

使用道具 举报

6

主题

129

帖子

303

积分

初中毕业

积分
303

社区居民

QQ
 楼主| 发表于 2014-3-17 23:27:24 | 显示全部楼层
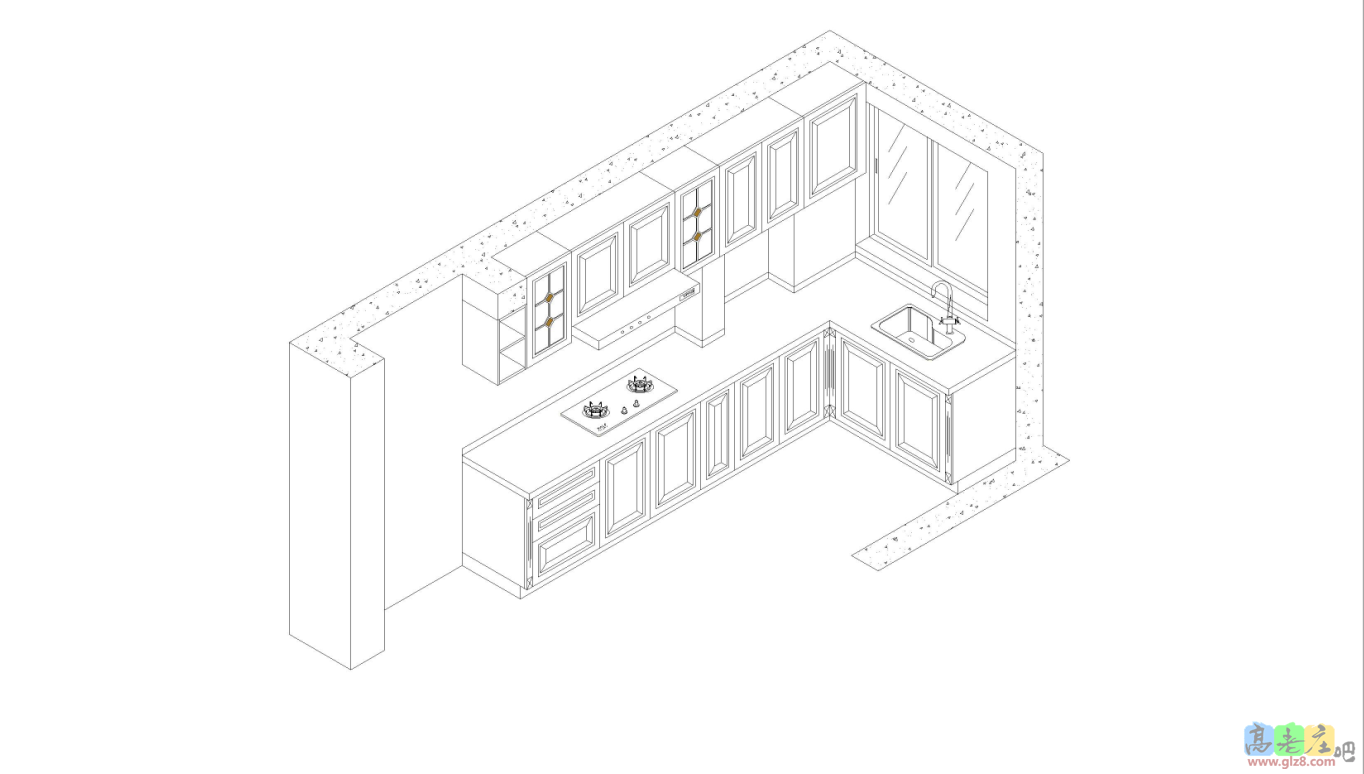
下午百安居(宇蔓橱柜)来简单测量了一下,订好了电改的位置,晚上发来了简单的图纸,没有尺寸

橱柜图纸

橱柜图纸
回复

使用道具 举报

6

主题

129

帖子

303

积分

初中毕业

积分
303

社区居民

QQ
 楼主| 发表于 2014-3-18 21:12:27 | 显示全部楼层
地康水电报价,看到挖地2000 心哇凉哇凉的
回复

使用道具 举报

6

主题

129

帖子

303

积分

初中毕业

积分
303

社区居民

QQ
 楼主| 发表于 2014-3-18 21:13:24 | 显示全部楼层
11.png 23.png
回复

使用道具 举报

6

主题

129

帖子

303

积分

初中毕业

积分
303

社区居民

QQ
 楼主| 发表于 2014-3-18 21:21:06 | 显示全部楼层
地康测量费20,新小区入住半年后都要收取20元测量费,不过最后算余款的时候在减掉,我现在开始犹豫要不要改下水了,觉得太贵了
回复

使用道具 举报

您需要登录后才可以回帖 登录 | 立即注册

本版积分规则

装修百科|手机版|小黑屋|北京高老庄建筑装饰工程有限公司 ( 京ICP备19035109号 )

GMT+8, 2026-4-3 20:12 , Processed in 0.185214 second(s), 30 queries .

快速回复 返回顶部 返回列表