北京装修论坛 - 北京装修社区_高老庄工长装修

 找回密码
立即注册
热搜: 工长 设计 曝光
查看: 7168|回复: 16

漫漫长路,只为那最后成型的一天5-27号更新(皇家森林请看一下地面是否可以)。

[复制链接]

5

主题

28

帖子

86

积分

学前班

积分
86

社区居民

发表于 2014-5-7 17:55:00 | 显示全部楼层 |阅读模式
本来是不打算流水日记的,也有可能记到一半会断掉,为什么呢?懒哇呀。。。。。
计划是最后完成分享一下最终的照片(好看的发,不好看的就扣下了),但是看大家写的写,记得记,挺欢乐的,所以就跟上节奏了。
前言完成了
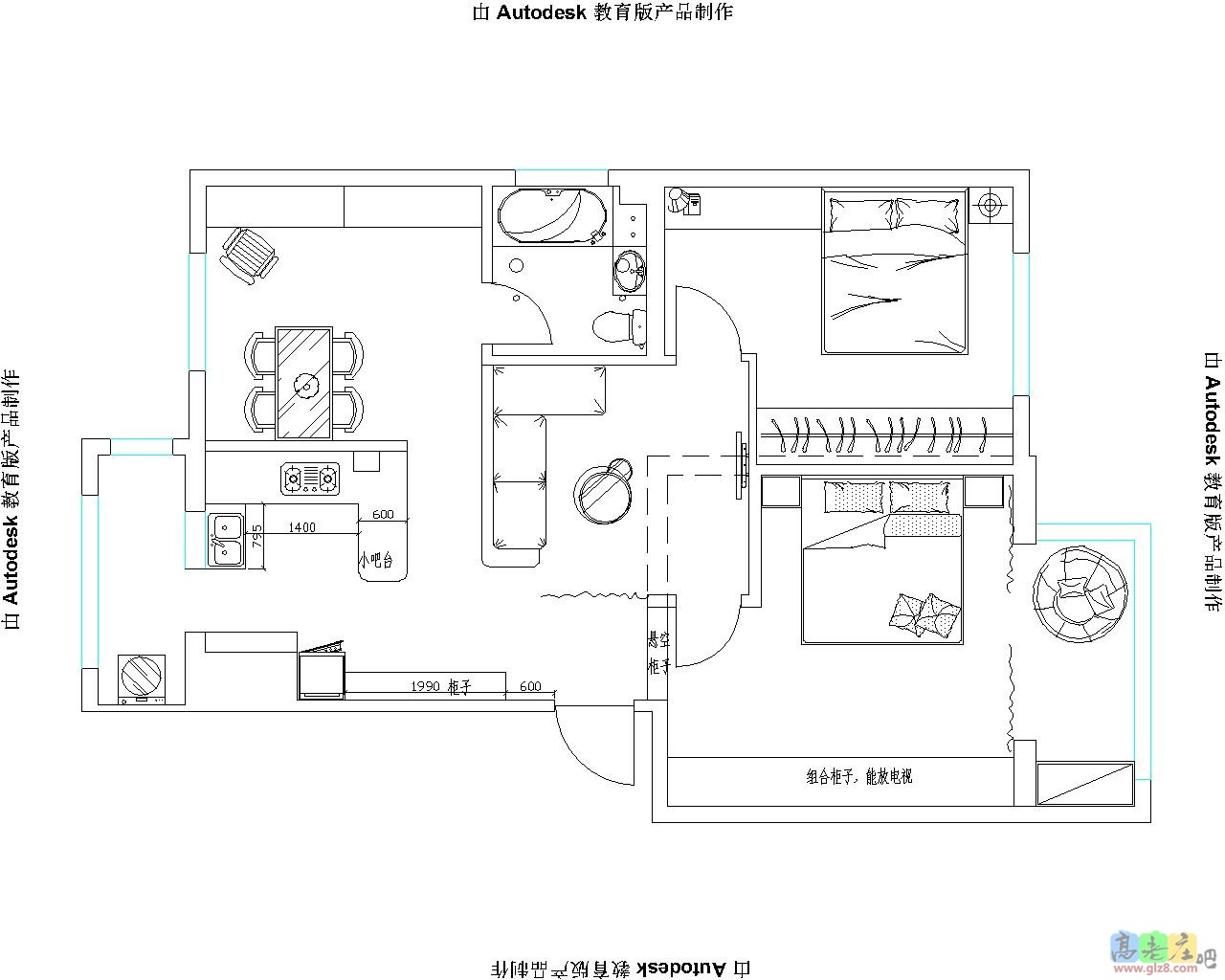
惯例先上KFS的户型(左北右南)
户型那叫一个坑爹呀,95平,楞是没有单独的橱窗,妹的,这叫我这么爱作饭的爷们,情何以堪呀~~~~额。。。。媳妇是你爱作饭,我洗碗~ 0.jpg
回复

使用道具 举报

5

主题

28

帖子

86

积分

学前班

积分
86

社区居民

 楼主| 发表于 2014-5-7 18:05:58 | 显示全部楼层
继续
我和我家妹子,工作性质也是关于装修的,但是从不下工地,而且是商装,对于家装完全不懂。也是且画且了解呀
一共出了3+0.5稿方案,
大家从方案上就应该能看出来了,从刚开始的热情激情到后来的应付和将就。。。。。
家装真熬人呀
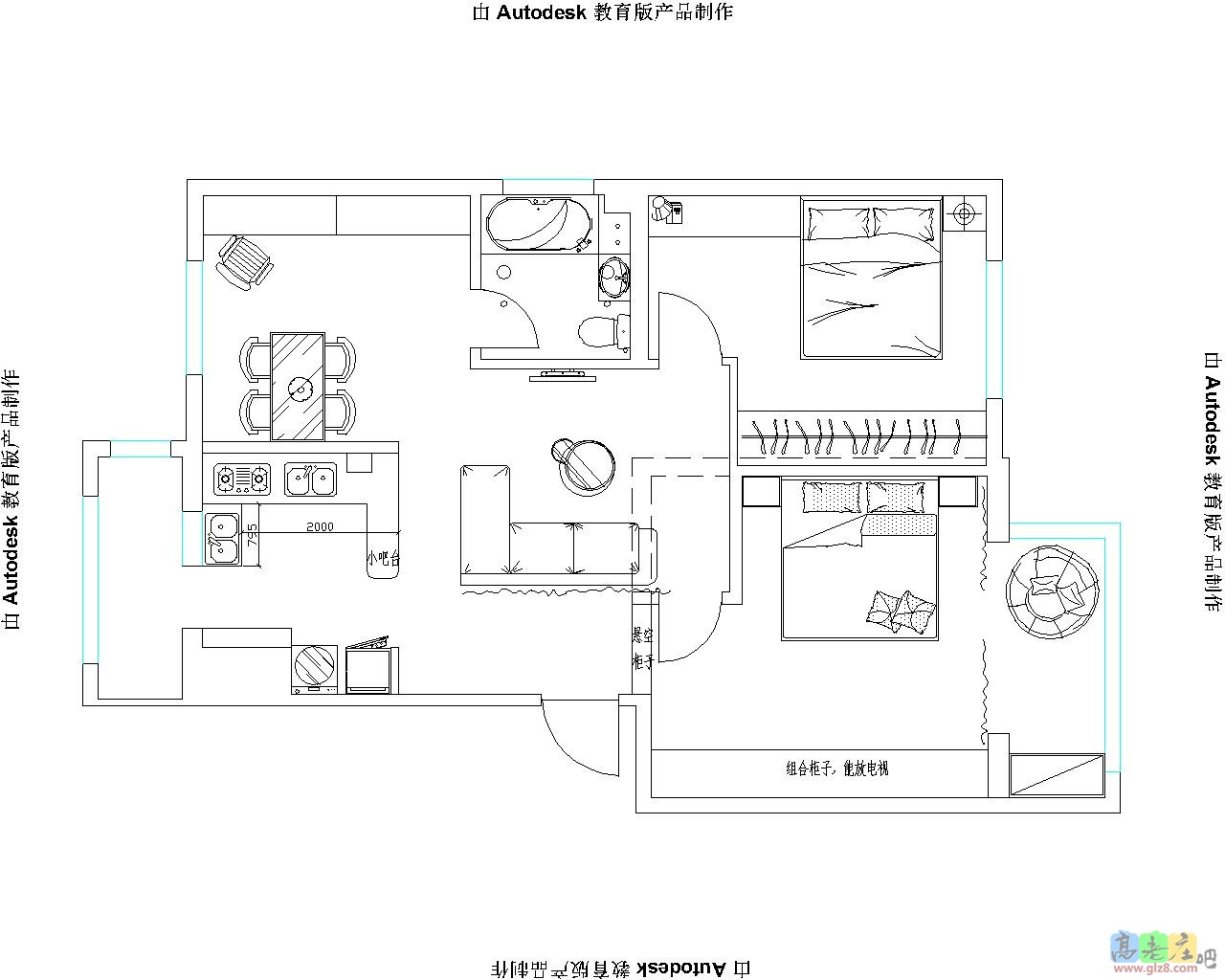
A方案
我家妹子出的,依照原有户型,不作改动(大家看有尺寸,有注示,有填充)多详细呀~
A.jpg

B方案
妹子说来个创新的
其实就是客厅与主卧室互换,思路就是想把卧室搞成集休息,娱乐,化妆,哄孩子(打算年底要,要放婴儿床)一体的私人空间。。。。我膜拜了
哦A方案,妹子想把次卧改为通体榻(mu)榻(zhi)米(da)床(kang),考虑到费钱 费米 费金币的大方向来打动她,能否改改,就在B方案改成了床了。
其实我是不喜欢哇哈哈~~
B.jpg
回复

使用道具 举报

5

主题

28

帖子

86

积分

学前班

积分
86

社区居民

 楼主| 发表于 2014-5-7 18:28:03 | 显示全部楼层
之后前面两稿,都没有打动我,第三次想和妹子商量再想一稿,妹子看了我一眼,你自己来吧,你改啥我都没意见。额。。。撂挑子了
那我就来了
C方案
两稿其实就是中间的沙发位置摆放问题
看男人就是没有女人细致(没尺寸 没标准 没填充)
C-1.jpg C-2.jpg

其实改完这稿,我一看,哇靠,两室一厅变成三室一厅了。。。马上去洗手间照照了镜子,膜拜了一下镜子里的大神。
很潇洒的拿给妹子看,妹子说阳光呢,动线呢。。。。你这是堡垒呀?
我反驳,这又不是商场要啥动线,阳光有呀主次卧全有,客厅可以错北面的天光,实在不行灯光嘛。
这稿方案经过我俩很长时间的讨论,妹子终于是同意了。
那好就这么着了,我很美呀
但是过了两天,妹子的话以及我这么一个爱作饭的人(额。。。。)还有就是结构改动大(钱米币),
我很正重而严肃的和妹子说,第一稿吧。
妹子无语的眼光,有着杀人般的气势,低沉的声音,挤出了一句,你画吧,你作主吧。
回复

使用道具 举报

5

主题

28

帖子

86

积分

学前班

积分
86

社区居民

 楼主| 发表于 2014-5-7 19:34:47 | 显示全部楼层
最终定稿就是它了
不改户型结构,厨房改为半封闭式(建墙,不加门),这样就会多出一个小的餐区。
不喜欢衣柜,喜欢那种融入到结构的感觉,就增加侧墙。后期加挂帘自己去宜家或是TB买件组装
END.jpg

终于在4月初搞定方案了,那么在配件和选材上全由妹子拍板,
那么就定装修了,考虑到求人不如求己,就在小区附近找了个装修公司。
半包最后的价格是1W6。水电未含
订下来的同时正好赶上庄里4月份的团购,那天还下着小雨,那叫一个冷哇,可能刚开始接触装修,所以还没找到感觉看什么买什么,进去看了一圈就出来了。
从这次之后就没有休息日了,周末拉着妹子十里河穿梭了(过完劳动节后,妹子拉着我的手,发自肺腑的和我说,哥我想上班。。。。我想上班)
慢慢的有了头绪后,庄里又组织了5.3的团购,依据用什么买什么原则,先想到的就是橱柜和烟机套装,那么就开始逛吧。
先说烟机吧,看上侧吸的了,比中式好看且不撞头,感觉比欧式吸烟效果好毕竟挨着近麻,最后敲定5600+9B28了
橱柜是在家和家美的一商户订的,1700元/米,爱格板面+露水河的柜体+石英石台面(唉,把橱窗加了墙这样成了U型,那金币又是刷刷的掉呀)
上面两个照片等安装好了发上来
回复

使用道具 举报

5

主题

28

帖子

86

积分

学前班

积分
86

社区居民

 楼主| 发表于 2014-5-7 19:40:46 | 显示全部楼层
NO PP NO TALK
先上原房照片
一进门正对着卫生间
IMG_3087.JPG

右拐客厅
IMG_3086.JPG

客厅方向看KFS设计的脑残开放厨房(画方案的时候,画一次我祝福KFS两次)
IMG_3093.JPG

厨房看主卧室和客厅
IMG_3094.JPG
回复

使用道具 举报

11

主题

483

帖子

2675

积分

大专毕业

积分
2675

社区居民忠实会员社区劳模最爱沙发

发表于 2014-5-7 19:57:28 | 显示全部楼层
嗯,还是最终定稿这个方案比较好,南北双通透,户型不错哦
回复

使用道具 举报

5

主题

28

帖子

86

积分

学前班

积分
86

社区居民

 楼主| 发表于 2014-5-7 20:09:44 | 显示全部楼层
进场头一次橱柜的安排第一次测量,其实感觉没什么太大意义,后期改为侧吸的。灶具下方没有任何大的空间,燃气表+地暖水管全部占用。为了厨房用的舒服以及增加小餐区就作了墙了。
WP_20140426_001 (1).jpg



下图为拆墙后增加的餐区和厨房共用的墙
WeChatImage635347963697549957.jpg
WP_20140504_004.jpg
掌柜妹子发话了,感觉有点暗,有点拥挤,唉没办法想要墙,只能这样了,后期这面墙妹子说了,要用绿色的。。。
其实我比较倾向暖色系,黄色啦   桔色啦   桔黄啦。。。。感觉一个色~
为了家庭安定。团结。以及妹子为家庭的中心思想,在颜色和配饰上全部听领导的~
客厅背墙是深蓝色~卧室是主墙是深色壁纸~橱房是黄色仿古墙砖和自来脏的蓝砖。。。我忍了~,既然结构随了我,那么别的就随她了,跟着领导有肉吃~
今天刚去工地回来,上厨房和卫生间的照片
厨房的
WP_20140507_004.jpg


妹子犹豫的问我,好看嘛,好乱,我回答仿古的就是这样
话说回来,卖砖的说你们不要腰线也不要分色,好怪异呀。其实这砖在卖场是45度的~妹子改成这样了。
地面还没铺先上单品吧,有点点深
WP_20140504_020.jpg


开始卫生间,
黑色大砖,淋浴和马桶后是金色的
WP_20140507_002.jpg
WP_20140507_003.jpg

勾缝也是黑色的,但是想有金色的话也是黑色勾缝会不协调,
本来打算阳角是45度拼,但是考虑到瓦工师傅的手艺问题,还是用白色阳角线,
以上两个问题最后决定用白色勾缝
刚送过砖来,瓦工师傅郁闷了,这是地上墙呀(我这墙砖是600*600的地砖改的),之后师傅BALABAL小魔仙的说了一通,这不好弄那不好弄,最后由之前水泥沙浆铺贴,改成用云时胶,什么剂,作铺装。
为什么要这样呢,回答是不吸水,地砖比普通的墙砖要沉,后期会掉,所以就~~~加钱了
真是这样么?
回复

使用道具 举报

5

主题

28

帖子

86

积分

学前班

积分
86

社区居民

 楼主| 发表于 2014-5-7 20:36:12 | 显示全部楼层
说到这里了
再来说说我家妹子,见到什么好看就要往上装,
到现在为止,绿色,黄色 蓝色 白色,混塔呀完全混搭,就连开关面板都要用黑的~
妹子呐,眼睛 鼻子 嘴,都好看,但是装在一起也要考虑一个协调性吧~
唉我家的妹子是冲动性,我也只能敬请期待~
回复

使用道具 举报

5

主题

28

帖子

86

积分

学前班

积分
86

社区居民

 楼主| 发表于 2014-5-7 20:42:21 | 显示全部楼层
下面这张图就是主卧新建的墙,为的就是把衣橱与结构融入在一起
WP_20140504_007.jpg

下面这张是宜家的组合衣挂后期打算用这个,再配个有垂 有质的帘子。
但是这个固定是入墙的,因为墙是卫生间共用的,担心会不会拽塌(哈哈衣服多)
ai-ge-te-qiang-mian-gua-tiao-gua-gan-xie-shou-na-jian__0216282_PE371891_S4.JPG

这是TM上面的但是感觉那个所谓的ABS连接头,还有就是天和地不用打钉就能立住表示有压力
无标题.jpg

哈哈,我的名字叫纠结!
回复

使用道具 举报

5

主题

28

帖子

86

积分

学前班

积分
86

社区居民

 楼主| 发表于 2014-5-7 20:44:14 | 显示全部楼层

回 5楼(lingxi1108) 的帖子

lingxi1108:嗯,还是最终定稿这个方案比较好,南北双通透,户型不错哦 (2014-05-07 19:57) 
嗯嗯,还是保守一些吧。哈哈
回复

使用道具 举报

您需要登录后才可以回帖 登录 | 立即注册

本版积分规则

装修百科|手机版|小黑屋|北京高老庄建筑装饰工程有限公司 ( 京ICP备19035109号 )

GMT+8, 2026-4-4 01:05 , Processed in 0.377411 second(s), 35 queries .

快速回复 返回顶部 返回列表