北京装修论坛 - 北京装修社区_高老庄工长装修

 找回密码
立即注册
热搜: 工长 设计 曝光
查看: 4442|回复: 13

庄主帮助看看这样好吗

[复制链接]

2

主题

22

帖子

69

积分

学前班

积分
69

社区居民

发表于 2014-6-8 09:07:02 | 显示全部楼层 |阅读模式
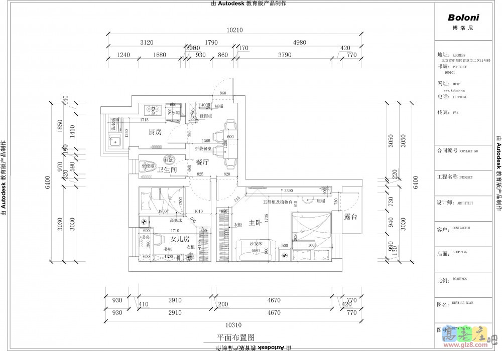
庄主帮助看看吧,大家也帮助看看怎么弄好谢谢跪谢了 宏建南里方案2-Model.jpg
回复

使用道具 举报

2

主题

22

帖子

69

积分

学前班

积分
69

社区居民

 楼主| 发表于 2014-6-8 09:09:36 | 显示全部楼层
我的房子是顶层一圈都是暖气管子不知道该怎么弄了庄主有何建议其它小伙伴有什么好建议??
回复

使用道具 举报

0

主题

36

帖子

95

积分

学前班

积分
95

社区居民忠实会员

QQ
发表于 2014-6-8 10:01:50 | 显示全部楼层
这还不简单,吊个顶呗
回复

使用道具 举报

24

主题

1万

帖子

2万

积分

硕士毕业

积分
20710

社区居民最爱沙发忠实会员社区劳模社区明星

发表于 2014-6-8 10:26:58 | 显示全部楼层

回 1楼(小懒爸爸) 的帖子

小懒爸爸:我的房子是顶层一圈都是暖气管子不知道该怎么弄了庄主有何建议其它小伙伴有什么好建议?? (2014-06-08 09:09)
请现场拍照片,不知你说的顶层一圈是指一层顶面还是指顶楼地面。。。

如果是指一楼顶面露出很多暖气管,那这种情况就只能吊顶封,吊顶要留口,方便空气流通,不然暖气管冬天温度过高会把吊顶烤脱皮,得设计成圈顶或其它留有口的造型顶。。。
回复

使用道具 举报

2

主题

22

帖子

69

积分

学前班

积分
69

社区居民

 楼主| 发表于 2014-6-8 21:53:05 | 显示全部楼层

怎么利用客厅

怎么利用客厅

2平米巨小的厕所

2平米巨小的厕所

pbanfngp55c52389.jpg

上边就是那一圈管子

上边就是那一圈管子

phmgkkea55c59c3e.jpg
hagebiii55c601e8.jpg
oilnbmja55d245b1.jpg
回复

使用道具 举报

2

主题

22

帖子

69

积分

学前班

积分
69

社区居民

 楼主| 发表于 2014-6-8 21:54:03 | 显示全部楼层
各位大爷帮着看看吧我是菜鸟一只谢谢了跪拜中@@@@@@@
回复

使用道具 举报

2

主题

22

帖子

69

积分

学前班

积分
69

社区居民

 楼主| 发表于 2014-6-8 21:55:02 | 显示全部楼层
老房子改不了地暖吧
再说我的全部预算是7-8W
不算家电
回复

使用道具 举报

0

主题

15

帖子

46

积分

禁止发言

积分
46

社区居民忠实会员

发表于 2014-6-8 21:55:50 | 显示全部楼层
可以找工长问问, 貌似只有吊顶吧
回复

使用道具 举报

2

主题

22

帖子

69

积分

学前班

积分
69

社区居民

 楼主| 发表于 2014-6-8 21:59:38 | 显示全部楼层
把管都包上?
会不会不暖和呀
回复

使用道具 举报

2

主题

22

帖子

69

积分

学前班

积分
69

社区居民

 楼主| 发表于 2014-6-8 22:01:11 | 显示全部楼层
房子要住10年以上装修不想太凑合了
回复

使用道具 举报

您需要登录后才可以回帖 登录 | 立即注册

本版积分规则

装修百科|手机版|小黑屋|北京高老庄建筑装饰工程有限公司 ( 京ICP备19035109号 )

GMT+8, 2026-4-3 17:49 , Processed in 0.166701 second(s), 30 queries .

快速回复 返回顶部 返回列表