|
|

楼主 |
发表于 2012-5-2 10:02:59
|
显示全部楼层
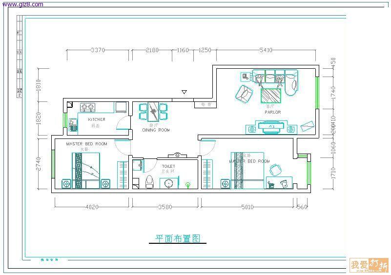
我就按照死扛着前辈总结的装修顺序来和大家聊吧,我感觉这个顺序还是比较合理的,大家也可以参考参考.水电改造之后,木工就可以进场了.我家木工活不多,就是在主卧的小阳台做个地台和小书架.建议大家能少做木工活就少做,除非特别特殊的地方,不好买成品家具.木工活对家的污染还是比较严重的.只要互相不干扰,有些工序是可以同时进行的.我家木工来做地台的时候,瓦工也来了.瓷砖参加的东鹏的集采,砖的质量不错就是有点贵,我和老公前后跑了四五趟,不是忘带户型图,就是换花色,总之折腾的够呛,总算把砖拉回来了,结果那天我被拉到郊区开会去了,可怜的老公一个人验砖,晚上九点多才离开,饭也没吃着.之后我家的装修基本上都由我老公一人负责了,因为我实在是太忙了,没有周末,天天加班到很晚,对装修已经心有余而力不足了,再次要特别感谢我老公,真是不容易,老公辛苦了!
给我家贴砖的是位老师傅,已经贴了三十多年近四十年了,年龄和我们的父亲差不多.这位老师傅贴的很慢很仔细,而且还很省砖,我家不少砖正常来贴很多型号都不够还需要补砖,结果被这位师傅一帖,还剩下一些,砖贴的也漂亮.有很多邻居都等着老师傅给我家贴完贴他们的,遗憾的是老师傅着急回家,贴完我家就走了.对这位师傅,我和我老公都很尊敬.我家找的施工队是我们小区一位业主手下的,这位业主人不错,比较放心,所以小区有很多人装修都找的他,再说了他就住在这里,整不好的话,这么多人都去砸他们家玻璃去 .铺地砖的时候还涉及到过门石的安装,我家一进门那个小厅铺的是地砖,所以买了四条过门石,两个卧室还有卫生间厨房各一个,铺地砖的时候同时铺上.卫生间还设计到地漏.地漏是五金件里最早涉及到的,应该早点买好,铺卫生间地砖的时候正好一起装上.等厨房的砖都铺好后,别忘了约橱柜的第二次测量哦
瓦工之后就该油漆工进场了,主要是刷墙面漆和给木工打造的家具刷油漆.由于开发商建的房子阴阳角都不直,所以我家刷墙之前也对墙面和地面做了基层处理.墙面处理主要是把阴阳角找直了,墙面找平了,该贴牛皮纸的贴牛皮纸,该贴布的贴布,然后刷上腻子.地面处理主要是地面找平,这个视具体情况而定,有的就不需要找平,有的就需要.我家客厅和两个卧室都铺地板,进门的小厅铺的是地砖,所以最好是找平.不过地面找平也经常是不平,我家这个地面前后找平了四次,第一次,监理看了说不平,然后重新找.第二次监理看了说返沙,然后又把返沙的地方整了整.每次整完地面都要凉几天才能干,时间都浪费在这里了.本以为这次之后应该行了,没想到最后铺地板的时候又整了一次(后面再说).
地面干了之后,就可以刷漆了.我们买的是多乐士的金装全效,也是参加的集采.我家客厅餐厅还有两个卧室各有一面墙准备贴壁纸,为了好配色,所以墙漆都刷的是白色.计算失误,我家整整多出两桶面漆来,说好是可以退的,但是真退的时候,多乐士就今推明明推后,说没有钱,本来家装就很累,还让我老公白跑了好几趟,最后老公火大了,准备和他们大干一场,他们才通知让我老公去总部拿钱,唉!中国的消费者真不容易.
接下来轮到厨卫吊顶了,一般卖铝扣板的都负责安装,感觉最好还是让卖铝扣板的厂家来安装,还是那句话:专业而且便宜。我家铝扣板选的是派高,也是小区组织的集采,比较便宜,55一平米,然后边角有便宜的有贵的,一般选十几块钱的就成,这东西不容易坏,差不多就行了.在厨卫吊顶的同时,厨卫的防潮吸顶灯、排风扇(浴霸)应该已经买好了。大家最好把厨卫吸顶灯、排风扇(浴霸)同时装好,或者留出线头和开孔。如果打算把油烟机管道包在吊顶上面,那么吊顶之前应该先让油烟机的工人来把管道装好了.浴霸\排风扇的管道也是一样,先装好再吊顶.我家这个环节还算比较顺利.
到这里我家施工队的活差不多就快完了,下来就该进去安装阶段.吊顶结束后,就该约橱柜安装了,橱柜安装之前先把厨房的砖都勾好缝凉干了,并且打扫干净.水槽、油烟机、灶具最好和橱柜约在同一天安装,橱柜安装之前最好协调物业把煤气通了,因为煤气灶装好之后需要试气。我家的橱柜买的是柏辉的,也是参加的集采,柏辉的橱柜质量和售后服务还算不错,就是个别设计师态度稍微差点,我家的橱柜因为设计师的失误,导致水槽下面留得一个插座无法使用了,另一个勉强可以使用,刚开始设计师还不承认,态度还很横,当时我们就怒了,打算要么不交尾款了,要么让他们把那部分的柜子拉回去重整,并且打电话给公司,投诉他,要知道设计师的错误导致的问题设计师是要负全责的。结果晚上设计师就到家里和我老公说好话,商量能不能赔少点,所以说,遇到问题的时候该硬的时候还得硬,最后由于问题不算很严重,而且柏辉的态度我们比较满意,再加上设计师最后也认错了,所以就象征性的扣了200元完事。橱柜本身我还是蛮喜欢的,我家卫生间的浴室柜也是柏辉的,橱柜是桔黄色,浴室柜是亮黄色的,很漂亮,就是价钱小贵啊。总结:出问题不要紧,搜搜网上基本上什么牌子都有这样那样的问题,关键还是出了问题之后厂家的态度,这个很重要。后来想了想,我们家的问题并不严重,起码还有一个插座能用,大不了不够了弄个插排,主要是设计师最开始的态度让我们火大,实际上他还是给我们提了一些好的建议,比如厨房立管就用我们台面裁下来的石头包,又便宜又好看。
我家水槽是在好美家买的,特价,双盆,亚光的,不错,现在的水槽水龙头怎么一个比一个高啊,尽管我们选的是最矮的,但也有15cm。结果就是我家厨房的窗户被这个龙头挡着不能全部打开,只能以后再把窗户换成推拉的,或者看到更矮的龙头换龙头了 。我家买的油烟机是瑞鑫的靓风系列,就是看上了它样子漂亮,吸力也够大,对于瑞鑫的服务还是比较赞的,安装当天的下午,就接到他们的回访电话,问他们的工人安装的如何?有什么意见?满意不满意等等。灶具选择的是华帝的B0401BX黑陶瓷的,一开始选择的是雅佳的黑玻璃的,后来在网上查了查,感觉华帝的更好一些,而且看到很多评论说黑玻璃的面板容易炸(有一定的比例),感觉比较怕怕 ,所以就换成华帝黑陶了。大家买之前还是多在网上看看,多比较比较,否则换来换去的来回折腾不说,万一遇到不好的商家不给退定金就麻烦了。
橱柜之后就是木门安装,木门的测量得早早进行,木门的制作周期一般为一个月,所以,为了让工期衔接紧密,要在主体拆改完成之后尽早让木门厂家上门就门洞尺寸进行测量。关于门洞的处理,需要注意一点,如果家里门洞的高度不一致,应该让工人处理成等高.我家订的是依品木门,也是参加的集采,制作时间好像是35天,记不清楚了.四个门(包括门套)+三个窗套一个哑口总共才六千零几.这个门也经历了两次波折,第一次安装的时候,发现卫生间的玻璃不是我们当初选的样子,然后他们当天就把门拉回去了.卫生间门第二次拉回来装好之后,监理有天过来看到这个门的门后有个地方当初安装的时候钉钉子鼓出来一点,有点劈.本来我们都没发现,结果经监理一提醒,虽然只有一点,心理感觉还是不舒服.给依品打了个电话,他们二话没说,就派人过来把门又拉回去了.现在这个门已经装好了,一点问题都没有了 ,对于依品的服务我和我老公还是很满意的,特别表扬一下负责我们小区的方经理 .还是那句话,出问题不要紧,关键是出了问题后商家的态度.
特别提醒:装门的同时还要安装合页、门锁、地吸。买门的时候不同品牌不同时候的活动有时候五金全送,有时候只送其中的一部分,有时候都不送,这个大家根据自家情况事先应该准备好相关五金。
由于开发商给的散热器太简陋,所以又增加了我们的一项开支——换散热器。这个还是参加的集采 ,是努奥罗的,服务和产品都不错,只是价格比较贵。我看我们邻居用的太阳花什么的也都不错,这个大家还是自己比较吧。我们没有时间看,所以都跟风参加的集采,目前来看集采的东西都还不错,就是有些价格比较贵,导致的结果就是预算严重超支。
主体拆改的时候就可以让散热器的厂家过来把旧的散热器拆下来,他们会在管道口安个阀门就走了。然后等装修到某个阶段,再约他们来安装.我家是现在装修的,现在正好是冬天,家里装修不能没有暖气,否则墙阿、贴的砖啊都干不了,可以告诉打算冬天装修并且换散热器的朋友们一个办法,就是厂家把旧散热器从墙上拆下来后,让他们再用PVC管(好像是叫这个吧,记不清了 ,反正是可以弯曲的管子)把旧的散热器再支起来继续供暖,一直到安装新散热器,我家就是这么干的。
“木门——地板——壁纸——散热器,这是一个被普遍认可的正确安装顺序,先装木门是为了保证地板的踢脚线能和木门的门套紧密接合;后装壁纸主要是因为地板的安装比较脏,粉尘多,对壁纸污染严重。最后装散热器是因为只有墙面壁纸铺好才能安装散热器(借用死扛着装修日记中的话)"。但是我家的顺序和这个有点不一样,我家只有某几面墙贴壁纸而且准备贴壁纸的那几面墙没有散热器,所以我家的顺序是:刷墙漆——装木门——安装散热器——安装地板——装壁纸。因为我觉得先装散热器的话,安装过程中流出的水就不会弄湿了地板。我家散热器的安装没什么问题,一切顺利。
散热器装好后,我家终于可以装地板了,保洁的在装地板之前可以免费进行一次吸尘,所以我们提前一天把铺地板的区域打扫干净.谁知第二天,老公打来电话,说地板铺不成了,铺地板的工人说地面还是不平 ,本来很高兴的心又泼了次凉水.匆匆赶到房子那边用长的木板比划了比划,的确有的地方鼓了出来,只好让工人第四次找平,这次直接让工人用腻子,把鼓出来的地方敲了,再补平.因为我们实在折腾不起了,用腻子很快就能干,一直等工人都整完了,我们才离开.地板第二次铺装一切顺利,铺好地板后的房子我还没去过呢,好期待啊!
地板之后就是壁纸了,我家壁纸订的太晚了,直到现在货还没到,建议家里打算贴壁纸的朋友,应该早点去订壁纸,一般壁纸从下订单到到货需要十天半个月的时间,订的晚了只能延误工期了.我家的责任主要在我,工作太忙没时间去订,而壁纸的颜色样子又是最重要的,不放心老公一个人去订,所以只能一拖再拖,我家目前就差贴壁纸了.这个具体还是等我家的壁纸贴了再聊吧,那个时候应该也可以上传照片给大家看了
接下来说说开关插座和灯具的安装吧,正常顺序应该贴完壁纸之后装.我家提前装了,铺地板之前就把开关插座灯具装完了,用了一天时间.开关参加的集采,西蒙的58系列,感觉还不错.灯具我专门请了半天假,和老公在万隆汇洋一直逛到他们下班关门,收获不小,最后买了客厅主灯、两个卧室灯、餐厅灯、客厅落地窗前的吊灯、还有餐厅吊顶上的软管灯,总共花了935元,等我写完了,再附上我家的装修明细。逛灯具之前一定要想好什么样的灯和自己家的装修风格相匹配,多在网上看看别人家装好的图片,自己心里要有个概念,这样逛灯具城的时候才不会被各种各样的灯迷了眼。我和我老公都看好吸顶灯了,餐厅灯和吊灯的样子心里也大致有个谱,所以到了万隆汇洋就只奔吸顶灯而去,卖水晶灯的地方,就压根不进去(生怕一个不小心管不住自己 )。第二天,老公又去宜家买了一个五个头的射灯,买了一块我早都看好的浴室镜子,55上有不少的姐妹也买了这个镜子,在玉泉营买了镜前灯和一个三头的轨道灯,至此,我家的灯具才差不多齐全了,至于落地灯什么的等住进去之后再慢慢添置吧。
灯具一装,家里马上就变了样子,亮堂了很多,温馨了很多。
这里要说一下,如果贴壁纸的话,开关插座最好还是等壁纸贴好之后再安装,因为壁纸在开关插座的位置会掏个小点的洞,这样装好开关插座会把壁纸边缘压到里面去。我们不知道这些,等到贴壁纸了,才从壁纸师傅那里知道,害得老公又把准备贴壁纸的那些墙上的开关插座又都拧了下来,贴好壁纸后又再装上。
开关灯具装好之后紧接着就是五金洁具了。由于我家开关灯具在地板铺装之前就装好了,所有我家装完地板装的是五金和洁具。洁具早都订好了,在玉泉营的居然之间,法恩沙的台盆和马桶包括龙头和所有的上下水管件,总共3000吧。五金是趁着元旦放了两天假买的,浴巾架、毛巾杆、放洗浴用品的两层金属栏、浴缸扶手、浴帘杆是在好美家买的,厨房挂件、手纸杆什么的在玉泉营居然之家买的,这些都是铜镀铬的,质量不错,就是价格比较贵,最后还有一些零碎玩意就在小店买的不锈钢的(质量也还可以,价格便宜阿),总之五金全部下来也一千多了 。
洁具安装一切顺利,大家安装面盆和马桶之前一定要先检测一下下水管通不通,有的面盆的下水管被开发商用水泥封住了,安装的时候要把那截封水泥的地方锯掉,然后再检测一下下水是否通畅,通畅了再开始装面盆和马桶。我有个邻居就是台盆都已经装好了,才发现下水管不通,还好装洁具的人都还在,然后又都拆了,发现管道里有块水泥,又找来物业,总之折腾了半天才整好。所以大家装修的时候一定要保护好家里所有的下水管,堵住了也是一桩麻烦事。我家洁具装完就开始装五金,估计这个时候老公已经很劳累了,开始还留心安装的位置下面有没有管道,后来可能就忘了。导致我家在装最后一件东西——镜前灯,而且钉的还是最后一个钉子的时候出事了,水管被扎破,水一下子就射了出来。由于水管的总闸在楼道里,钥匙都由物业管着,十多分钟之后物业才过来关了阀门。本来一天都很顺利的,结果最后出了这事,老公也很沮丧,这天晚上大家都过得不开心 。
我知道这事情也不能怪老公,四十多天了,他一直在工地上,真是很辛苦的,经常是没吃没喝的。当时的我就是感觉很伤心,觉得怎么老出事情,感觉生活真是很难,下班回去就哭了一场。现在想想,真不应该,老公肯定比我还要难受,因为都是他一点一滴整好的,本来就要大功告成了的,应该好好安慰老公(深刻检讨检讨自己,还是不成熟啊)。出了事情千万别着急上火,都是可以补救的,如果伤了感情就不好补救了,唉,总是事后说的容易,当时很难办到。所以,大家还是防范于未然,干脆就别让事情发生。
这里要特别强调:安装五金件的时候一定要拿着自己的水电改造线路图,有照片的也一定要事先看好照片记清楚了,钉每个钉子都要想好瓷砖下面有没有管线,千万别发生我家这样的事情。
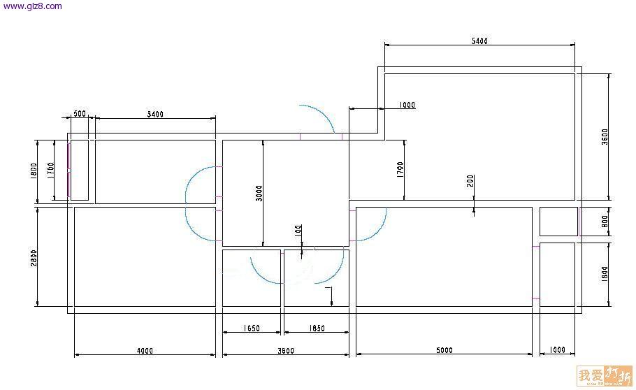
先发一张水电改造后的卫生间图吧
|
|