北京装修论坛 - 北京装修社区_高老庄工长装修

 找回密码
立即注册
热搜: 工长 设计 曝光
楼主: 知足常乐16

使用佳诺橱柜的报道贴

[复制链接]

4

主题

201

帖子

429

积分

初中毕业

积分
429

社区居民

 楼主| 发表于 2014-6-19 10:52:35 | 显示全部楼层
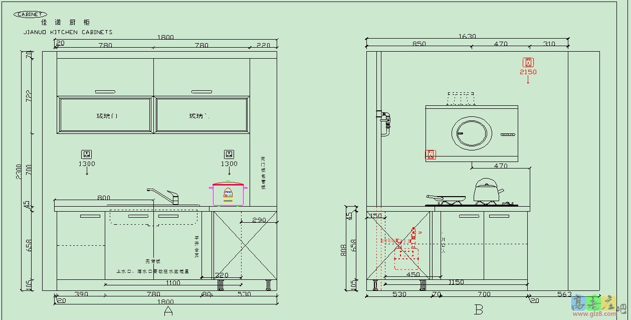
平面2.jpg 平面2 水盘和灶台
回复

使用道具 举报

4

主题

201

帖子

429

积分

初中毕业

积分
429

社区居民

 楼主| 发表于 2014-6-19 10:54:28 | 显示全部楼层

回 13楼(immer) 的帖子

immer:这个顶视图也太抽象了吧。 (2014-06-19 10:46) 
哈,跟的也太快了,我正在继续上传
回复

使用道具 举报

4

主题

201

帖子

429

积分

初中毕业

积分
429

社区居民

 楼主| 发表于 2014-6-19 11:01:00 | 显示全部楼层

平面3 操作台

平面3 操作台

平面4 俯视挖孔

平面4 俯视挖孔
回复

使用道具 举报

4

主题

201

帖子

429

积分

初中毕业

积分
429

社区居民

 楼主| 发表于 2014-6-19 11:09:05 | 显示全部楼层
水盘采用台下盆,以往经验台下盆还是很好打理的,这个需要师傅打磨切割口,如果打磨不好,用起来可不怎么爽,这块也是橱柜细节!!
回复

使用道具 举报

4

主题

201

帖子

429

积分

初中毕业

积分
429

社区居民

 楼主| 发表于 2014-6-19 11:26:51 | 显示全部楼层

回 20楼(immer) 的帖子

immer:消毒柜没啥必要存在。 (2014-06-19 11:20) 
消毒柜早就买了,有点小后悔,就凑合着吧!
回复

使用道具 举报

4

主题

201

帖子

429

积分

初中毕业

积分
429

社区居民

 楼主| 发表于 2014-6-19 11:29:36 | 显示全部楼层

回 19楼(immer) 的帖子

immer:只是觉得一圈转下来,米数不少,可并没啥储物空间。大多都是遮丑和插入了。 (2014-06-19 11:19) 
这也是我比较担心的,本来厨房实际空间就有限,确实需要更大储物空间,所以设计也建议,什么拉篮就不要装了。
回复

使用道具 举报

4

主题

51

帖子

112

积分

小学毕业

积分
112

社区居民

发表于 2014-6-19 14:12:03 | 显示全部楼层
什么时间安装?期待楼主实物报导
回复

使用道具 举报

15

主题

269

帖子

600

积分

高中毕业

积分
600

社区居民

发表于 2014-6-19 16:24:54 | 显示全部楼层

回 10楼(知足常乐16) 的帖子

知足常乐16:上传设计图 (2014-06-19 10:40)
我家用的佳诺橱柜,要是用爱格板的,确实没啥味道。需要上图不,呵呵
回复

使用道具 举报

0

主题

165

帖子

404

积分

认证商家

积分
404

社区居民

QQ
发表于 2014-6-20 14:59:42 | 显示全部楼层
非常感谢您选择佳诺橱柜,我们的李设计是佳诺多年的老员工了,经验很丰富的,而且会为业主设身处地的去设计,合理利用每一分空间。生产和安装您也不必担心,我们一定会给您满意的产品和服务。有什么问题可以随时联系我哦!祝好!
回复

使用道具 举报

0

主题

165

帖子

404

积分

认证商家

积分
404

社区居民

QQ
发表于 2014-6-20 15:01:43 | 显示全部楼层

回 24楼(绿影随行2013) 的帖子

绿影随行2013:我家用的佳诺橱柜,要是用爱格板的,确实没啥味道。需要上图不,呵呵 (2014-06-19 16:24) 
感谢对佳诺的信赖与支持,欢迎晒图哈。。。您的支持就是我们前行的动力。
回复

使用道具 举报

您需要登录后才可以回帖 登录 | 立即注册

本版积分规则

装修百科|手机版|小黑屋|北京高老庄建筑装饰工程有限公司 ( 京ICP备19035109号 )

GMT+8, 2026-3-28 10:14 , Processed in 0.169141 second(s), 29 queries .

快速回复 返回顶部 返回列表