北京装修论坛 - 北京装修社区_高老庄工长装修

 找回密码
立即注册
热搜: 工长 设计 曝光
查看: 5448|回复: 7

[装修讨论] 两室一厅装修,求大家支招!!!

[复制链接]

1

主题

5

帖子

32

积分

学前班

积分
32

社区居民

发表于 2014-6-30 12:53:42 | 显示全部楼层 |阅读模式
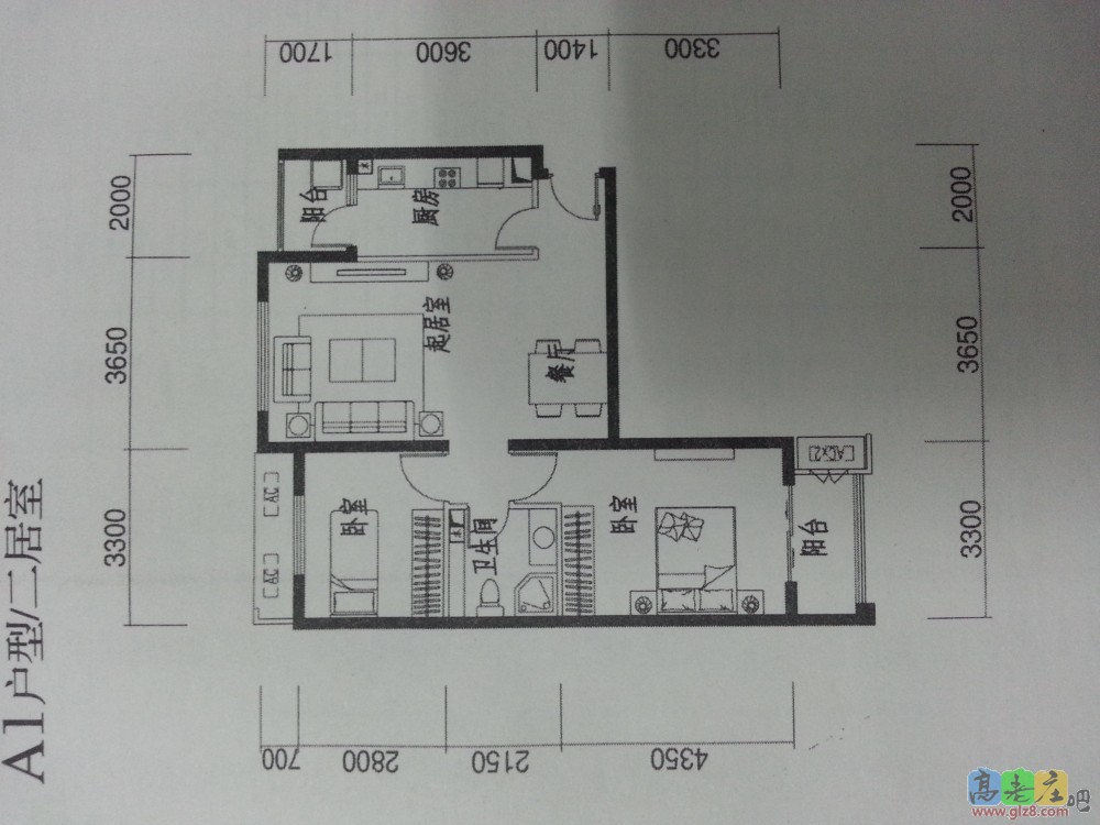
大家好,新人报道,请求帮忙,我的两室一厅,如户型图,准备装修,请大家帮忙提点建议,未来我和老婆住主卧。孩子和奶奶住次卧。冰箱我不知道放哪里好,厨房那个小阳台装修的建议打掉不要,想做一些柜子增加储物空间,不知道放哪里,主卧的阳台也想好好利用一下。再次肯定版主、好朋友们给点建议,谢谢!!!
20140623_151805.jpg
回复

使用道具 举报

481

主题

1万

帖子

5万

积分

博士毕业

积分
52600

社区居民优秀斑竹宣传大使最爱沙发社区劳模社区明星忠实会员

发表于 2014-6-30 13:09:18 | 显示全部楼层
厨房的阳台隔断可以打掉,这样能增加空间。可以增加一个冰箱的位置,

主卧阳台可以做个榻榻米,怎家储物兼休闲功能。
回复

使用道具 举报

0

主题

5

帖子

36

积分

禁止发言

积分
36

社区居民

发表于 2014-6-30 16:05:05 | 显示全部楼层
厨房阳台的门连窗还是可以打掉的,打掉后房子感觉就大了好多,厨房净深2m不是很宽的;看你打算把生活阳台考虑在什么位置了,如果厨房阳台需要晾晒衣服,还是不要打掉好,这样主卧室阳台就可以做成榻榻米地台。
回复

使用道具 举报

1

主题

5

帖子

32

积分

学前班

积分
32

社区居民

 楼主| 发表于 2014-7-2 11:45:38 | 显示全部楼层

回 1楼(暴雪) 的帖子

暴雪:厨房的阳台隔断可以打掉,这样能增加空间。可以增加一个冰箱的位置,

主卧阳台可以做个榻榻米,怎家储物兼休闲功能。 (2014-06-30 13:09) 
谢谢!!我也一直发愁冰箱放哪里!!
回复

使用道具 举报

1

主题

5

帖子

32

积分

学前班

积分
32

社区居民

 楼主| 发表于 2014-7-2 11:48:15 | 显示全部楼层

回 2楼(云淡凤舞) 的帖子

云淡凤舞:厨房阳台的门连窗还是可以打掉的,打掉后房子感觉就大了好多,厨房净深2m不是很宽的;看你打算把生活阳台考虑在什么位置了,如果厨房阳台需要晾晒衣服,还是不要打掉好,这样主卧室阳台就可以做成榻榻米地台。 (2014-06-30 16:05) 
生活阳台在阴面,所以打算晒衣服在主卧的阳台。
回复

使用道具 举报

1

主题

5

帖子

32

积分

学前班

积分
32

社区居民

 楼主| 发表于 2014-7-2 11:48:44 | 显示全部楼层
我是不是可以把洗手间改一下,把洗手台做在外面?
回复

使用道具 举报

146

主题

4902

帖子

1万

积分

硕士毕业

积分
10281

社区居民忠实会员社区劳模最爱沙发社区明星

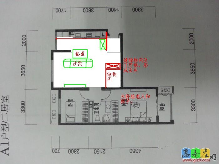
发表于 2014-7-2 12:06:25 | 显示全部楼层
如果喜欢开放厨房
2_15253_e18a751646c8ff1.jpg


大卧室给老人,小卧当主卧室,因为平时白天老人和孩子在家,大点的房间舒服,夫妻的房间主要是睡觉,有个舒服的床就好,
回复

使用道具 举报

1

主题

5

帖子

32

积分

学前班

积分
32

社区居民

 楼主| 发表于 2014-7-4 00:44:01 | 显示全部楼层

回 6楼(醉蟋蟀) 的帖子

醉蟋蟀:如果喜欢开放厨房



大卧室给老人,小卧当主卧室,因为平时白天老人和孩子在家,大点的房间舒服,夫妻的房间主要是睡觉,有个舒服的床就好,
....... (2014-07-02 12:06) 
谢谢,又让我开阔思路了!
回复

使用道具 举报

您需要登录后才可以回帖 登录 | 立即注册

本版积分规则

装修百科|手机版|小黑屋|北京高老庄建筑装饰工程有限公司 ( 京ICP备19035109号 )

GMT+8, 2026-4-3 05:50 , Processed in 0.299619 second(s), 30 queries .

快速回复 返回顶部 返回列表