北京装修论坛 - 北京装修社区_高老庄工长装修

 找回密码
立即注册
热搜: 工长 设计 曝光
查看: 7675|回复: 15

【更新团购的主材在14楼】咩咩和喵喵的小屋装修日记——10万搞定147平旧居?从零开始写日记

[复制链接]

2

主题

12

帖子

52

积分

学前班

积分
52

社区居民

发表于 2014-7-4 11:01:01 | 显示全部楼层 |阅读模式
  喵喵爱卖萌,爱美食,爱笑,爱diy,双鱼座的浪漫梦想层出不穷;事业一直是做游戏:从语音游戏,到网络游戏,再到做幼儿游戏。
  咩咩很严肃,朋友很多,白羊座的信条是两点之间直线最短;现在做桌游。咩咩热爱自己的事业,每天早出晚归……
  2013年6月,喵喵和咩咩结婚了,婚礼一半是diy的:捧花,襟花,桌旗,拉花,婚鞋,戒枕,签到台……主持人也是从朋友中拽了一个,最终以3万的低价办了一个超级浪漫的婚礼。又漂亮又别致又便宜是喵喵的追求,咩咩呢负责配合喵喵,让试衣服就试衣服,让搬东西就搬东西,绝无二话,哈哈哈!
  2014年6月,咩咩父母的旧房即将空出,装修列入日程。当时喵喵和咩咩在五道口租房子住,一居室房租4200(不愧是大宇宙中心),厨卫超小,四处漏水,房子租期到11月,所以一定要在到期以前搬进新房子去,装修迫在眉睫,可是咩咩和喵喵,对装修还都是一窍不通啊!
  硬着头皮做计划吧!——
  6月  完成测量
  7月  上旬完成设计  定下水电改造  橱柜和门窗
      中旬开始约见并定下工长  定下水电改造方案  完成拆旧
     下旬开工,测量橱柜门窗  完成水电改造  购买主材
  8月  完成装修,最迟到9月

放几张我们参考的效果图吧!
20120920_3a4b47bf261e32181c38EIINpiIUdyeL.jpg
172013teu99vuvny19fcrn.jpg 5361780.jpg

  
  顺便放几张婚礼diy的物品
IMG_1718.jpg
IMG_2949.JPG
IMG_2870.JPG
IMG_2930.JPG
IMG_3226.JPG
回复

使用道具 举报

2

主题

12

帖子

52

积分

学前班

积分
52

社区居民

 楼主| 发表于 2014-7-4 11:02:54 | 显示全部楼层
整体说明:
    这是98年左右完成的楼盘,首次装修于2001年,7层中的第六层,没电梯(……555555),户型方正,3室2厅2卫1厨3阳台。其中2室1厅都朝南,两个阳台朝南,算是很好的格局。之前装修已经在卧室都铺了地板,但是厅里用的是红色地砖,又老又丑……两个厅都有一面墙打了整墙的柜子,也都用木架把暖气包起来了。厨卫的墙砖还都挺好的,虽然地砖被踩得惨痛了点……大阳台基本上完全都浪费了,就打了几个柜子,然后阳台是落地窗然后窗户变形,一下雨就会满阳台的水。事实上所有的窗户都漏水,木质的窗台全泡得很惨,这个问题全楼都有,所以是楼上的流到我们这,我们这再流到下层去……

    因为3年前租户刚刚刷过墙,所以我指望不要铲墙和墙面处理了。但是设计师量房的时候指着主卧和饭厅的顶墙问我:你确定吗……我一看哎呀都渗渗花了……

来个草稿户型图(朝向没改,按照现在的图纸是左边朝南)完稿的户型图会在今晚更新
四道口户型图2.jpg



预留电梯
回复

使用道具 举报

2

主题

12

帖子

52

积分

学前班

积分
52

社区居民

 楼主| 发表于 2014-7-4 11:15:58 | 显示全部楼层
    3个阳台,一个跨越了次卧和客厅,一个是主卧阳台,一个厨房阳台。因为是悬挂式阳台,三个阳台的隔断墙都不能拆,浪费啊浪费啊……阳台的改造是这次的重点,阳台能做的事情太多了:茶室,书房,游戏区,办公区……
    客厅的设计是另一个重点,喵喵和咩咩都是设计游戏的,决定把客厅做出娱乐+工作两功能,咩咩想要巨大的办公桌,喵喵想要舒适的沙发和电视前大空间用来玩xbox,而电视墙那边打好的整排柜子又不想动。所以很麻烦……
   第三个重点是厨房,厨房原本不小(7平),但是因为格局问题以及该死的阳台设计,实际用来放橱柜的地方只有3延米……咩咩和喵喵还想在里面放一个吧台,两人吃饭\茶点在这里。
   最后就是卫生间啦,这个房子原本的布局每个卫生间都有内外两部分,中间带隔断,太浪费了……喵喵想要感觉大大的卫生间和大大的浴缸!

    在所有问题之上  最大的问题是我们预算很少。原本只有5万,自从发现窗户漏水和顶墙泡水花了之后,自觉主动地加到了10万……
回复

使用道具 举报

6

主题

65

帖子

155

积分

小学毕业

积分
155

社区居民

发表于 2014-7-4 11:18:22 | 显示全部楼层
支持,前排占位
回复

使用道具 举报

3

主题

111

帖子

239

积分

小学毕业

积分
239

社区居民忠实会员

发表于 2014-7-4 11:39:18 | 显示全部楼层
顶。不过我觉得以楼主的要求10w肯定不够。。。
回复

使用道具 举报

2

主题

12

帖子

52

积分

学前班

积分
52

社区居民

 楼主| 发表于 2014-7-5 10:24:03 | 显示全部楼层
设计师的第一版设计方案出来了,这方案在咩咩看来,就是哪都不满意……
总之就是没有设计感……
喵喵也觉得太一般了,但是不知道怎么和设计师沟通,有点愁。
公公婆婆提醒我们阳台漏水问题不光是窗户造成的,还有楼层问题,貌似整个楼的防水都不行,楼上开个窗户就能把雨水漏到楼下来,总之至少客厅的大阳台,是不能当做不漏水来设计的……

a.jpg
回复

使用道具 举报

146

主题

4902

帖子

1万

积分

硕士毕业

积分
10281

社区居民忠实会员社区劳模最爱沙发社区明星

发表于 2014-7-5 16:29:00 | 显示全部楼层
改户型有瘾,,别当真,且看且过,
2_15315_60dc170984cd366.jpg
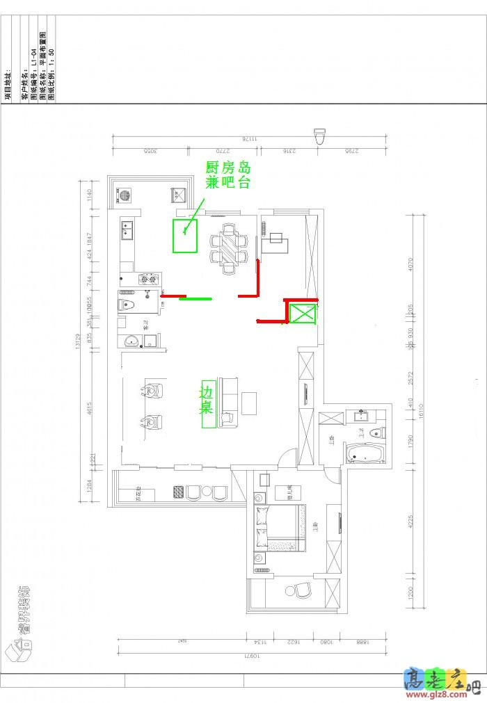
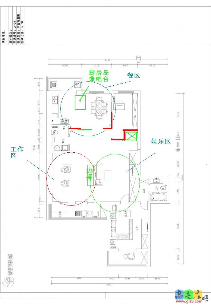
1,把餐桌放在厨房里,封闭式厨房也不差一个餐桌,这样,厨房空间变大,可以在餐桌及厨柜操作台之间安装一个厨房岛,兼做吧台和小操作台功能,真的很好用的,做饭的时候一回身也可以有台面操作,,一个人在做饭,另一位在台边坐着,也可以在餐桌边陪聊,最好,有个小电视,,把这个区域封闭上,也就不算是开放厨房了,
2,把一间卧室改掉,(如果改不了,那就算了,)
可以把工作室和客厅融为一体,宽敞,明亮,是楼主想要的感觉,,这样,双窗并排也有那种情调,
2_15315_60dc170984cd36600.JPG
把区域界定,能满足自己的需要,其它一些细节,桌子,书柜啊,沙发啊,这些,自己喜欢什么样的就用什么样的,无所谓配套,,自己的家,也不是给别人看的,,西式沙发配中式电视柜,自己喜欢就好,
回复

使用道具 举报

146

主题

4902

帖子

1万

积分

硕士毕业

积分
10281

社区居民忠实会员社区劳模最爱沙发社区明星

发表于 2014-7-5 16:56:10 | 显示全部楼层
才注意到,98年的房子,可能拆不了墙
回复

使用道具 举报

16

主题

666

帖子

1200

积分

大专毕业

积分
1200

社区居民

发表于 2014-7-5 19:23:03 | 显示全部楼层
觉得设计师的很差劲啊 厨房里还放个吧台 这是哪跟哪
回复

使用道具 举报

12

主题

198

帖子

445

积分

初中毕业

积分
445

社区居民

发表于 2014-7-5 21:52:21 | 显示全部楼层
我觉得10万真搞不定......
回复

使用道具 举报

您需要登录后才可以回帖 登录 | 立即注册

本版积分规则

装修百科|手机版|小黑屋|北京高老庄建筑装饰工程有限公司 ( 京ICP备19035109号 )

GMT+8, 2026-4-3 02:58 , Processed in 0.237580 second(s), 31 queries .

快速回复 返回顶部 返回列表