北京装修论坛 - 北京装修社区_高老庄工长装修

 找回密码
立即注册
热搜: 工长 设计 曝光
查看: 3881|回复: 0

[装修讨论] 新出炉的报价单和设计图—求指导!

[复制链接]

1

主题

3

帖子

18

积分

学前班

积分
18

社区居民

发表于 2014-7-4 20:03:42 | 显示全部楼层 |阅读模式
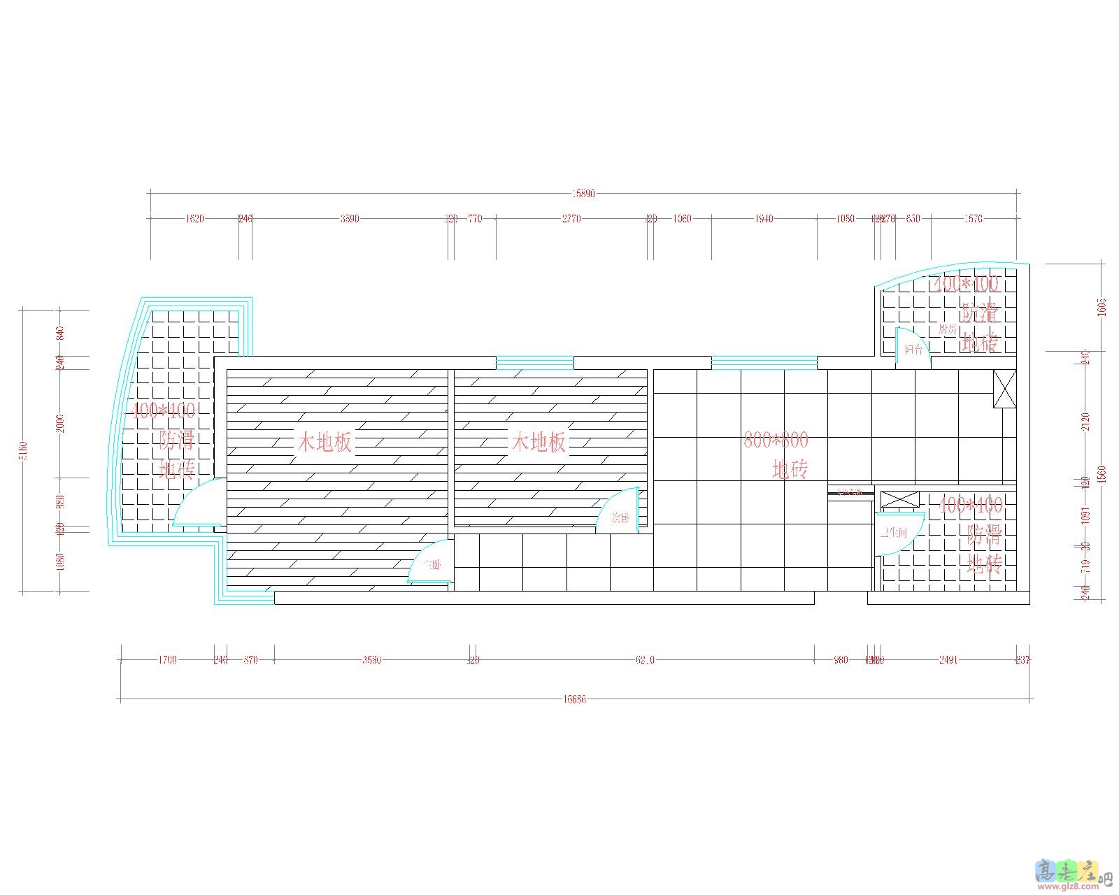
hi,我是老庄吧的新人,之前偶尔学习过几段时间,后来耽搁了。现在马上就要定下装修施工队和设计图了,才又着急起来。

附件是我在工长的报价单上,做的基础备注,需要跟工长确认,并砍下价格;
附件2.3分别是之前跟工长沟通的设计图。

辛苦各位,给些建议哈。

1.分项报价高的和北京现在的大概价位;
2.报价中缺少的,需要我提前跟工长明确的;
3.其他我要注意的。

所有的备注都是边在这里学习,边加到备注中,希望各位多提些建议和意见,小女子不胜感激。
陈工报价.xlsx (15.63 KB, 下载次数: 42) 000123.jpg 000012.jpg
回复

使用道具 举报

您需要登录后才可以回帖 登录 | 立即注册

本版积分规则

装修百科|手机版|小黑屋|北京高老庄建筑装饰工程有限公司 ( 京ICP备19035109号 )

GMT+8, 2026-4-3 05:47 , Processed in 0.137236 second(s), 28 queries .

快速回复 返回顶部 返回列表