北京装修论坛 - 北京装修社区_高老庄工长装修

 找回密码
立即注册
热搜: 工长 设计 曝光
楼主: 三秋和丸子

有数据的户型图~求设计师设计!

[复制链接]

2

主题

13

帖子

40

积分

学前班

积分
40

社区居民

 楼主| 发表于 2014-7-17 10:38:25 | 显示全部楼层

回 8楼(燕少飞) 的帖子

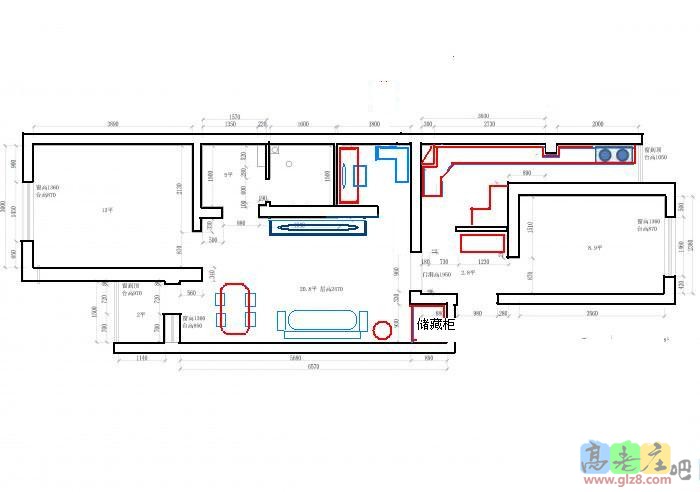
燕少飞:其实!还好,比较紧凑,没太多浪费空间。就按原户型布置挺好,
厨房和餐厅的墙,图上显示是承重墙,如果是红砖砌的,可以逃出厨房的门。
电视墙做投影???貌似间距小点,还是不建议做了。 (2014-07-17 00:41) 
太谢谢您了~~您看厨房旁边的空间能做餐厅吗 是不是太窄了?
回复

使用道具 举报

2

主题

13

帖子

40

积分

学前班

积分
40

社区居民

 楼主| 发表于 2014-7-17 10:39:26 | 显示全部楼层

回 8楼(燕少飞) 的帖子

燕少飞:其实!还好,比较紧凑,没太多浪费空间。就按原户型布置挺好,
厨房和餐厅的墙,图上显示是承重墙,如果是红砖砌的,可以逃出厨房的门。
电视墙做投影???貌似间距小点,还是不建议做了。 (2014-07-17 00:41) 
书房(电脑桌)的功能安置在什么位置呢??
回复

使用道具 举报

0

主题

107

帖子

1127

积分

禁止发言

积分
1127

社区居民

QQ
发表于 2014-7-18 21:52:09 | 显示全部楼层

回 10楼(三秋和丸子) 的帖子

三秋和丸子:太谢谢您了~~您看厨房旁边的空间能做餐厅吗 是不是太窄了? (2014-07-17 10:38) 
有点小。不过勉强可以放下
签名被屏蔽
回复

使用道具 举报

0

主题

107

帖子

1127

积分

禁止发言

积分
1127

社区居民

QQ
发表于 2014-7-18 21:53:26 | 显示全部楼层

回 11楼(三秋和丸子) 的帖子

三秋和丸子:书房(电脑桌)的功能安置在什么位置呢?? (2014-07-17 10:39) 
沙发右边可以考虑
签名被屏蔽
回复

使用道具 举报

0

主题

74

帖子

170

积分

小学毕业

积分
170

社区居民

发表于 2014-7-26 14:37:04 | 显示全部楼层
看看.JPG
回复

使用道具 举报

您需要登录后才可以回帖 登录 | 立即注册

本版积分规则

装修百科|手机版|小黑屋|北京高老庄建筑装饰工程有限公司 ( 京ICP备19035109号 )

GMT+8, 2026-4-2 22:10 , Processed in 1.062943 second(s), 27 queries .

快速回复 返回顶部 返回列表