北京装修论坛 - 北京装修社区_高老庄工长装修

 找回密码
立即注册
热搜: 工长 设计 曝光
查看: 11850|回复: 46

89㎡旧房装修前后(照片),愿后来者居上!

[复制链接]

6

主题

139

帖子

299

积分

小学毕业

积分
299

社区居民

发表于 2014-7-22 10:14:25 | 显示全部楼层 |阅读模式
2014-3-26开始装修
2014-6-30结束装修
总计花费:200,000。
历时三个月,疲惫但感慨良多,在老庄吧里深受裨益,觉得应该把自己的所见所闻所感写下来,供他人参考,也算对老庄吧的一个回馈。

注:本人是个“苛刻"的业主,吐槽就重不就轻,望各位利益相关群体一笑而过。

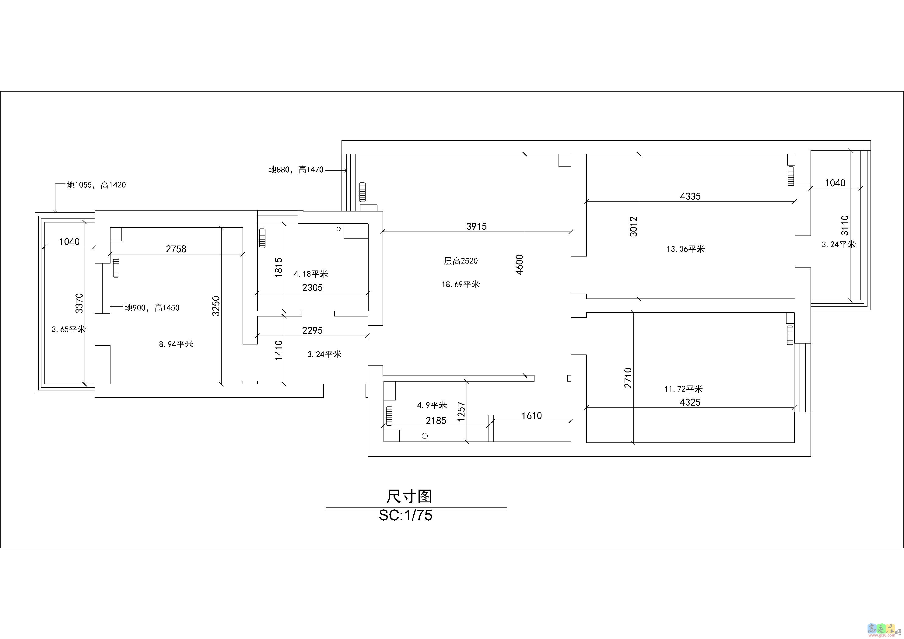
先上户型图:
尺寸图.jpg


先说工长和设计师:
没赶上老庄组织下的工长,很遗憾。我家轻工辅料最终38500,总体来说,价格偏高,给我工作的工长
优点是:河南人,年轻,比较靠谱,易沟通。
缺点:太忙。
建议:找个踏实点的工长,离家近些,既然打算不找装修公司,就找那种彻彻底底的工长,能花大力气在你家里呆着的。这工长是老庄吧里的,不方便直接说姓名,有需要的私信我。

设计师:也是吧里的
本人第一次装修,因为各方面都很陌生,所以找个设计师引引路,当然,这个引路的费用比较高:8000。
这三个月走过来,发现:
1.如果你是一个自己有些想法的业主,
2.如果你家不装别墅,面积不大的话,
找个蛋啊!
找设计师还不如找个监理呢!一个好的工长,装你一个200平米一下的小家足够了,自己网上多搜索些素材,让工长看看能不能实现,足矣。
不过,在此需要说明,我跟本次合作的设计师关系还是很不错的,他人也不错。
给我做的效果图:
IMG_3066.JPG IMG_3065.JPG
IMG_3076.JPG



老庄吧里团购了这些:
伟星水电
瀛彩壁纸
大师漆
皇家森林地板
一木缘橱柜
柏迪衣柜
老板电器
伊博莱窗
步阳门
依品木门
暂时想起来这些,一一评价:

伟星水电: 师傅不错!虽然现在这些水电公司都是外包个师傅做。不过还是可以的。
瀛彩壁纸:不错,性价比不赖
伊博莱窗:唉!真想骂一句....我持保留意见。自从装好,现在我做的工作是:等待北京的大风大雨天给我检验,然后给他们打电话,让他们上门修。不过,他们负责老庄吧里的姑娘人态度总是挺好,所以暂时不爆图。
大师漆:不错!
皇家森林地板:中间过程曲折,结果不错!赞!
一木缘橱柜:服务好!质量棒!没的说!排名第一!
柏迪衣柜:跟一木缘并列第一!
老板电器:赞!
步阳门:门的质量单薄,一般,可能是我买的这个型号不好的原因吧。
依品木门:不错!!我心中排名第二,不错!



二手装修,旧房图:

客厅未来电视墙位置

客厅未来电视墙位置

客厅南墙

客厅南墙

客厅北墙

客厅北墙

客厅南墙2

客厅南墙2

三卧

三卧

主卧

主卧

次卧

次卧

卫生间1

卫生间1

卫生间2

卫生间2

卫生间3

卫生间3
回复

使用道具 举报

6

主题

139

帖子

299

积分

小学毕业

积分
299

社区居民

 楼主| 发表于 2014-7-22 10:33:08 | 显示全部楼层
装修过程中部分图片:
伟星水电:

水材

水材

伟星

伟星

伟星

伟星

伟星

伟星
IMG_3153.JPG IMG_3180.JPG IMG_3178.JPG IMG_3177.JPG



工长找的木工师傅不错,关键是人好:

电视背景墙施工中

电视背景墙施工中
IMG_3358.JPG IMG_3360.JPG IMG_3361.JPG IMG_3359.JPG
瀛彩壁纸,各方面可以,性价比路线:

主卧背景墙施工中

主卧背景墙施工中


三卧背景墙施工中

三卧背景墙施工中





万事大吉后的部分图:


一木缘的和皇家森林的

一木缘的和皇家森林的


IMG_0317.JPG
IMG_0324.JPG

IMG_0327.JPG

IMG_0329.JPG

IMG_0435.JPG

IMG_0436.JPG IMG_0440.JPG

IMG_0437.JPG IMG_0442.JPG IMG_0443.JPG

IMG_0474.JPG IMG_0642.JPG IMG_0452.JPG

IMG_0644.JPG
再装饰的话......随心所欲,不逾矩即可!

IMG_0476.JPG


IMG_0657.JPG


IMG_0658.JPG
IMG_3150.JPG
IMG_3179.JPG
IMG_3181.JPG
IMG_0318.JPG
IMG_0439.JPG
IMG_0441.JPG
IMG_0641.JPG
IMG_0643.JPG
回复

使用道具 举报

9

主题

279

帖子

1323

积分

大专毕业

积分
1323

社区居民

发表于 2014-7-22 10:52:01 | 显示全部楼层
不错,活都挺好!
回复

使用道具 举报

6

主题

139

帖子

299

积分

小学毕业

积分
299

社区居民

 楼主| 发表于 2014-7-22 10:58:35 | 显示全部楼层

回 2楼(stefaniedu) 的帖子

stefaniedu:不错,活都挺好! (2014-07-22 10:52) 
回复

使用道具 举报

9

主题

279

帖子

1323

积分

大专毕业

积分
1323

社区居民

发表于 2014-7-22 10:59:41 | 显示全部楼层

回 3楼(silencezx007) 的帖子

silencezx007: (2014-07-22 10:58) 
岔气了
回复

使用道具 举报

10

主题

83

帖子

196

积分

小学毕业

积分
196

社区居民

发表于 2014-7-22 12:47:07 | 显示全部楼层
楼主家客厅和卧室的灯在哪买的啊?很喜欢!
回复

使用道具 举报

5

主题

200

帖子

2081

积分

大专毕业

积分
2081

社区居民忠实会员

发表于 2014-7-22 12:51:41 | 显示全部楼层

回 1楼(silencezx007) 的帖子

不错好漂亮的
回复

使用道具 举报

4

主题

397

帖子

834

积分

高中毕业

积分
834

社区居民

发表于 2014-7-22 12:57:25 | 显示全部楼层
楼主,阳台做的是什么,能给个整体图吗?
回复

使用道具 举报

6

主题

139

帖子

299

积分

小学毕业

积分
299

社区居民

 楼主| 发表于 2014-7-22 14:01:16 | 显示全部楼层

回 6楼(幸福的嘟嘟) 的帖子

幸福的嘟嘟:不错好漂亮的
 (2014-07-22 12:51) 
回复

使用道具 举报

6

主题

139

帖子

299

积分

小学毕业

积分
299

社区居民

 楼主| 发表于 2014-7-22 14:08:22 | 显示全部楼层

回 5楼(狸狸萝) 的帖子

狸狸萝:楼主家客厅和卧室的灯在哪买的啊?很喜欢! (2014-07-22 12:47) 
http://detail.tmall.com/item.htm ... &_u=min2hb421e2
回复

使用道具 举报

您需要登录后才可以回帖 登录 | 立即注册

本版积分规则

装修百科|手机版|小黑屋|北京高老庄建筑装饰工程有限公司 ( 京ICP备19035109号 )

GMT+8, 2026-4-2 17:59 , Processed in 0.464312 second(s), 29 queries .

快速回复 返回顶部 返回列表