北京装修论坛 - 北京装修社区_高老庄工长装修

 找回密码
立即注册
热搜: 工长 设计 曝光
查看: 3010|回复: 4

帮我看下平面布置图和吊顶图

[复制链接]

4

主题

27

帖子

72

积分

学前班

积分
72

社区居民

发表于 2014-7-24 11:41:21 | 显示全部楼层 |阅读模式
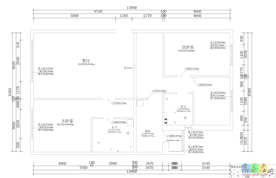
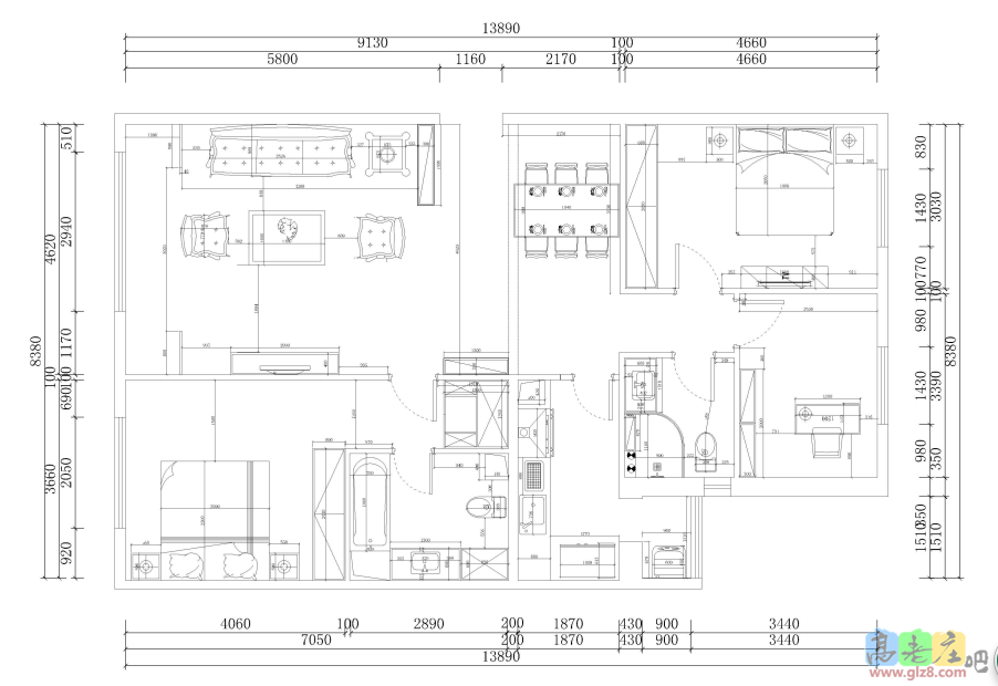
设计师给出的平面布置图、家具尺寸图和吊顶图,请各位有经验的亲多提宝贵意见,多谢!!

平面图

平面图

家具布置图

家具布置图

吊顶图

吊顶图
回复

使用道具 举报

4

主题

27

帖子

72

积分

学前班

积分
72

社区居民

 楼主| 发表于 2014-7-24 11:43:23 | 显示全部楼层
图片4.png
回复

使用道具 举报

481

主题

1万

帖子

5万

积分

博士毕业

积分
52600

社区居民优秀斑竹宣传大使最爱沙发社区劳模社区明星忠实会员

发表于 2014-7-24 11:51:56 | 显示全部楼层
挺合理的,厨卫吊顶一般是铝扣板吊顶。
回复

使用道具 举报

4

主题

27

帖子

72

积分

学前班

积分
72

社区居民

 楼主| 发表于 2014-7-24 12:38:03 | 显示全部楼层
好的,多谢暴雪,您总是第一时间回复!
回复

使用道具 举报

4

主题

27

帖子

72

积分

学前班

积分
72

社区居民

 楼主| 发表于 2014-7-24 18:40:42 | 显示全部楼层

回 4楼(发神经) 的帖子

发神经:呵呵,设计画了米米了吗?贵不贵 (2014-07-24 14:46)
设计目前图还没出完,30元/平米,花了大概4400元。总体来讲,设计没啥设计思路,总体都是我跟老公的设计,她负责出图。干私活,时间上貌似很难保证。
回复

使用道具 举报

您需要登录后才可以回帖 登录 | 立即注册

本版积分规则

装修百科|手机版|小黑屋|北京高老庄建筑装饰工程有限公司 ( 京ICP备19035109号 )

GMT+8, 2026-4-2 22:06 , Processed in 0.248126 second(s), 29 queries .

快速回复 返回顶部 返回列表