北京装修论坛 - 北京装修社区_高老庄工长装修

 找回密码
立即注册
热搜: 工长 设计 曝光
查看: 5789|回复: 17

自己设计的橱柜,大家看看合理吗?

[复制链接]

17

主题

237

帖子

552

积分

初中毕业

积分
552

社区居民

发表于 2014-8-21 22:31:42 | 显示全部楼层 |阅读模式
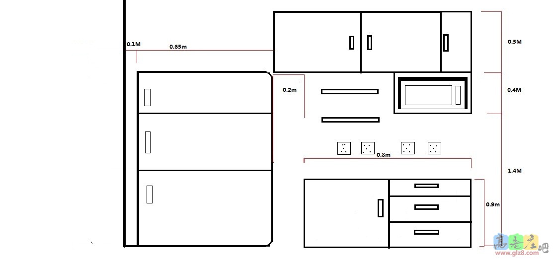
橱柜打算搞吸塑,简欧风格。

图是随心画的,总尺寸肯定没错,就是柜门可否开那么大?柜子能不能这么装?完全是凭感觉

请帮忙给看看有何不妥?

厨房比较麻烦,是个L形,具体如下图:
搜狗截图20140821222427.png

由于直线只有2.45米,所以打算把橱柜拆成A\B两个部分

下面是A部分的设计:
橱柜a.jpg
为了让洗衣机在两个橱柜之间,这样只收台面费。
但洗衣机60CM宽,水槽有50CM宽,不知这样设计是否合适?

接下来是B部分橱柜:
橱柜b.jpg
不知道自己设置的尺寸是否能做?
元气
回复

使用道具 举报

17

主题

237

帖子

552

积分

初中毕业

积分
552

社区居民

 楼主| 发表于 2014-8-21 23:38:21 | 显示全部楼层
元气
回复

使用道具 举报

103

主题

1296

帖子

2861

积分

大专毕业

积分
2861

社区居民

发表于 2014-8-22 02:03:27 | 显示全部楼层
水槽柜宽度只有0•6m,水槽是0•5m?
洗衣机放厨房灶台傍边,需要勤打理吧,使用时还要小心衣服蹭上油烟。
反正也需要储物空间,这块地方不做也要别的地方做,真能省钱吗?
回复

使用道具 举报

26

主题

381

帖子

838

积分

高中毕业

积分
838

社区居民忠实会员

发表于 2014-8-22 05:58:33 | 显示全部楼层
吊柜柜门做成上掀式吧,免得碰头。
回复

使用道具 举报

146

主题

4902

帖子

1万

积分

硕士毕业

积分
10281

社区居民忠实会员社区劳模最爱沙发社区明星

发表于 2014-8-22 07:34:29 | 显示全部楼层
一,2楼说得对,洗衣机放到B区,冰箱的深度一般是600,足够洗衣机的深度,都不用超溥的,,
二,A区的洗衣机的地方就可以放抽屉,这样方便操作,
三,灶具一般是700长,但一定要距墙最少要200,图中看空间没有问题
四,水槽如果可能的话,距墙也要留点距离,300左右比较合适,,因为一般在洗涮时,两边都有台面是很方便的,
五,冰箱尺寸可以先确定下来,,因为一般冰箱的高度在1700左右,,上面也可以作吊柜,但你图的吊柜位置有点高,可以往下移,图中的吊柜是500高,还要以做到700-900之间,看棚顶的位置确定.微波炉高度在1350左右是合适的,自己可以试试,,,太高了,往下端热好的东西不安全,不可以举过头顶,,除非你有2000高.
2_15807_631301ae546d211.jpg
回复

使用道具 举报

22

主题

1233

帖子

2554

积分

大专毕业

积分
2554

社区居民最爱沙发

发表于 2014-8-22 09:11:10 | 显示全部楼层
楼主肯定是考虑到下水的位置。
感觉不是L型,拐弯儿的部分如果在窗户一侧更漂亮。
回复

使用道具 举报

22

主题

1233

帖子

2554

积分

大专毕业

积分
2554

社区居民最爱沙发

发表于 2014-8-22 09:12:48 | 显示全部楼层
如果下水位置可以改,可以考虑把水槽和洗衣机放在窗下,冰箱放在厨房门口。
回复

使用道具 举报

20

主题

265

帖子

590

积分

初中毕业

积分
590

社区居民

发表于 2014-8-22 09:49:11 | 显示全部楼层
冰箱和饮水机上面可以做吊柜吧。这样可以多一点储物空间
回复

使用道具 举报

17

主题

237

帖子

552

积分

初中毕业

积分
552

社区居民

 楼主| 发表于 2014-8-22 11:50:09 | 显示全部楼层

回 2楼(徐宝222) 的帖子

徐宝222:水槽柜宽度只有0•6m,水槽是0•5m?
洗衣机放厨房灶台傍边,需要勤打理吧,使用时还要小心衣服蹭上油烟。
反正也需要储物空间,这块地方不做也要别的地方做,真能省钱吗?


....... (2014-08-22 02:03)
水槽是58CM的,但给它的台面只有60CM。。。。这点我不知成不成。
原本洗衣机位置的抽屉,移动到了B部分,B部分那里原本是想放洗衣机的,但单起一个台面,据说要收柜体的钱,上千,但目前这样洗衣机那块就只收台面的钱了
元气
回复

使用道具 举报

17

主题

237

帖子

552

积分

初中毕业

积分
552

社区居民

 楼主| 发表于 2014-8-22 11:51:59 | 显示全部楼层

回 7楼(xhqytutu) 的帖子

xhqytutu:冰箱和饮水机上面可以做吊柜吧。这样可以多一点储物空间
(2014-08-22 09:49)
我也有这个考虑,就是看上的冰箱高1。8M,吊柜只能做0.45M高的了,在犹豫是否能用?
元气
回复

使用道具 举报

您需要登录后才可以回帖 登录 | 立即注册

本版积分规则

装修百科|手机版|小黑屋|北京高老庄建筑装饰工程有限公司 ( 京ICP备19035109号 )

GMT+8, 2026-4-2 02:47 , Processed in 0.339067 second(s), 29 queries .

快速回复 返回顶部 返回列表