北京装修论坛 - 北京装修社区_高老庄工长装修

 找回密码
立即注册
热搜: 工长 设计 曝光
查看: 10695|回复: 23

精彩装修图片《☆☆沉静之光,寂静的午后☆☆【西溪里】140方,有家的温馨》

[复制链接]

440

主题

7778

帖子

1万

积分

硕士毕业

积分
17687

社区居民原创达人社区劳模最爱沙发

发表于 2012-5-14 11:48:45 | 显示全部楼层 |阅读模式
精彩装修图片转帖第340篇: 《☆☆沉静之光,寂静的午后☆☆【西溪里】140方,有家的温馨》
原日记来源:19楼
原作者:苍白十四色

老庄推荐原因:又一个混搭作品,美式+地中海+简约等,混搭风最好的好处就是可以把自己喜欢的元素都搭进去,选择性更强。
6_41_b40d4157d366f21.jpg
回复

使用道具 举报

440

主题

7778

帖子

1万

积分

硕士毕业

积分
17687

社区居民原创达人社区劳模最爱沙发

 楼主| 发表于 2012-5-14 11:52:05 | 显示全部楼层
寂静的午后,沉静之光
                                        ------- 家的毕业之作


    世界上最幸福的事除了求得一心人白首不相离,也许还有一种爱,叫心灵相通,也许是因为我们的品味如此惊人的相似,我们才有如此灵犀的契合。从遇见你开始,我相信了原来真的有灵魂伴侣,我的心从这一刻,开始终于不用再流浪。

   清晨,日光倾泻而下,木质的地板和古朴桌椅令人情绪变得宁静、温和,坐在古色古香木质高脚椅上,喝一杯清咖,吃一份可口的早餐,看一册中意的时尚杂志,新的一天,心情跟随着阳光渐渐升冉。
  
    午后,倾听着轻音乐,在满室绿意盎然植物陪伴下,与三五好友小聚,我们或席地而坐或缱绻在沙发一角聊天畅谈,“家”的生活在温暖的阳光下尽情的绽放!
     

   夜晚,温柔和煦的晚风,园中弥漫着香草清新的气息。月光如水般亲吻肌肤,倒两杯红酒,然后与他,静静地坐在摇椅上仰望无垠夜空里漫天星辰,偶尔很有默契般相视一笑,生活似乎有了别样的诗意,让人如痴如醉,很喜欢这一刻这一方恬淡的私人空间,为自己及家人营造出一个美丽惬意的自由天地。
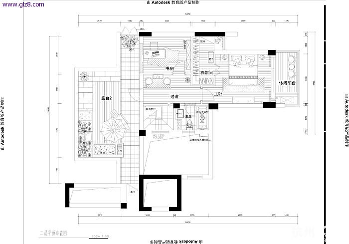
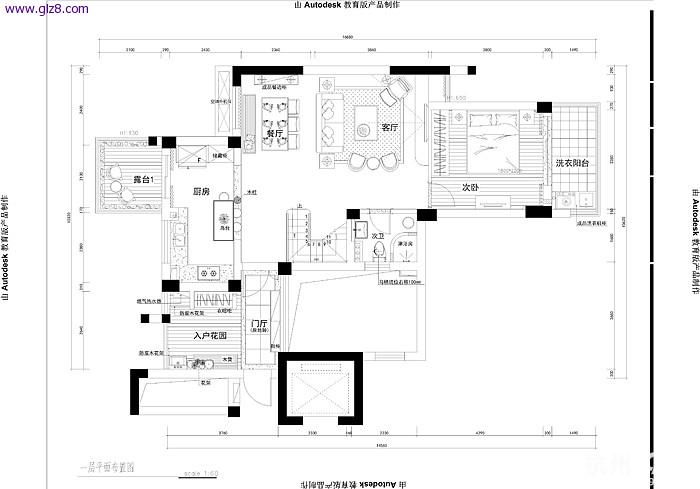
【小区楼盘】西溪里 瑾园
【设计风格】休闲混搭~
【面积】140㎡

古色古香的花瓶,异域风情的西班牙罐子,大自然的花草藤木,带着海洋味道的小木箱以及贝壳,古朴的木茶几,桌椅,复古的柜子摇椅,现代时尚的灯具…,一切生活中的美好伴随着阿黛儿美妙的音乐,坐上摇椅梦回,简简单单的一种享受。
一直很想说,今天能如此轻松惬意的喜爱着这一切,打造出我以及家人很满意的新家,不得不感谢设计师,真的为我们付出了太多!从始至终一直很用心陪着我去布置我们的家,表达出我要的感觉,大如沙发,小如一只玻璃瓶,那些即古朴又奢华的吊灯,那些别致的小饰品,那些有特色的壁灯,还有转角处不经意又有自己的个性的植物,都是我们的心血,一点点去布置,一直要淘到满意为止。而设计师的眼光是精准和毒辣的,总能在各式我纠结的样式中挑出与家里协调的风格来。
middle_142959_doaddmmu_387c0ca1c06de302c1e5f8f83cb53428.jpg
middle_143041_doaddmmu_0d9add5009ac44ebe10cfb39219890b2.jpg
回复

使用道具 举报

440

主题

7778

帖子

1万

积分

硕士毕业

积分
17687

社区居民原创达人社区劳模最爱沙发

 楼主| 发表于 2012-5-14 14:38:30 | 显示全部楼层
墨绿色的摇椅,镂空的蓝色小凳
大牡丹图案的朱红圆鼓凳,咋一眼很突兀的酒红色沙发椅
也许我们家最有特色的是各式各样的椅凳了,有着自己的个性,却又很和谐的随意协调在一起
但素色的沙发原木的茶几还有头顶那盏古色古香的吊灯不抢眼又让人无法忽视它们的存在
middle_144336_doaddmmu_dabe4fdbcbba099505db243eaa9e508b.jpg

回复

使用道具 举报

440

主题

7778

帖子

1万

积分

硕士毕业

积分
17687

社区居民原创达人社区劳模最爱沙发

 楼主| 发表于 2012-5-14 14:41:11 | 显示全部楼层
middle_144320_doaddmmu_efaedd4fd0ac5a4cc77c43b38885d408.jpg


middle_144358_doaddmmu_0a866ecde84592b6b95705cdc378c22b.jpg


middle_093047_doaddmmu_c03e2b2e1b01802cab43027a52d8dd88.jpg
回复

使用道具 举报

440

主题

7778

帖子

1万

积分

硕士毕业

积分
17687

社区居民原创达人社区劳模最爱沙发

 楼主| 发表于 2012-5-14 14:46:17 | 显示全部楼层
middle_144514_doaddmmu_c4b267dbc9acdede5bae96afc02fd142.jpg


middle_144031_doaddmmu_87e9eacde58faa50be6780acad4b83ef.jpg
回复

使用道具 举报

440

主题

7778

帖子

1万

积分

硕士毕业

积分
17687

社区居民原创达人社区劳模最爱沙发

 楼主| 发表于 2012-5-14 14:58:23 | 显示全部楼层
大大的海螺壁灯,是否有了沙滩海岸边屋子的错觉呢
      远处头顶那柔亮的灯光,墙角盎然的绿色,自然随意温暖


middle_144722_doaddmmu_6d3438bdc867eeefde878511f45ca9bf.jpg


middle_144743_doaddmmu_779ed02c5ea4b73fb82addacb4863656.jpg
回复

使用道具 举报

440

主题

7778

帖子

1万

积分

硕士毕业

积分
17687

社区居民原创达人社区劳模最爱沙发

 楼主| 发表于 2012-5-14 15:00:12 | 显示全部楼层
又来了,餐厅,每一把不一样有特色的椅子,不一样的颜色,小小的样式区别
                       家人总能在各式椅子里找到自己最喜欢的那一把
                   看到透亮而漂亮的窗帘了吗,辉映着窗外湛蓝,像大海里翻腾着的波浪花
middle_144923_doaddmmu_5f37ff2add942494abef947d4f4c4703.jpg

middle_093242_doaddmmu_5a659e95e38938cbd53a746cbf916d21.jpg
回复

使用道具 举报

440

主题

7778

帖子

1万

积分

硕士毕业

积分
17687

社区居民原创达人社区劳模最爱沙发

 楼主| 发表于 2012-5-14 15:01:51 | 显示全部楼层
厨房,沙色地砖,蓝色百叶窗,像不像踩在沙滩上?
      设计师说,特意设计出犹如踩在地中海沙滩上的感觉,厨房如此累人的地方当然要轻松氛围咯

middle_145214_doaddmmu_d3de209f46947366270e70e83ff63c7d.jpg
回复

使用道具 举报

440

主题

7778

帖子

1万

积分

硕士毕业

积分
17687

社区居民原创达人社区劳模最爱沙发

 楼主| 发表于 2012-5-14 16:02:11 | 显示全部楼层
middle_145114_doaddmmu_7750b1feca0e13b75942e9b17752a310.jpg

middle_145233_doaddmmu_4a7038b2398d5d9d2971c8d9c3e581f0.jpg


middle_093612_doaddmmu_68149e752579b1e64d9f8aec5e40544e.jpg
回复

使用道具 举报

440

主题

7778

帖子

1万

积分

硕士毕业

积分
17687

社区居民原创达人社区劳模最爱沙发

 楼主| 发表于 2012-5-14 16:42:00 | 显示全部楼层
middle_145328_doaddmmu_5072a00d4aa5722735e2aa57889df0b3.jpg


middle_145343_doaddmmu_e4fcb42bfd80484292332d353d17c36b.jpg
回复

使用道具 举报

您需要登录后才可以回帖 登录 | 立即注册

本版积分规则

装修百科|手机版|小黑屋|北京高老庄建筑装饰工程有限公司 ( 京ICP备19035109号 )

GMT+8, 2026-4-1 07:09 , Processed in 0.489999 second(s), 37 queries .

快速回复 返回顶部 返回列表