北京装修论坛 - 北京装修社区_高老庄工长装修

 找回密码
立即注册
热搜: 工长 设计 曝光
查看: 7662|回复: 15

我的装修:装修设计之户型改造

[复制链接]

19

主题

118

帖子

317

积分

初中毕业

积分
317

社区居民原创达人

发表于 2014-9-2 12:08:42 | 显示全部楼层 |阅读模式
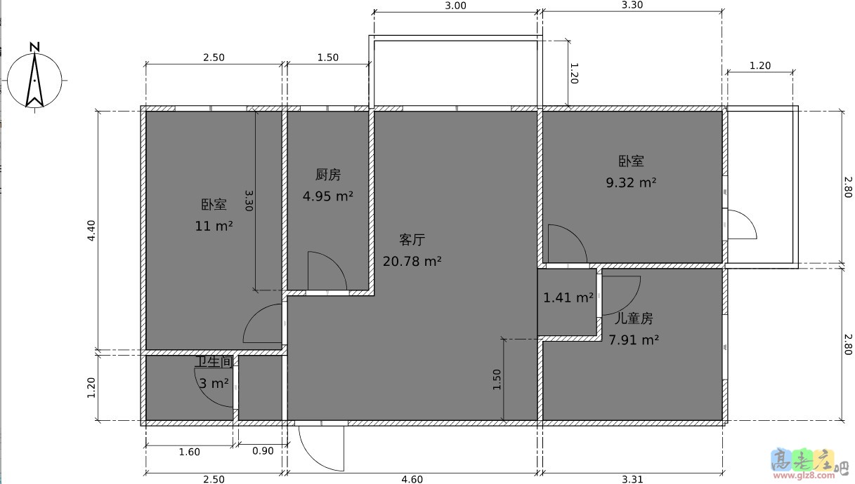
二手房,还没拿到钥匙就迫不及待的开始设计了,测量的数据还是之前看房时简单量的,不是很准确。

房子的原始格局还是挺满意的,如下图:

改前

改前


对于原格局有两个地方想改一下:
1. 改成干湿分离
    主要是早上经常抢厕所,所以想将洗漱和马桶分开。
2. 移动卧室和儿童房的门,使客厅2面墙都比较完整。
   客厅有一面墙不完整,没法摆放电视。
   因此想将卧室的移动以下。
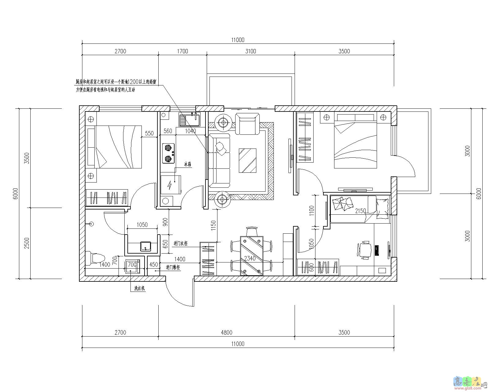
初步的改动想法如下图:

改后

改后

干湿分离后,洗漱区外面就不要门了。
有2面墙可以开儿童房的门,想了想开在南北向的墙上比较好一些:
1.5m的区域可以放床,书桌可以房到窗户旁。

大家看看如何,有没有不妥当的地方,有没有更好的改动方案?
回复

使用道具 举报

0

主题

2

帖子

14

积分

学前班

积分
14

社区居民

发表于 2014-9-2 12:27:30 | 显示全部楼层
不要着急,拿了钥匙,找个专业人士帮您测量一下
回复

使用道具 举报

0

主题

2

帖子

14

积分

学前班

积分
14

社区居民

发表于 2014-9-2 12:32:11 | 显示全部楼层
如果设计户型改动,就要大动了,
回复

使用道具 举报

481

主题

1万

帖子

5万

积分

博士毕业

积分
52600

社区居民优秀斑竹宣传大使最爱沙发社区劳模社区明星忠实会员

发表于 2014-9-2 14:04:16 | 显示全部楼层
楼主可以参加论坛的装修日记大赛哦,只要跟贴报名即可,什么也不要改变。如果购买的是高老庄团购的商品,商家就会提供现金回馈。呵呵,高老庄在变着法子,让大家省点钱。嘿嘿。

[装修日记]2014年度『诺贝尔』记录艰辛装修历程,留下幸福美好回忆,装修日记大赛说明和报名贴,请跟帖报名!! http://bbs.glz.cn/read.php?tid-17979.html
回复

使用道具 举报

0

主题

14

帖子

38

积分

学前班

积分
38

社区居民

发表于 2014-9-4 19:04:01 | 显示全部楼层
Dear,请短一个你家的工长电话吧,谢谢啦
回复

使用道具 举报

1

主题

70

帖子

287

积分

小学毕业

积分
287

社区居民

发表于 2014-9-9 14:53:02 | 显示全部楼层
改动图面上可行,需要核实下墙体是否可以开洞
这个户型的特点是每个房间的面积都不大,但是房间数量不少,经济实用型的
我觉得要注意的是家具和电器一定要注意实际尺寸,尽量选购小巧精致的,这样搭配起来比较合理。
布置的几个建议
1、入户门的右侧可以做个到顶的柜子,起到遮挡视线的作用。柜子和儿童房之间的位置正好可以布置餐桌。
2、客厅宽度3米有点小,电视可以设置在卧室一边,并采用壁挂方式,以尽量加大电视与沙发间的距离。
3、整套房子,缺能布置洗衣机的位置,看看客厅的阳台靠近厨房一侧有无下水管,如果有的话,可从厨房引一根上水管,在阳台放置洗衣机。
4、厨房1.5米宽,是贴完瓷砖的尺寸吗?建议做曲尺形的台面,修改下厨房门的位置,冰箱可以放置在厨房入口位置。冰箱另一个选择是放置在餐桌的旁边,入户柜的附近。
5、卫生间盥洗拿出来没问题,但是台面一定要选深度比较浅的,要不然进卫生间的空间不够。
回复

使用道具 举报

24

主题

1万

帖子

2万

积分

硕士毕业

积分
20710

社区居民最爱沙发忠实会员社区劳模社区明星

发表于 2014-9-15 11:45:58 | 显示全部楼层

回 5楼(负极) 的帖子

负极:改动图面上可行,需要核实下墙体是否可以开洞
这个户型的特点是每个房间的面积都不大,但是房间数量不少,经济实用型的
我觉得要注意的是家具和电器一定要注意实际尺寸,尽量选购小巧精致的,这样搭配起来比较合理。
布置的几个建议
1、入户门的右侧可以做个到顶的柜子,起到遮挡 .. (2014-09-09 14:53) 
这个点评和建议是很到位的,门口确实要放一个屏风或者实用性的多宝柜挡住与餐厅的视线,进行空间区隔。
回复

使用道具 举报

19

主题

118

帖子

317

积分

初中毕业

积分
317

社区居民原创达人

 楼主| 发表于 2014-9-15 20:31:08 | 显示全部楼层

回 5楼(负极) 的帖子

负极:改动图面上可行,需要核实下墙体是否可以开洞
这个户型的特点是每个房间的面积都不大,但是房间数量不少,经济实用型的
我觉得要注意的是家具和电器一定要注意实际尺寸,尽量选购小巧精致的,这样搭配起来比较合理。
布置的几个建议
1、入户门的右侧可以做个到顶的柜子,起到遮挡 .. (2014-09-09 14:53) 
谢谢您的建议,室内没有承重墙。
回复

使用道具 举报

19

主题

118

帖子

317

积分

初中毕业

积分
317

社区居民原创达人

 楼主| 发表于 2014-9-15 20:37:03 | 显示全部楼层

回 5楼(负极) 的帖子

负极:改动图面上可行,需要核实下墙体是否可以开洞
这个户型的特点是每个房间的面积都不大,但是房间数量不少,经济实用型的
我觉得要注意的是家具和电器一定要注意实际尺寸,尽量选购小巧精致的,这样搭配起来比较合理。
布置的几个建议
1、入户门的右侧可以做个到顶的柜子,起到遮挡 .. (2014-09-09 14:53) 
厨房1.5米宽,是贴完瓷砖的尺寸。原有的白色瓷砖,不打算换了。
曲尺形的台面,是指L行的橱柜吧?
回复

使用道具 举报

1

主题

70

帖子

287

积分

小学毕业

积分
287

社区居民

发表于 2014-9-16 11:20:07 | 显示全部楼层
plan0717-Model-2.jpg

既然内部的墙都可以动,索性动大些,这样改,卫生间会比较舒服,其他的没什么可调的了。
回复

使用道具 举报

您需要登录后才可以回帖 登录 | 立即注册

本版积分规则

装修百科|手机版|小黑屋|北京高老庄建筑装饰工程有限公司 ( 京ICP备19035109号 )

GMT+8, 2026-4-1 11:48 , Processed in 0.962748 second(s), 29 queries .

快速回复 返回顶部 返回列表