北京装修论坛 - 北京装修社区_高老庄工长装修

 找回密码
立即注册
热搜: 工长 设计 曝光
楼主: tongxinyi198

[装修讨论] 异性户型,急求设计

[复制链接]

12

主题

59

帖子

166

积分

小学毕业

积分
166

社区居民

 楼主| 发表于 2014-9-3 12:58:39 | 显示全部楼层

回 9楼(醉蟋蟀) 的帖子

醉蟋蟀:应该不是承重墙,,感觉不是,,, (2014-09-03 12:50)
主要当时量房的时候,很仔细的翘了听的,而且那堵墙超级厚,我怀疑是不是因为整栋楼好几个单元的户型都是这样 所以承重就在这块了。如果不是承重的话,那房型就能很漂亮了呢
回复

使用道具 举报

146

主题

4902

帖子

1万

积分

硕士毕业

积分
10281

社区居民忠实会员社区劳模最爱沙发社区明星

发表于 2014-9-3 13:18:53 | 显示全部楼层
被大家 ,蟋蟀 ,蟋蟀
回复

使用道具 举报

146

主题

4902

帖子

1万

积分

硕士毕业

积分
10281

社区居民忠实会员社区劳模最爱沙发社区明星

发表于 2014-9-3 13:22:38 | 显示全部楼层
如果是板式高层,九十年代的房子,那时有积木结构的高层,就不好说了,墙体是水泥预制板的,不可能动的。如果是新楼房,框架结构的,是承重墙的可能性不大,老式的砖混很少有异型的房间,
回复

使用道具 举报

5

主题

200

帖子

2081

积分

大专毕业

积分
2081

社区居民忠实会员

发表于 2014-9-3 13:44:34 | 显示全部楼层

回 3楼(醉蟋蟀) 的帖子

高手
回复

使用道具 举报

146

主题

4902

帖子

1万

积分

硕士毕业

积分
10281

社区居民忠实会员社区劳模最爱沙发社区明星

发表于 2014-9-3 13:51:42 | 显示全部楼层

回 13楼(幸福的嘟嘟) 的帖子

幸福的嘟嘟:高手
 (2014-09-03 13:44) 
回复

使用道具 举报

1

主题

70

帖子

287

积分

小学毕业

积分
287

社区居民

发表于 2014-9-4 15:41:52 | 显示全部楼层
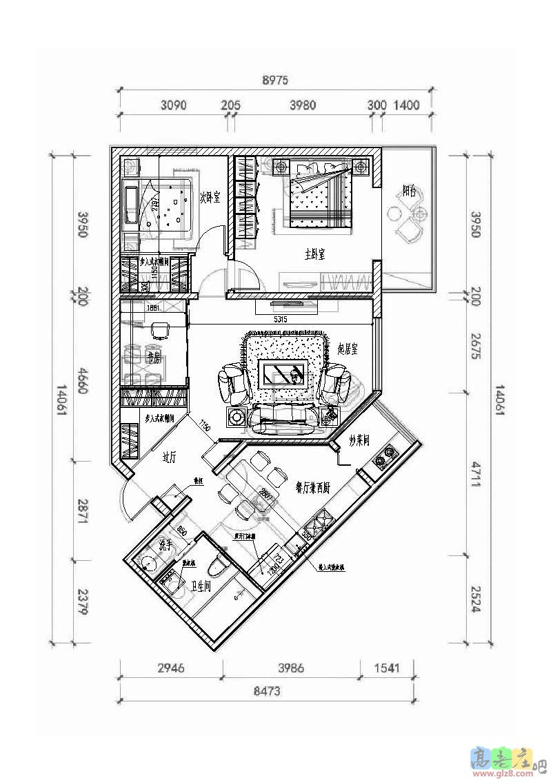
plan0717-Model.jpg 不知道管线情况,抛砖引玉吧
说明:
1、卫生间建议洗手和如厕分开,这样人多的时候使用方便些,这样卫生间的门就不会面向厨房了。
2、由于阳台可以用于炒菜,因此阳台加门的话,油烟不会进入里面的厨房和餐厅了。这样布置另一个好处是,餐厅里厨房很近,不用端菜跑来跑去了。
3、起居室的左边设了一间小的书房,也可以做成半开敞的,以补充完善住宅内的功能,客厅会显得小些,但是实用。
4、2个卧室的门集中了下,这样起居室可用的墙面会长些,卧室内私密性也好些
5、结合入口做了个小走道,设置了步入式衣柜间及鞋柜等等实用的功能,另外,进门略有些遮挡,保护隐私,做鞋柜的另一个好处是沙发位置的可用墙面也会长些。
6、标注了一些主要的尺寸,是参照原有尺寸估摸着画的,从人体尺度上来说,所有空间都比较宽松,实际使用没有问题。
回复

使用道具 举报

1

主题

70

帖子

287

积分

小学毕业

积分
287

社区居民

发表于 2014-9-4 15:50:20 | 显示全部楼层
plan0717-Model.pdf.doc (82.03 KB, 下载次数: 7)

附图不太清楚,附件为pdf文件,下载后把文件尾缀改为pdf即可查看
回复

使用道具 举报

1

主题

180

帖子

460

积分

设计师

积分
460

社区居民

QQ
发表于 2014-9-4 15:56:28 | 显示全部楼层
客厅和书房这样设计很合理,就是隔断做成死的话,会不会空间显小呢?
回复

使用道具 举报

19

主题

118

帖子

317

积分

初中毕业

积分
317

社区居民原创达人

发表于 2014-9-5 18:33:16 | 显示全部楼层

回 15楼(负极) 的帖子

负极: 不知道管线情况,抛砖引玉吧
说明:
1、卫生间建议洗手和如厕分开,这样人多的时候使用方便些,这样卫生间的门就不会面向厨房了。
2、由于阳台可以用于炒菜,因此阳台加门的话,油烟不会进入里面的厨房和餐厅了。这样布置另一个好处是,餐厅里厨房很近,不用 .. (2014-09-04 15:41) 
牛啊
回复

使用道具 举报

19

主题

118

帖子

317

积分

初中毕业

积分
317

社区居民原创达人

发表于 2014-9-5 18:42:23 | 显示全部楼层

回 15楼(负极) 的帖子

负极: 不知道管线情况,抛砖引玉吧
说明:
1、卫生间建议洗手和如厕分开,这样人多的时候使用方便些,这样卫生间的门就不会面向厨房了。
2、由于阳台可以用于炒菜,因此阳台加门的话,油烟不会进入里面的厨房和餐厅了。这样布置另一个好处是,餐厅里厨房很近,不用 .. (2014-09-04 15:41) 
太赞了,请你帮我看看呗。http://bbs.glz.cn/read.php?tid-19769.html
回复

使用道具 举报

您需要登录后才可以回帖 登录 | 立即注册

本版积分规则

装修百科|手机版|小黑屋|北京高老庄建筑装饰工程有限公司 ( 京ICP备19035109号 )

GMT+8, 2026-4-2 02:44 , Processed in 0.162888 second(s), 31 queries .

快速回复 返回顶部 返回列表