北京装修论坛 - 北京装修社区_高老庄工长装修

 找回密码
立即注册
热搜: 工长 设计 曝光
查看: 5870|回复: 20

[装修讨论] 求教吊顶多少钱一米合理?

[复制链接]

12

主题

59

帖子

166

积分

小学毕业

积分
166

社区居民

发表于 2014-10-16 22:20:55 | 显示全部楼层 |阅读模式
老公找的熟人推荐的新浪工长,经验倒是应该挺丰富,所以也没多对比就签了合同。但是一听到我们说水电改造不找他做,就立马不干了,说价格至少要比原来报价贵20+%,现在好说歹说同意继续干。
因他给的原报价上是没有吊顶价格的,设计师又建议全做吊顶,所以今天问了下吊顶怎么收费的,结果被告知得200一米,设计师建议的吊顶上粘条状车线镜面,另收费80一米。个人觉得价格非常夸张啊,但和高老庄里的报价又没法完全对应上,所以请各位帮忙看看价格能接受么?(我家都是直线吊顶)
回复

使用道具 举报

13

主题

355

帖子

3601

积分

大专毕业

积分
3601

社区居民

发表于 2014-10-16 23:05:29 | 显示全部楼层
280一 米,你家做多长啊。看看下来多少钱承受得住 否。个人意见 刚开始 就不愉快,你求着他装修,以后你 把控得住 局面吗?
回复

使用道具 举报

7

主题

46

帖子

127

积分

小学毕业

积分
127

社区居民忠实会员

发表于 2014-10-17 09:29:16 | 显示全部楼层
这个新浪工长也够黑的,水电不让他做,装修报价就上涨20%,有点不厚道。

我家是找正规装修公司的工长签的私单,按照装修公司的报价,客厅和餐厅的管道式吊顶(应该就是楼主说的直线吊顶)是按米收费,为160元/米;门厅和过道吊顶按照面积收费,135元/平米,因为是签私单,工长同意以上价格基础上打9折。
回复

使用道具 举报

146

主题

4902

帖子

1万

积分

硕士毕业

积分
10281

社区居民忠实会员社区劳模最爱沙发社区明星

发表于 2014-10-17 09:37:46 | 显示全部楼层
我的木工收费:按一张石膏板80元,
回复

使用道具 举报

13

主题

128

帖子

300

积分

初中毕业

积分
300

社区居民

发表于 2014-10-17 10:50:51 | 显示全部楼层
这种工长直接kick
回复

使用道具 举报

351

主题

7926

帖子

1万

积分

版主

Rank: 7Rank: 7Rank: 7

积分
13957

社区居民社区劳模最爱沙发社区明星

发表于 2014-10-17 11:11:42 | 显示全部楼层
其它工长给你报价多少钱,这个不太好说,什么价格都有。经过计算,根据工艺不同成本价格在80-100元之间。
回复

使用道具 举报

12

主题

59

帖子

166

积分

小学毕业

积分
166

社区居民

 楼主| 发表于 2014-10-17 16:51:42 | 显示全部楼层

回 2楼(淡香幽兰) 的帖子

淡香幽兰:这个新浪工长也够黑的,水电不让他做,装修报价就上涨20%,有点不厚道。

我家是找正规装修公司的工长签的私单,按照装修公司的报价,客厅和餐厅的管道式吊顶(应该就是楼主说的直线吊顶)是按米收费,为160元/米;门厅和过道吊顶按照面积收费,135元/平米,因为是签私单,工长同 .. (2014-10-17 09:29) 
您这个价格含了石膏板的价格么?不知道我家这个含不含石膏板的价格 上午跟他谈了 他坚持价格不高
回复

使用道具 举报

5

主题

165

帖子

428

积分

初中毕业

积分
428

社区居民

发表于 2014-10-17 17:17:34 | 显示全部楼层
嗨 觉得楼主 要不就找别人干这个活算了 要不就换给工长吧 要不真的很闹心
回复

使用道具 举报

12

主题

59

帖子

166

积分

小学毕业

积分
166

社区居民

 楼主| 发表于 2014-10-17 17:35:02 | 显示全部楼层
是啊 我也觉得很闹心 这个工长经验倒是很丰富 但是觉得有严重杀熟嫌疑   但是吊顶工程能单独外包给别人做么?有推荐的咩
回复

使用道具 举报

12

主题

59

帖子

166

积分

小学毕业

积分
166

社区居民

 楼主| 发表于 2014-10-17 17:37:41 | 显示全部楼层

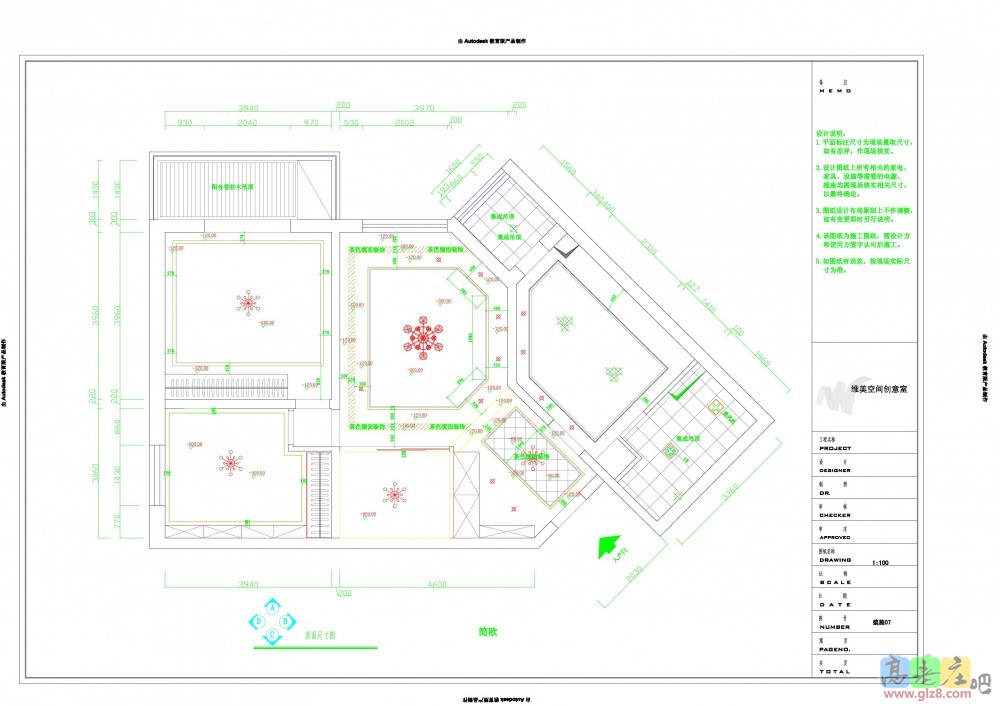
为防止描述不清,附顶面布置图求意见

为防止描述不清,附顶面布置图求意见
回复

使用道具 举报

您需要登录后才可以回帖 登录 | 立即注册

本版积分规则

装修百科|手机版|小黑屋|北京高老庄建筑装饰工程有限公司 ( 京ICP备19035109号 )

GMT+8, 2026-4-1 16:23 , Processed in 1.091491 second(s), 29 queries .

快速回复 返回顶部 返回列表