北京装修论坛 - 北京装修社区_高老庄工长装修

 找回密码
立即注册
热搜: 工长 设计 曝光
查看: 5102|回复: 12

[装修讨论] 请大家帮我对比一下哪个方案好些

[复制链接]

22

主题

54

帖子

155

积分

小学毕业

积分
155

社区居民

发表于 2014-11-11 14:51:57 | 显示全部楼层 |阅读模式
方案二.jpg 方案一.jpg
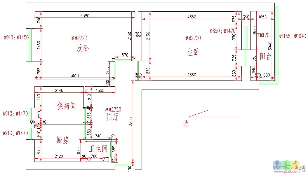
方案一、墙体改动量大些,非承重墙全部砸掉重砌。方案二可以利用一部分原非承重墙,不过厨房完全暴露。 原始户型图.jpg
回复

使用道具 举报

24

主题

1万

帖子

2万

积分

硕士毕业

积分
20710

社区居民最爱沙发忠实会员社区劳模社区明星

发表于 2014-11-11 15:22:59 | 显示全部楼层
从家庭日常生活角度,第一种方案再调整一下,会更适合日常生活节奏;

但是问题来了,门厅鞋帽柜的进深放得有点大,其实这只需要20公分的进深就行,卫生间马桶的朝向摆放也有问题,淋浴房有条件做直排的就尽量选择更大的,洗澡更痛快淋漓,洗衣机放置了2个位置,是不是有烘干机?浴室柜的位置有点偏,并且尺寸也比较小,可以做大一些;

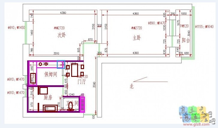
厨房冰箱不可以放在这个位置,挡住了进卫生间的过道,非常不方便,并且卧室的布局也没有充分利用好,需要再规划一下;空间的改动和墙体的改动,是根据最流畅的生活习惯和美观舒适性来决定的,冰箱可以补充放在蓝色标识的位置,牺牲一些地柜,冰箱上面依然可以做吊柜的。。


原帖:老房马上装修,格局需要重新改动,请各位网友给点建议。三口之家,保留两居室。原始卫生间极小,1平米。
QQ图片20141111151624.jpg
回复

使用道具 举报

0

主题

192

帖子

529

积分

设计师

积分
529

社区居民忠实会员

QQ
发表于 2014-11-11 15:48:43 | 显示全部楼层
第二种更可行,但洗手间的尺寸需要再调整
回复

使用道具 举报

22

主题

54

帖子

155

积分

小学毕业

积分
155

社区居民

 楼主| 发表于 2014-11-11 15:55:41 | 显示全部楼层

回 2楼(杨克鹏) 的帖子

杨克鹏:第二种更可行,但洗手间的尺寸需要再调整


 (2014-11-11 15:48) 
我上面的图没有发好,请问您说的第二种方案是哪个
回复

使用道具 举报

0

主题

192

帖子

529

积分

设计师

积分
529

社区居民忠实会员

QQ
发表于 2014-11-11 15:58:09 | 显示全部楼层

回 3楼(北京夏天) 的帖子

北京夏天:我上面的图没有发好,请问您说的第二种方案是哪个 (2014-11-11 15:55) 
在原结构的基础之上,扩大厨房和洗手间,但洗手间开门还是开在门厅处
回复

使用道具 举报

24

主题

1万

帖子

2万

积分

硕士毕业

积分
20710

社区居民最爱沙发忠实会员社区劳模社区明星

发表于 2014-11-12 10:31:54 | 显示全部楼层

回 4楼(杨克鹏) 的帖子

杨克鹏:在原结构的基础之上,扩大厨房和洗手间,但洗手间开门还是开在门厅处 (2014-11-11 15:58)
帮忙具体分析一下第二种方案的优势,也分析下第一种方案的不足,学习一下。。
回复

使用道具 举报

0

主题

333

帖子

722

积分

设计师

积分
722

社区居民

QQ
发表于 2014-11-12 10:50:31 | 显示全部楼层
高老庄.jpg
在原来的基础上,稍加改动。
独立设计师
回复

使用道具 举报

24

主题

1万

帖子

2万

积分

硕士毕业

积分
20710

社区居民最爱沙发忠实会员社区劳模社区明星

发表于 2014-11-12 11:28:20 | 显示全部楼层

回 6楼(刘天让) 的帖子

刘天让:
在原来的基础上,稍加改动。 (2014-11-12 10:50)
看来你们两位设计师的思路是差不多的,那这样的话,卫生间就成了暗卫了,白天都要开灯啊。。

一种方案是更大的卫生间,一种方案是更大的厨房。。。
回复

使用道具 举报

22

主题

54

帖子

155

积分

小学毕业

积分
155

社区居民

 楼主| 发表于 2014-11-12 22:35:32 | 显示全部楼层

回 6楼(刘天让) 的帖子

刘天让:
在原来的基础上,稍加改动。 (2014-11-12 10:50) 
多谢指点,这样改动的话,吊柜是不是明显减少了,毕竟那侧都是窗户
回复

使用道具 举报

0

主题

333

帖子

722

积分

设计师

积分
722

社区居民

QQ
发表于 2014-11-14 10:40:31 | 显示全部楼层

回 8楼(北京夏天) 的帖子

北京夏天:多谢指点,这样改动的话,吊柜是不是明显减少了,毕竟那侧都是窗户 (2014-11-12 22:35) 
没减多少,两种方案本来也没多少吊柜。
独立设计师
回复

使用道具 举报

您需要登录后才可以回帖 登录 | 立即注册

本版积分规则

装修百科|手机版|小黑屋|北京高老庄建筑装饰工程有限公司 ( 京ICP备19035109号 )

GMT+8, 2026-4-1 07:17 , Processed in 0.389679 second(s), 33 queries .

快速回复 返回顶部 返回列表