
|
5148| 10
|
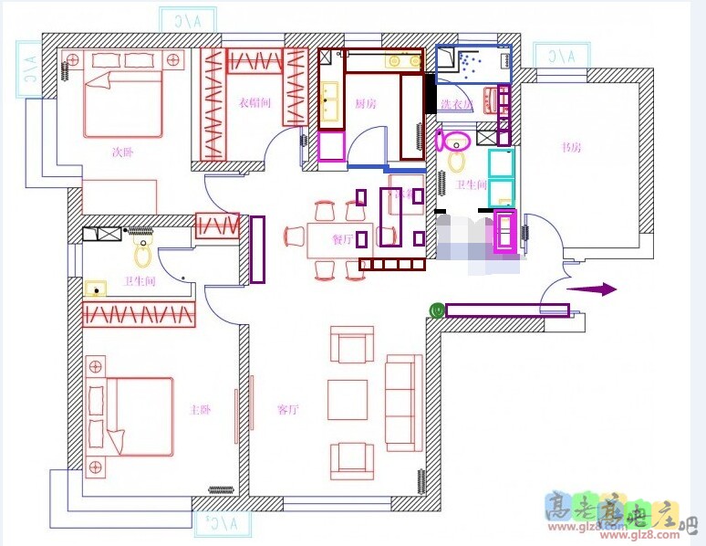
[装修讨论] 收房了,请大家帮忙出谋划策 |
| ||
| ||
| ||
| ||
回 1楼(高老庄保障诚信透明施工服务) 的帖子
| ||
回 2楼(billjudyyy) 的帖子
| ||
回 3楼(昙花一现) 的帖子
| ||
回 4楼(王建) 的帖子
| ||
装修百科|手机版|小黑屋|北京高老庄建筑装饰工程有限公司 ( 京ICP备19035109号 )
GMT+8, 2026-4-1 07:11 , Processed in 0.474326 second(s), 31 queries .