北京装修论坛 - 北京装修社区_高老庄工长装修

 找回密码
立即注册
热搜: 工长 设计 曝光
查看: 5092|回复: 5

[装修讨论] 求各位大神帮忙设计一下厨卫

[复制链接]

1

主题

25

帖子

57

积分

学前班

积分
57

社区居民

发表于 2014-11-14 13:50:03 | 显示全部楼层 |阅读模式
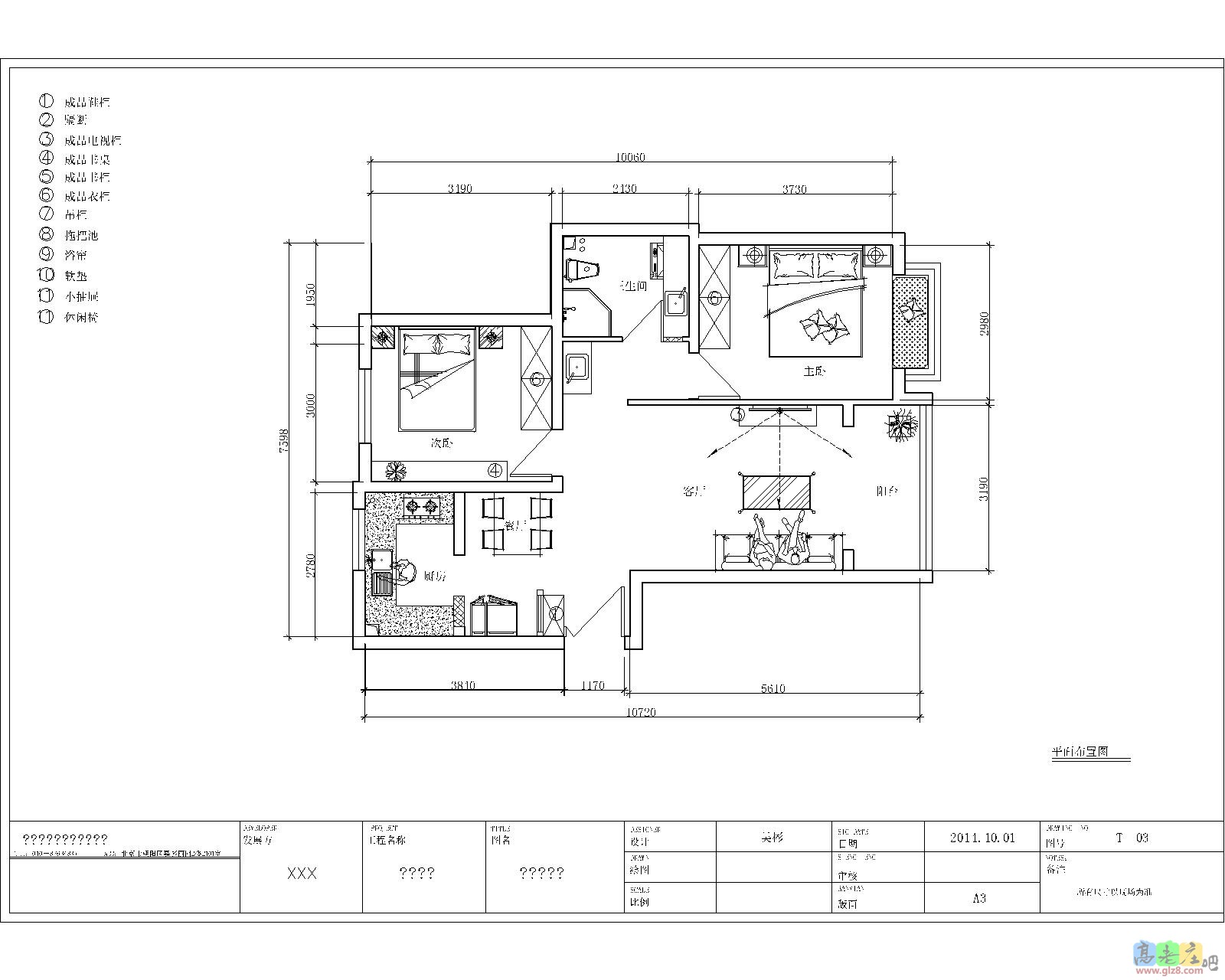
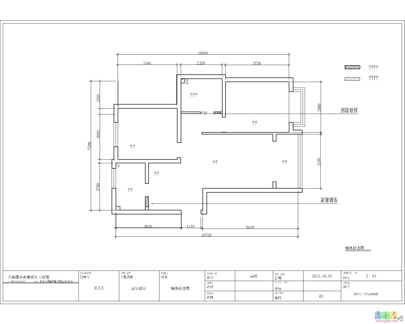
原始平面图.jpg

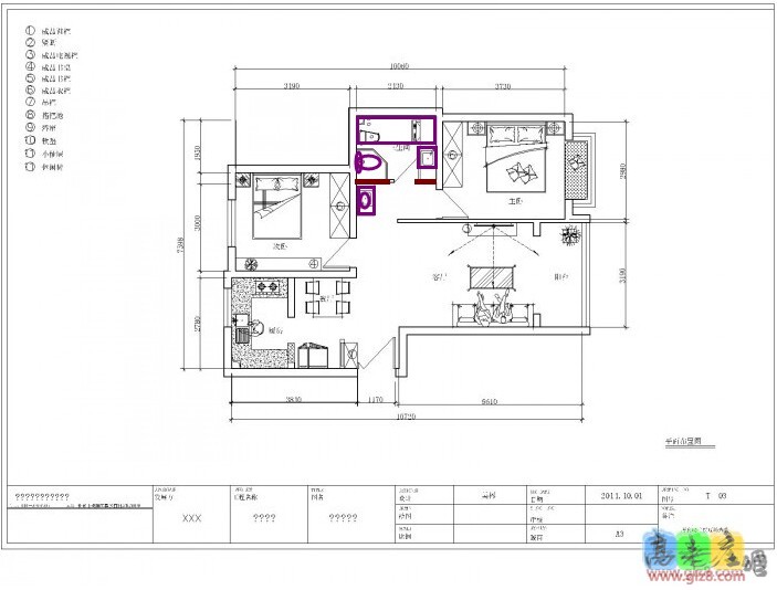
平面布置图.jpg
想把洗衣机放在卫生间,
个人觉得马桶和门正对镜子不好~~~

求各位提供建议
回复

使用道具 举报

1

主题

25

帖子

57

积分

学前班

积分
57

社区居民

 楼主| 发表于 2014-11-14 13:56:48 | 显示全部楼层
IMG_20141108_122134.jpg
回复

使用道具 举报

24

主题

1万

帖子

2万

积分

硕士毕业

积分
20710

社区居民最爱沙发忠实会员社区劳模社区明星

发表于 2014-11-14 14:25:28 | 显示全部楼层
厨房U型橱柜还可以啊,卫生间的浴室柜镜子可以用镜子帘来挡住,用的时候拉开,不用的时候拉上就行。。
回复

使用道具 举报

1

主题

25

帖子

57

积分

学前班

积分
57

社区居民

 楼主| 发表于 2014-11-14 14:46:58 | 显示全部楼层

回 2楼(王建) 的帖子

王建:厨房U型橱柜还可以啊,卫生间的浴室柜镜子可以用镜子帘来挡住,用的时候拉开,不用的时候拉上就行。。
 (2014-11-14 14:25) 
卫生间的设计我不太满意,能否指导一下
回复

使用道具 举报

24

主题

1万

帖子

2万

积分

硕士毕业

积分
20710

社区居民最爱沙发忠实会员社区劳模社区明星

发表于 2014-11-14 15:13:34 | 显示全部楼层

回 3楼(panda) 的帖子

可以做一个大直排的淋浴房,但是卫生间门要往中间偏移一下,这样卫生间左边可以放置马桶,右侧放置洗衣机,卫生间门可以是平开门,也可以做成推拉吊趟门;
浴室柜在卫生间外墙,对着卧室门的位置,可以安装个镜架,带有镜子帘。。

QQ图片20141114150743.jpg
回复

使用道具 举报

0

主题

49

帖子

155

积分

小学毕业

积分
155

社区居民

发表于 2014-11-14 16:51:42 | 显示全部楼层
能干湿分离就干湿分离
回复

使用道具 举报

您需要登录后才可以回帖 登录 | 立即注册

本版积分规则

装修百科|手机版|小黑屋|北京高老庄建筑装饰工程有限公司 ( 京ICP备19035109号 )

GMT+8, 2026-4-1 07:11 , Processed in 0.387850 second(s), 30 queries .

快速回复 返回顶部 返回列表