
|
8943| 32
|
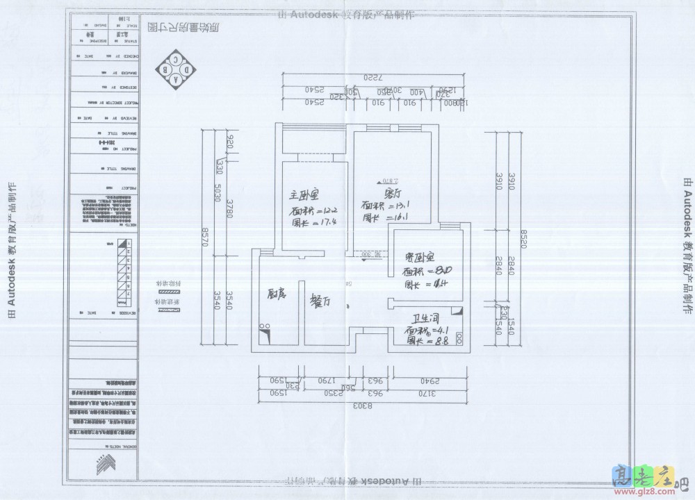
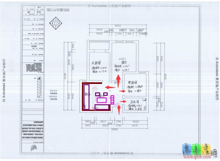
[装修讨论] 一个女生没有任何装修经验,大家帮我看看该怎么弄,谢谢了! |
| ||
|
| |
| ||
|
[size=5][b][url=http://bbs.glz8.com/read.php?tid-21583.html]如果一篇文章可以教会你装修…六万字呕心力作,用灵魂装修的典范,以文学创作的笔触写装修,欢迎观摩品鉴[/url][/b][/size]
|
||
回 3楼(若兰) 的帖子
| ||
| ||
回 1楼(若兰) 的帖子
| ||
| ||
|
生命没有过度,感受装修的每一个第一次
|
||
| ||
装修百科|手机版|小黑屋|北京高老庄建筑装饰工程有限公司 ( 京ICP备19035109号 )
GMT+8, 2026-3-31 21:24 , Processed in 0.254052 second(s), 32 queries .