北京装修论坛 - 北京装修社区_高老庄工长装修

 找回密码
立即注册
热搜: 工长 设计 曝光
查看: 2838|回复: 6

请大家帮忙给设计一下

[复制链接]

1

主题

5

帖子

22

积分

学前班

积分
22

社区居民

QQ
发表于 2014-12-17 13:53:48 | 显示全部楼层 |阅读模式
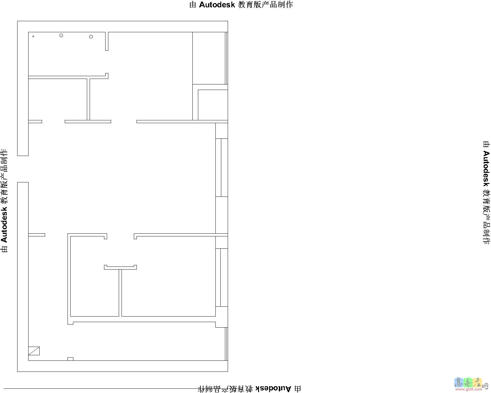
108平面图-Model.jpg
回复

使用道具 举报

24

主题

1万

帖子

2万

积分

硕士毕业

积分
20710

社区居民最爱沙发忠实会员社区劳模社区明星

发表于 2014-12-17 14:01:20 | 显示全部楼层
楼主得有户型图的相关尺寸及细节要求。。
回复

使用道具 举报

1

主题

5

帖子

22

积分

学前班

积分
22

社区居民

QQ
 楼主| 发表于 2014-12-17 15:04:15 | 显示全部楼层
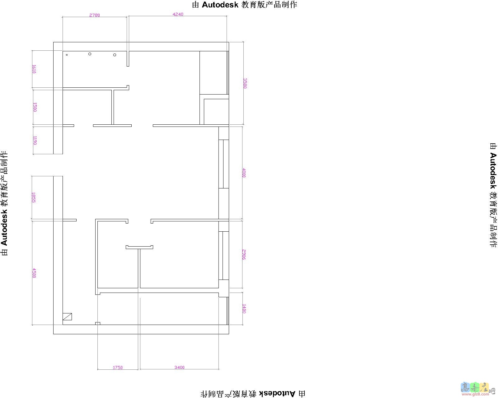
108尺寸平面图-Model.jpg              108尺寸对照平面图-Model.jpg       我想要装古典中式的
回复

使用道具 举报

14

主题

1658

帖子

4万

积分

硕士毕业

积分
49611

社区居民忠实会员最爱沙发

发表于 2014-12-17 15:50:45 | 显示全部楼层
几口人,怎么住,这些都要说啊
回复

使用道具 举报

24

主题

1万

帖子

2万

积分

硕士毕业

积分
20710

社区居民最爱沙发忠实会员社区劳模社区明星

发表于 2014-12-17 16:27:13 | 显示全部楼层
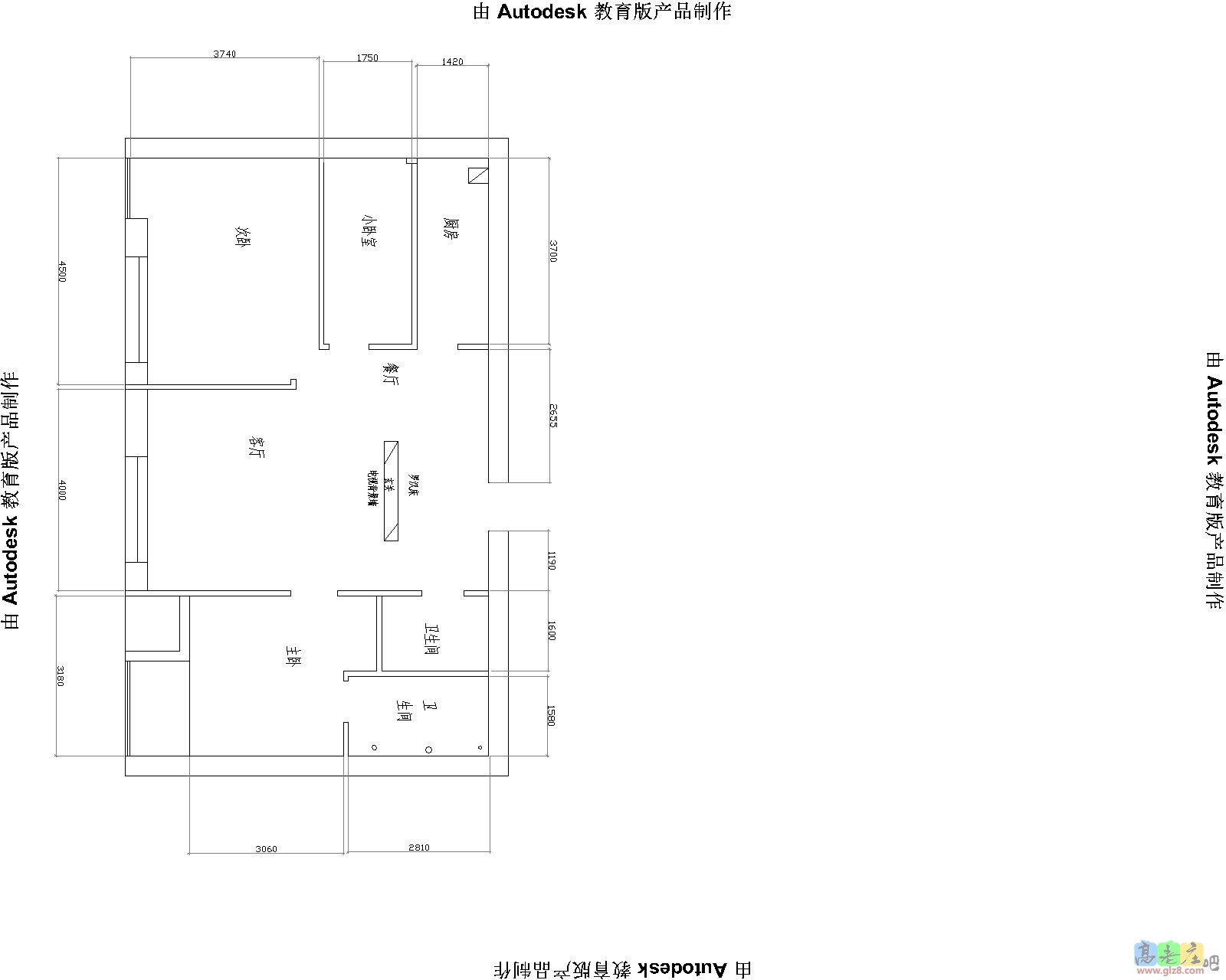
楼主可以参考一下墙体改造及摆放布置。。。

QQ图片20141217162153.jpg
回复

使用道具 举报

1

主题

5

帖子

22

积分

学前班

积分
22

社区居民

QQ
 楼主| 发表于 2014-12-17 17:27:53 | 显示全部楼层
有效果图吗
回复

使用道具 举报

1

主题

5

帖子

22

积分

学前班

积分
22

社区居民

QQ
 楼主| 发表于 2014-12-17 17:29:30 | 显示全部楼层
有老人  孩子  我们五口人住  我们的想法想装古典中式的
回复

使用道具 举报

您需要登录后才可以回帖 登录 | 立即注册

本版积分规则

装修百科|手机版|小黑屋|北京高老庄建筑装饰工程有限公司 ( 京ICP备19035109号 )

GMT+8, 2026-3-31 19:54 , Processed in 0.279788 second(s), 32 queries .

快速回复 返回顶部 返回列表