北京装修论坛 - 北京装修社区_高老庄工长装修

 找回密码
立即注册
热搜: 工长 设计 曝光
查看: 4407|回复: 8

[装修讨论] 北京90年代老二居求改造

[复制链接]

4

主题

53

帖子

138

积分

小学毕业

积分
138

社区居民

发表于 2014-12-18 12:23:07 | 显示全部楼层 |阅读模式
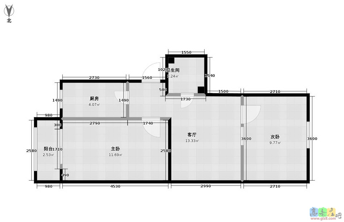
62方小两居.jpg

刚买的学区房,90年代的老房子,东西向,求改造!
房子设计背景:三代同堂,准备阳台的那间卧室作为老人和小孩(未满3岁)用,卧室准备放高低床;小的那间次卧大人用。学区房已经掏空了多年储蓄,装修资金十分有限!
设计要求:风格简单为主,不需要华丽的东西。墙壁刷白,地面瓷砖,吸顶灯等等,总之,干净、明快,简(pian)约(yi)即可。十分感谢!
回复

使用道具 举报

0

主题

41

帖子

171

积分

小学毕业

积分
171

社区居民忠实会员

发表于 2014-12-18 12:37:24 | 显示全部楼层
沙发,帮顶
装修从心开始
回复

使用道具 举报

0

主题

41

帖子

171

积分

小学毕业

积分
171

社区居民忠实会员

发表于 2014-12-18 12:39:31 | 显示全部楼层
西边的采光好一些吧,房子面积很大。担心课题的采光,阳台好好利用
装修从心开始
回复

使用道具 举报

9

主题

354

帖子

759

积分

高中毕业

积分
759

社区居民

发表于 2014-12-18 12:47:38 | 显示全部楼层
不知道是否喜欢榻榻米?我家里有一个上下床(上铺90cm、下铺120cm),均为10cm厚的棕床垫,换洗床单时很麻烦。重新装修时改成榻榻米了,很省地方,还有超大储物空间。
回复

使用道具 举报

4

主题

53

帖子

138

积分

小学毕业

积分
138

社区居民

 楼主| 发表于 2014-12-18 13:47:55 | 显示全部楼层
真心不喜欢榻榻米的说O(∩_∩)O~还是高低床比较好
回复

使用道具 举报

24

主题

1万

帖子

2万

积分

硕士毕业

积分
20710

社区居民最爱沙发忠实会员社区劳模社区明星

发表于 2014-12-18 14:11:45 | 显示全部楼层
楼主可以参考下面的布置。。

QQ图片20141218140839.jpg
回复

使用道具 举报

9

主题

271

帖子

581

积分

初中毕业

积分
581

社区居民社区劳模

发表于 2014-12-18 14:19:56 | 显示全部楼层

回 6楼(王建) 的帖子

王建:楼主可以参考下面的布置。。


 (2014-12-18 14:11) 
这样吃饭只能在客厅临时来个桌子了
回复

使用道具 举报

24

主题

1万

帖子

2万

积分

硕士毕业

积分
20710

社区居民最爱沙发忠实会员社区劳模社区明星

发表于 2014-12-18 14:22:24 | 显示全部楼层

回 7楼(豆角儿) 的帖子

豆角儿:这样吃饭只能在客厅临时来个桌子了 (2014-12-18 14:19) 
客厅也比较小,只能在客厅吃饭了,电视墙应该是承重墙,无法改动。。
回复

使用道具 举报

1

主题

81

帖子

172

积分

小学毕业

积分
172

社区居民

发表于 2014-12-18 14:28:41 | 显示全部楼层
来点室内照片看看多好啊 会很直观的啊
回复

使用道具 举报

您需要登录后才可以回帖 登录 | 立即注册

本版积分规则

装修百科|手机版|小黑屋|北京高老庄建筑装饰工程有限公司 ( 京ICP备19035109号 )

GMT+8, 2026-3-31 19:56 , Processed in 0.396275 second(s), 30 queries .

快速回复 返回顶部 返回列表