
|
7176| 31
|
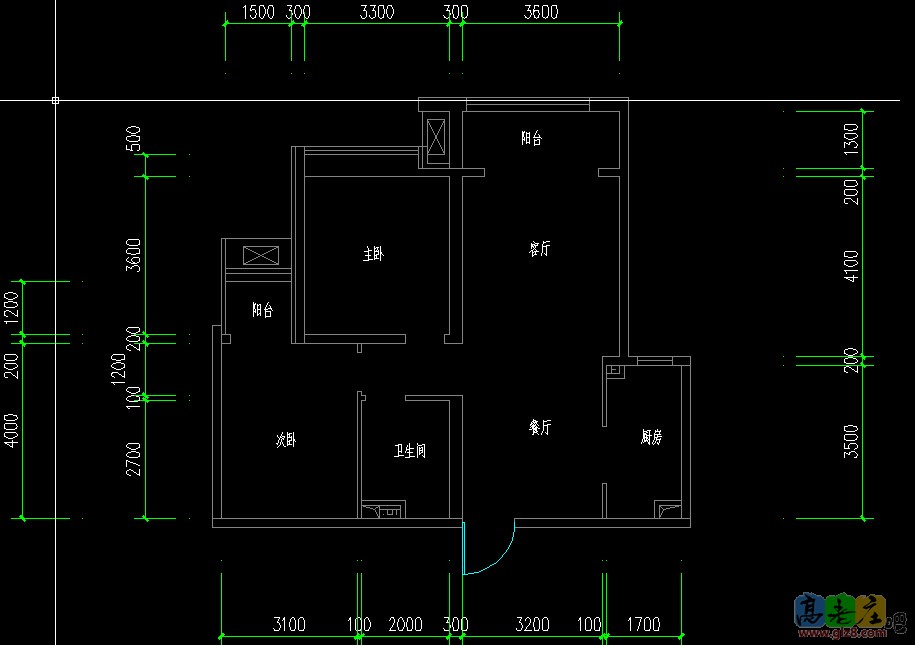
[装修讨论] 劳烦大家出出主意,谢谢,这个结构餐桌不好放啊~ |
| ||
回 1楼(mqzqau) 的帖子
| ||
| ||
| ||
|
88号装修日记,谢谢惠顾 http://bbs.glz8.com/read-htm-tid-27249.html
|
||
回 4楼(大帆小原) 的帖子
| ||
| ||
| ||
| ||
装修百科|手机版|小黑屋|北京高老庄建筑装饰工程有限公司 ( 京ICP备19035109号 )
GMT+8, 2026-3-31 15:27 , Processed in 0.792764 second(s), 30 queries .