北京装修论坛 - 北京装修社区_高老庄工长装修

 找回密码
立即注册
热搜: 工长 设计 曝光
楼主: rosyfrost

[装修讨论] 老旧二手小三居,请帮忙做功能划分

[复制链接]

7

主题

145

帖子

311

积分

初中毕业

积分
311

社区居民

 楼主| 发表于 2015-1-15 00:20:06 | 显示全部楼层

回 10楼(波波爸) 的帖子

波波爸:放在东边,阳台门好像碍事

 (2015-01-14 09:11) 
东阳台门和窗户计划打掉作垭口,开阔。北阳台因为怕冷,很遗憾不能打掉。
回复

使用道具 举报

1

主题

106

帖子

314

积分

初中毕业

积分
314

社区居民

发表于 2015-1-15 08:58:00 | 显示全部楼层

回 19楼(rosyfrost) 的帖子

rosyfrost:我们没有一起看电视的需求,是计划两个大卧室各放一个电视的。老人离了电视不行,我们自己一年也开不了一两次电视。另外咨询一下,最小的卧室准备做儿童房(有二宝之后重新计划),最近两三年可能不会用,暂时就只放孩子的围栏和玩具,作为儿童乐园,如果现在不封,两三年之后再 ..(2015-01-15 00:17)嬀/color]
这个问题,问问装修的工长最好
回复

使用道具 举报

1

主题

106

帖子

314

积分

初中毕业

积分
314

社区居民

发表于 2015-1-15 08:59:06 | 显示全部楼层

回 21楼(波波爸) 的帖子


从墙体的厚度看,东阳台像是承重墙,楼主仔细了
回复

使用道具 举报

7

主题

145

帖子

311

积分

初中毕业

积分
311

社区居民

 楼主| 发表于 2015-1-15 09:44:27 | 显示全部楼层

回 22楼(波波爸) 的帖子

波波爸:从墙体的厚度看,东阳台像是承重墙,楼主仔细了
 (2015-01-15 08:59) 
是承重墙,墙体厚30CM,只把原来旧门窗拆掉,那个窗垛子还得留着,做垭口都得加厚且不规则。两个卧室门所在墙厚18,防盗门所在墙厚20,不知道装了防盗门之后还用不用包边呢,一一学习
回复

使用道具 举报

1

主题

106

帖子

314

积分

初中毕业

积分
314

社区居民

发表于 2015-1-15 10:51:52 | 显示全部楼层
是这样的门连着窗户,忽略门和窗之间的立柱,画不出来。做个大理石窗台
rose3D1.JPG
回复

使用道具 举报

2

主题

51

帖子

292

积分

小学毕业

积分
292

社区居民

发表于 2015-1-15 16:18:40 | 显示全部楼层
把两个大卧室分出来一块作为餐厅 这构想不错  不过具体的在哪边卧室方便些还得看楼主自己
回复

使用道具 举报

1

主题

22

帖子

58

积分

禁止发言

积分
58

社区居民

发表于 2015-1-15 16:45:34 | 显示全部楼层
   好复杂
回复

使用道具 举报

1

主题

70

帖子

287

积分

小学毕业

积分
287

社区居民

发表于 2015-1-19 09:20:37 | 显示全部楼层
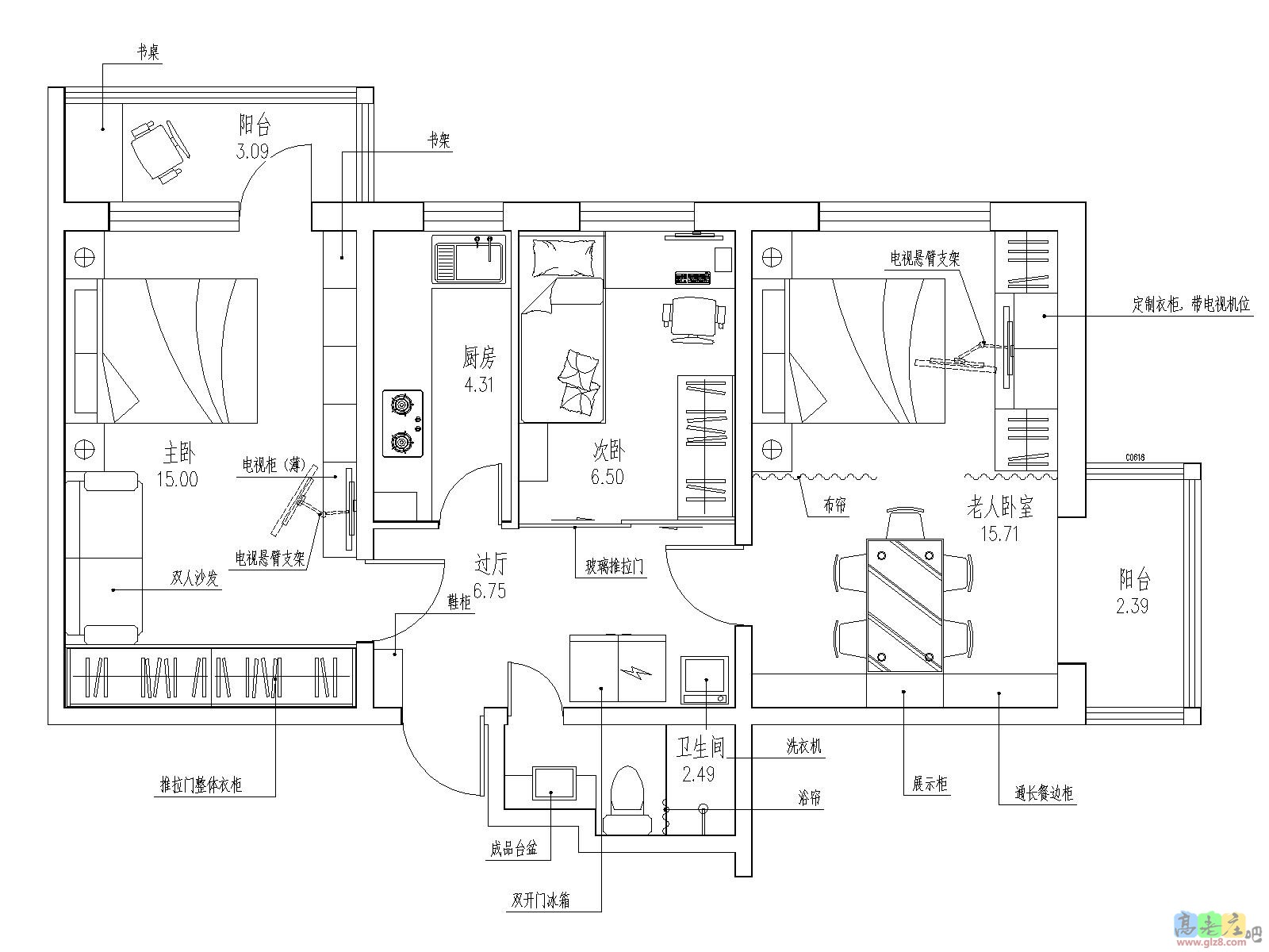
根据楼主的要求,大概布置了下,墙不能动,只能依据现有布置进行调整,能调整的余地就小了很多。。。
1、老人还是住在有阳光的房间吧,对身体有好处,一大家人吃饭,餐厅空间还是要舒服些,觉得在老人的床和餐桌间挂个布帘就可以了,毕竟吃饭占的时间比较短,大部分时间还是老人自己用,在卧室床的对面设了电视,这个电视可以安装一个悬臂的支架,这样如果老人习惯做椅子,也能看到电视。睡觉的时候,拉上帘子,空间比较私密,也不影响其他人去阳台晾晒。
2、主卧室设了双人沙发,偶尔来客人也有地方说话,晚上自己也可以在沙发上看电视,北阳台设了书桌,在不太冷的时候,可以在哪里工作。同样,一个悬臂的电视可以满足在床上看电视的需求。南侧设整体衣柜吧,整面墙的那种,一定要做推拉门!床对面可以放书架也可以放展示柜。
3、次卧比较小,门做玻璃推拉门,可以给过厅增加些亮光,家具可以等小宝需要时再采购,没有家具的时候是个活动的好地方。
4、卫生间比较小,入口的台盆一定要买宽度小的
5、冰箱位置比较宽松,买个双开门的大冰箱吧,毕竟人比较多,洗衣机靠墙,上方可以做小柜子放杂物。
6、注意房间门的方向,给门扇一个合适的放置位置。
平面图.jpg
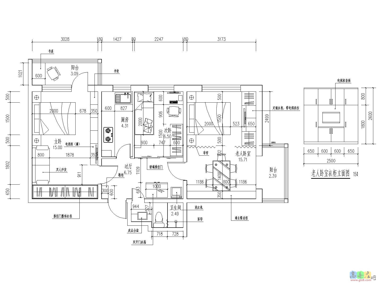
下面的图标了一下尺寸,由于图片测量的,尺寸不准,请根据实际情况进行调整,右手边是老人卧室的定制衣柜的立面,说明下电视的安装方法。 尺寸图.jpg
回复

使用道具 举报

24

主题

1万

帖子

2万

积分

硕士毕业

积分
20710

社区居民最爱沙发忠实会员社区劳模社区明星

发表于 2015-1-20 18:07:10 | 显示全部楼层
其实户型布局有几个重要的核心点,抓住这几个核心点,就能更好地完成合理的空间布局;

1、首先餐厅的位置一定距离厨房越近越合理,不可能端着菜盘子走很远,设计一定不能违背自然生活规律;
2、有条件让所有卧室都带窗户,必然是优先选择这样的方案,任何一个没有窗户的暗卧居住都是很不爽的,暗卧内的空气无法正常流通,容易给居住的人造成疾病;
3、客厅能改造出来必然是非常好的,客厅宽度不太宽,那么电视墙可以壁挂电视,不一定非得要放电视柜,先实现有沙发和茶几的客厅,俗话说麻雀虽小、五脏俱全才是舒服的生活状态;
4、尽量选择墙体改造工程量较少的方案,没必要铺张浪费,能节省银子自然是好事,所以综合考虑之后才能确定更合理、更舒适的空间布局,要根据人的走动流线来划分,任何挡住人体走动流线的布局都不是最佳的方案,一定要择优再择优,最后完成比较理想的装修设计与施工方案。。

QQ图片20150120175225.jpg
1、卧室墙体的改造,把餐厅桌椅的区域预留出来,要锁定那边更适合做客厅沙发墙,如果不放置客厅玄关多宝柜,那么就可以放冰箱,都是可以的,门厅放一组倒立式鞋柜,宽度25公分就够放置,吧里的衣柜商家就可以定制这种进深窄的倒立式鞋柜;

2、老人房的床可以选择1.5米宽的,1.5米宽的床其实睡两个人没问题的,这样可以放下一组衣柜,老人房可以放壁挂电视;

3、儿童房也采用1.5米宽的床,把书桌放到阳台上朝南放置即可,阳台安装厚窗帘可以挡光;
4、主卧除了放一组大衣柜,还需要放下电脑桌,主卧也可以放下壁挂电视。。
回复

使用道具 举报

1

主题

106

帖子

314

积分

初中毕业

积分
314

社区居民

发表于 2015-1-21 11:30:59 | 显示全部楼层

回 28楼(王建) 的帖子

王建:其实户型布局有几个重要的核心点,抓住这几个核心点,就能更好地完成合理的空间布局;

1、首先餐厅的位置一定距离厨房越近越合理,不可能端着菜盘子走很远,设计一定不能违背自然生活规律;
2、有条件让所有卧室都带窗户,必然是优先选择这样的方案,任何一个没有窗户的暗卧居住 ..(2015-01-20 18:07)嬀/color]
估计除了厨房和小卧室连着的墙是轻体墙外,其他都是承重墙。

这么多人替楼主操心,出来说明下。
回复

使用道具 举报

您需要登录后才可以回帖 登录 | 立即注册

本版积分规则

装修百科|手机版|小黑屋|北京高老庄建筑装饰工程有限公司 ( 京ICP备19035109号 )

GMT+8, 2026-3-31 04:17 , Processed in 0.435917 second(s), 29 queries .

快速回复 返回顶部 返回列表