北京装修论坛 - 北京装修社区_高老庄工长装修

 找回密码
立即注册
热搜: 工长 设计 曝光
楼主: epicure

[装修讨论] 两居改造求助

[复制链接]

5

主题

20

帖子

58

积分

学前班

积分
58

社区居民

发表于 2015-1-13 11:17:37 | 显示全部楼层
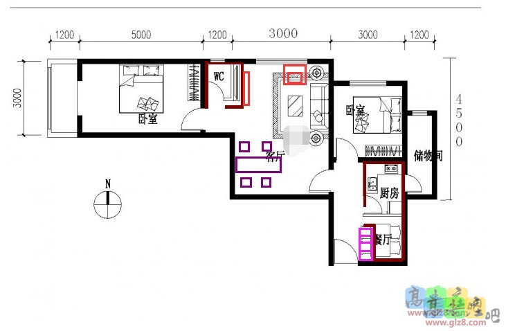
关注你的卫生间如何布局。似乎不大,和我的类似
回复

使用道具 举报

24

主题

1万

帖子

2万

积分

硕士毕业

积分
20710

社区居民最爱沙发忠实会员社区劳模社区明星

发表于 2015-1-13 12:25:59 | 显示全部楼层
卫生间要扩大一些;餐厅可以移动到客厅去,门厅做一个鞋帽柜即可,剩下的空间留给厨房,因为厨房空间确实太小了;入户门对着卧室门,可以通过在过道挂水晶帘,或者卧室做隐形门,安装金属半球形门钉也可以化解。。

QQ图片20150113122325.jpg
回复

使用道具 举报

您需要登录后才可以回帖 登录 | 立即注册

本版积分规则

装修百科|手机版|小黑屋|北京高老庄建筑装饰工程有限公司 ( 京ICP备19035109号 )

GMT+8, 2026-3-31 07:35 , Processed in 0.446140 second(s), 26 queries .

快速回复 返回顶部 返回列表