北京装修论坛 - 北京装修社区_高老庄工长装修

 找回密码
立即注册
热搜: 工长 设计 曝光
查看: 3807|回复: 15

[装修讨论] 设计高人给出出主意!真头大呀!

[复制链接]

5

主题

41

帖子

162

积分

小学毕业

积分
162

社区居民

发表于 2015-1-19 13:19:56 | 显示全部楼层 |阅读模式
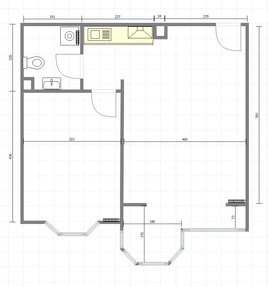
请各位高人给出出主意。把一室一厅改成两居。
下面附上户型图。刚拿道的二手房。

卧室和客厅之间是承重墙。
回复

使用道具 举报

2

主题

155

帖子

334

积分

初中毕业

积分
334

社区居民

发表于 2015-1-19 13:27:40 | 显示全部楼层
开放式厨房?接着卧室的墙砌到头不行?
回复

使用道具 举报

24

主题

1万

帖子

2万

积分

硕士毕业

积分
20710

社区居民最爱沙发忠实会员社区劳模社区明星

发表于 2015-1-19 13:40:07 | 显示全部楼层

回 1楼(dds1975) 的帖子

dds1975:开放式厨房?接着卧室的墙砌到头不行? (2015-01-19 13:27) 
还要进卫生间和卧室,所以肯定不能沿着卧室墙砌到头啦。。
回复

使用道具 举报

22

主题

1233

帖子

2554

积分

大专毕业

积分
2554

社区居民最爱沙发

发表于 2015-1-19 13:47:12 | 显示全部楼层
这个格局只能在客厅打隔断了吧,隔断用透光的,客厅还可以借光。
回复

使用道具 举报

2

主题

155

帖子

334

积分

初中毕业

积分
334

社区居民

发表于 2015-1-19 13:56:03 | 显示全部楼层

回 2楼(王建) 的帖子

王建:还要进卫生间和卧室,所以肯定不能沿着卧室墙砌到头啦。。 (2015-01-19 13:40) 
我的意思是横着的那堵墙
回复

使用道具 举报

24

主题

1万

帖子

2万

积分

硕士毕业

积分
20710

社区居民最爱沙发忠实会员社区劳模社区明星

发表于 2015-1-19 14:12:37 | 显示全部楼层
门厅要做玄关柜,进行空间区隔,紧挨着可以放置冰箱和鞋帽柜;

卫生间可以做折叠门,尽量开门不影响洗衣机和浴室柜,这样浴室柜可以紧靠门口放置;

隔出一个次卧,宽度能放下1.8米宽的双人床即可,也就是距离2~2.2米左右,这样尽量将客厅的空间预留大一点,次卧衣柜可以放在床头对面,次卧门口的位置将衣柜60公分预留出来即可;


客厅兼餐厅,可以考虑卡座式餐厅,或者购买腿儿高点的沙发,茶几的桌腿也要买高一点,方便家人吃饭使用;主卧可以放电脑桌,也可以安装壁挂电视。。 QQ图片20150119141133.jpg
回复

使用道具 举报

8

主题

159

帖子

398

积分

初中毕业

积分
398

社区居民

发表于 2015-1-19 14:32:01 | 显示全部楼层
王建是不是设计师啊
回复

使用道具 举报

24

主题

1万

帖子

2万

积分

硕士毕业

积分
20710

社区居民最爱沙发忠实会员社区劳模社区明星

发表于 2015-1-20 11:15:02 | 显示全部楼层

回 6楼(真的怕装修) 的帖子

真的怕装修: 王建是不是设计师啊 (2015-01-19 14:32) 
呵呵,谢谢楼主夸奖,多交流呀。。
回复

使用道具 举报

17

主题

181

帖子

417

积分

初中毕业

积分
417

社区居民

发表于 2015-1-20 12:01:59 | 显示全部楼层

回 5楼(王建) 的帖子

王建:门厅要做玄关柜,进行空间区隔,紧挨着可以放置冰箱和鞋帽柜;

卫生间可以做折叠门,尽量开门不影响洗衣机和浴室柜,这样浴室柜可以紧靠门口放置;

隔出一个次卧,宽度能放下1.8米宽的双人床即可,也就是距离2~2.2米左右,这样尽量将客厅的空间预留大一点,次卧衣柜可以放在床 .. (2015-01-19 14:12) 
嘿,王建真厉害
回复

使用道具 举报

146

主题

4902

帖子

1万

积分

硕士毕业

积分
10281

社区居民忠实会员社区劳模最爱沙发社区明星

发表于 2015-1-20 15:14:10 | 显示全部楼层
每个屋都小,但够使用的最小限度,凑合看吧
1037_5bcf142164447766f39f41eeb172a.png
回复

使用道具 举报

您需要登录后才可以回帖 登录 | 立即注册

本版积分规则

装修百科|手机版|小黑屋|北京高老庄建筑装饰工程有限公司 ( 京ICP备19035109号 )

GMT+8, 2026-3-31 04:18 , Processed in 0.461970 second(s), 29 queries .

快速回复 返回顶部 返回列表