北京装修论坛 - 北京装修社区_高老庄工长装修

 找回密码
立即注册
热搜: 工长 设计 曝光
楼主: zsmzsm2

[装修讨论] 78平朝南两居

[复制链接]

1

主题

106

帖子

314

积分

初中毕业

积分
314

社区居民

发表于 2015-1-23 10:38:21 | 显示全部楼层
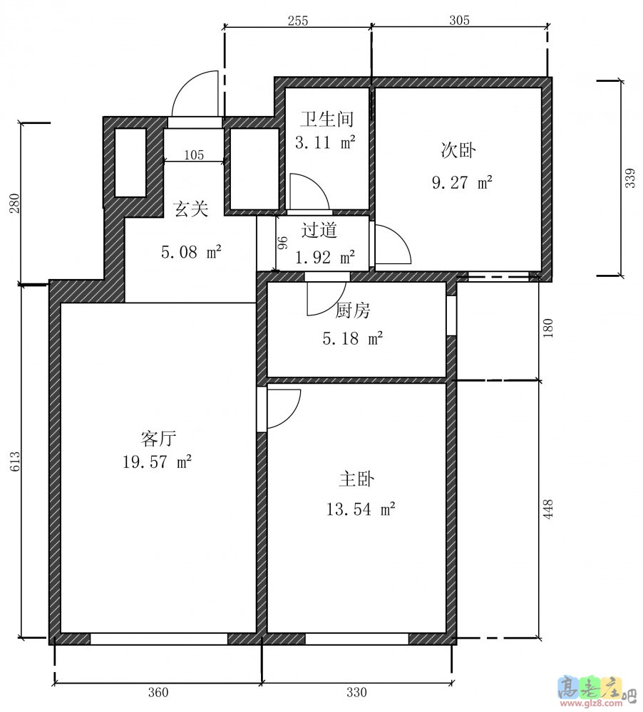
简单画了个图,卫生间、过道、厨房局部尺寸未标明。楼主参考

未命名.JPG
回复

使用道具 举报

24

主题

1万

帖子

2万

积分

硕士毕业

积分
20710

社区居民最爱沙发忠实会员社区劳模社区明星

发表于 2015-1-23 10:44:24 | 显示全部楼层
厨房其实已经有窗户,通风没问题,与餐厅相隔的承重墙是不允许开窗户的,若一定要在承重墙开窗户,需要找专业承重墙加固公司来做,开窗洞加上加固费用比较贵,预算大概一万元以上;

冰箱还是尽量放厨房里,鞋帽柜可以挨着餐厅放置,不要拥挤在门口过道处;

儿童房放置上下铺,床头不要靠窗也不要对着窗户,床尾可以放一组衣柜,紧挨着衣柜放一组书架和书桌;

卫生间马桶移位,这样就可以将浴室柜和洗衣机并排放置,台面做成一个整体,洗衣机嵌入在台面下,洗衣机内侧的台面上可以放衣篓架。。



QQ图片20150123104141.jpg
回复

使用道具 举报

1

主题

106

帖子

314

积分

初中毕业

积分
314

社区居民

发表于 2015-1-23 10:45:30 | 显示全部楼层
型不错,光线好
回复

使用道具 举报

1

主题

106

帖子

314

积分

初中毕业

积分
314

社区居民

发表于 2015-1-23 10:50:50 | 显示全部楼层
多画了一道墙,改过

未命名.JPG
回复

使用道具 举报

146

主题

4902

帖子

1万

积分

硕士毕业

积分
10281

社区居民忠实会员社区劳模最爱沙发社区明星

发表于 2015-1-23 11:18:26 | 显示全部楼层
小卧室白天很暗,如果楼层高能强点。厨房更暗,九岁孩子呆在自己屋里时间多,休息日放假白天都要在家,主卧也就是睡觉罢了,一般都在客厅,给孩子明亮房间,过几年孩子大了,再调换
回复

使用道具 举报

1

主题

22

帖子

66

积分

学前班

积分
66

社区居民

 楼主| 发表于 2015-1-23 11:49:27 | 显示全部楼层
如果承重墙不允许开窗户,我还是侧重于将原来的门改道客厅位置,这样感觉不大会川味。之前开窗的想法,也是做饭时,将厨房门关闭,开窗传递饭菜,心里会更容易接受些。
回复

使用道具 举报

1

主题

22

帖子

66

积分

学前班

积分
66

社区居民

 楼主| 发表于 2015-1-23 11:51:52 | 显示全部楼层
之前问过开发商是同意改厨房的门的,这还需要物业同意吗?另外,如果改门的话,也得找专业承重墙单位来改和加固吗?要真是那样的话,我被开发商忽悠了,这是自住房项目。
回复

使用道具 举报

1

主题

22

帖子

66

积分

学前班

积分
66

社区居民

 楼主| 发表于 2015-1-23 11:58:42 | 显示全部楼层
“简单画了个图,卫生间、过道、厨房局部尺寸未标明。楼主参考

”谢谢波波爸的草图,比我自己瞎量瞎画的精确多了,现在正在学习画图软件,要学习的真多呀。
回复

使用道具 举报

146

主题

4902

帖子

1万

积分

硕士毕业

积分
10281

社区居民忠实会员社区劳模最爱沙发社区明星

发表于 2015-1-23 13:09:37 | 显示全部楼层
大卧室给孩子,你们住小卧室,,卧室对于上班的来说,也就是睡觉罢了,有个舒服的床就可以了,平时在家时,一般都会在客厅的,电视开着电脑开着,一般会让孩子在自己屋里学习,所以,把大点的房间先给孩子,等过几年再调,
回复

使用道具 举报

24

主题

1万

帖子

2万

积分

硕士毕业

积分
20710

社区居民最爱沙发忠实会员社区劳模社区明星

发表于 2015-1-23 13:33:18 | 显示全部楼层

回 16楼(zsmzsm2) 的帖子

zsmzsm2:之前问过开发商是同意改厨房的门的,这还需要物业同意吗?另外,如果改门的话,也得找专业承重墙单位来改和加固吗?要真是那样的话,我被开发商忽悠了,这是自住房项目。 (2015-01-23 11:51) 
就算物业同意,在承重墙上开门洞、加固,费用预算在一万五千元以上;

厨房门的原位置挺好的,呵呵。。
回复

使用道具 举报

您需要登录后才可以回帖 登录 | 立即注册

本版积分规则

装修百科|手机版|小黑屋|北京高老庄建筑装饰工程有限公司 ( 京ICP备19035109号 )

GMT+8, 2026-3-30 20:27 , Processed in 0.156011 second(s), 28 queries .

快速回复 返回顶部 返回列表